Apeldoorn, Venuslaan 20
 
  • TypeEengezinswoning
  • Woonoppervlakte105 m²
  • Perceelgrootte200 m²
  • Slaapkamers4
  • Aangeboden sinds11-10-2025
  • Beschikbaarheid In overleg
Bezichtiging aanvragen

Omschrijving Venuslaan 20

Sfeervolle jaren ’30-twee-onder-één-kapper in Apeldoorn West

Venuslaan 20 – Apeldoorn

Ben jij op zoek naar een woning vol karakter, met genoeg ruimte?
Hier woon je tussen het groen, in een kindvriendelijke buurt waar de vogels je ’s ochtends wakker fluiten en de kinderen veilig buiten kunnen spelen. Deze charmante twee-onder-één-kapwoning uit 1935 ligt in het geliefde Sprengenbos, aan de westkant van Apeldoorn. Een plek waar sfeer, rust en gezelligheid samenkomen.

Een royale basis met volop mogelijkheden

Met een perceel van circa 200 m² en een zonnige achtertuin is er hier volop ruimte om te genieten. De woning biedt een uitstekende basis om je eigen woondroom te realiseren. Liefhebber van authentieke details zoals paneeldeuren, hoge plafonds en een sfeervolle erker? Je vindt ze hier allemaal! De woning laat zich bovendien perfect moderniseren én personaliseren. Met wat liefde en aandacht maak je van deze woning weer een eigentijdse parel met behoud van karakter.

Ruimte voor het hele gezin

Dankzij de praktische indeling kun je hier alle kanten op. De ruime en lichte woonkamer met erker en open haard nodigt uit om samen te tafelen, films te kijken of met een boek op de bank weg te dromen. De keuken is praktisch ingericht en voorzien van diverse inbouwapparaten, maar biedt ook volop mogelijkheden om uit te breiden tot jouw ideale woonkeuken. Rondom het huis geniet je van veel lichtinval, privacy en uitzicht op groen.

Genieten van buitenleven

De zonnige achtertuin is de ideale plek voor lange zomeravonden, gezellige BBQ’s en verjaardagen met familie of vrienden. Er is plek voor een loungeset, speeltoestel en een grote eettafel. Achter in de tuin staat een stenen berging voor fietsen en tuingereedschap.

Fijne ligging in Apeldoorn West

Sprengenbos en Apeldoorn West staan bekend om hun prettige gezinswijken met veel groen en speelplekken. Scholen, winkels, sportaccommodaties, het centrum van Apeldoorn én het prachtige Berg en Bos liggen allemaal op loop- of fietsafstand. Praktisch én plezierig wonen dus!

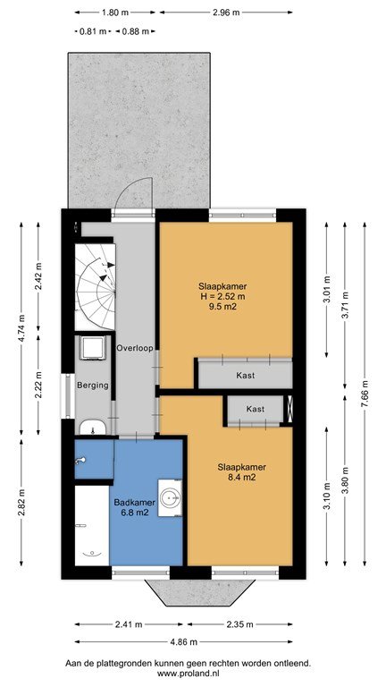
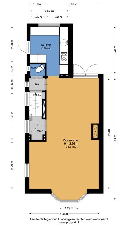
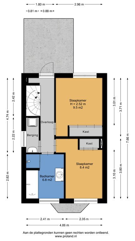
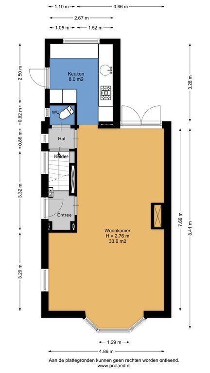
Indeling

-Begane grond: entree, hal met toilet en toegang tot de kelder. Brede woonkamer met erker, open haard en zit- en eetgedeelte. Keuken met diverse inbouwapparatuur en toegang tot de tuin.
-Eerste verdieping: twee ruime slaapkamers en een badkamer met ligbad, douche en tweede toilet.
-Zolderverdieping: vaste trap naar twee extra slaapkamers.

Buiten: sfeervolle tuin met veel privacy en een stenen schuur.

Vraagprijs: € 450.000 k.k.
Aanvaarding: in overleg

Meer
Neem contact op

Loolaan 31 A
7314 AB Apeldoorn

T  055 - 760 1777
E  Apeldoorn@iQMakelaars.nl

Specificaties

Bouw

  • Soort Woningen
  • Type Eengezinswoning
  • Bouwjaar 1935

Algemeen

  • Beschikbaarheid In overleg

Energie

  • Energielabel E
  • CV-ketel eigendom Ja
  • CV-ketel brandstof Gas
  • CV-ketel bouwjaar 2013

Indeling

  • Slaapkamers 4
  • Tuin Ja
  • Tuin ligging North_east

Afmetingen

  • Woonoppervlakte 105 m²
  • Perceeloppervlakte 200 m²
  • Woninginhoud 409 m³
  • Tuin oppervlakte 60 m²
Meer

Schrijf je in voor onze woningmail, actueel aanbod!

Bezichtiging aanvragen Venuslaan 20

Vergelijkbaar aanbod Apeldoorn

Pieter de Hoochlaan Verkocht
APELDOORN
Pieter de Hoochlaan 74
   € 450.000,- k.k.
Details
Schaapweg Verkocht
APELDOORN
Schaapweg 16
   € 440.000,- k.k.
Details
Jagersweg Verkocht
APELDOORN
Jagersweg 26
   € 450.000,- k.k.
Details

Wat is jouw huis waard?

Gratis rapport iQ Makelaars Leadtool