Hoogeveen, Jennerstraat 138
 
  Verkocht OVB
  • TypeAppartement
  • Woonoppervlakte67 m²
  • Slaapkamers1
  • Aangeboden sinds08-04-2026
  • Beschikbaarheid In overleg
Bezichtiging aanvragen

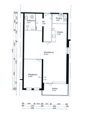
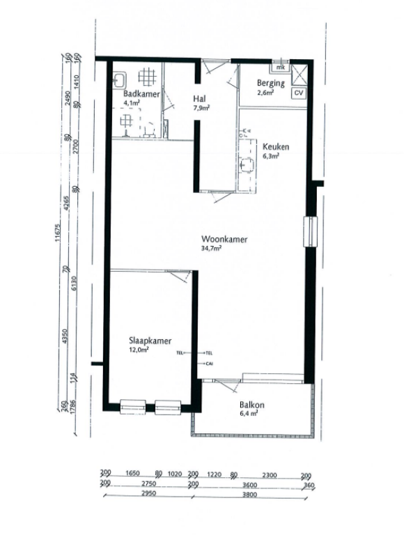
Omschrijving Jennerstraat 138

Bent u op zoek naar een instapklaar en praktisch ingedeeld tweekamerappartement op een centrale locatie? Dit verzorgde appartement (ca. 68 m²) is gelegen op de vierde verdieping van het markante flatgebouw 'De Morene'. Hier geniet u van rust, een groen uitzicht en alle belangrijke voorzieningen letterlijk om de hoek.

De locatie: Alles binnen handbereik
De ligging is ideaal voor wie van gemak houdt. Op slechts 200 meter afstand vindt u het ziekenhuis (Bethesda), een bushalte en een heerlijk park voor een wandeling. Wilt u uitgebreid winkelen of een terrasje pakken? De Hoofdstraat van Hoogeveen met al haar centrumvoorzieningen ligt op slechts circa 1 kilometer afstand.

Het appartement
Dankzij de aanwezige liften is het appartement op de vierde etage moeiteloos bereikbaar.

Indeling:

Entree: Via de hal heeft u toegang tot alle vertrekken in de woning. Hier bevindt zich tevens de inpandige berging met de eigen CV-opstelling en het separate toilet.

Woonkamer & Balkon: Een lichte en ruime woonkamer die direct toegang biedt tot het royale balkon. Hier kunt u heerlijk genieten van de buitenlucht en het vrije uitzicht over de omgeving.

Keuken: De open keuken staat in directe verbinding met de woonkamer, wat zorgt voor een ruimtelijk effect. De moderne, witte keukenopstelling is strak uitgevoerd en voorzien van de nodige inbouwapparatuur.

Slaapkamer: Een royale en rustig gelegen slaapkamer met voldoende ruimte voor een groot tweepersoonsbed en een kledingkast.

Sanitair: De moderne badkamer is volledig betegeld en uitgerust met een ruime douchecabine met glazen wanden en een wastafelmeubel. De wasmachineaansluiting bevindt zich praktisch uit het zicht in de badkamer.

Extra bergruimte en parkeren
Naast de inpandige berging beschikt het appartement over een eigen berging in de kelder van het complex, ideaal voor het stallen van fietsen. Rondom het gebouw is ruim voldoende parkeergelegenheid aanwezig voor bewoners en bezoekers.

Belangrijke kenmerken op een rij:
Woonoppervlakte: ca. 67,6 m²;

Energielabel: C;

Verwarming: Eigen CV-ketel;

VVE bijdrage: ca. € 218,- per maand;

Extra’s: Lift aanwezig en een inpandige én externe berging;

Ligging: Nabij ziekenhuis, park en centrum.

Kortom: Een ideaal appartement voor starters of senioren die op zoek zijn naar een veilige en comfortabele woonomgeving in Hoogeveen.

Meer
Neem contact op

iQ Makelaars Vechtdal
Brugstraat 21
7731 CT Ommen

T  0529 - 760 999
E  Vechtdal@iQMakelaars.nl

Specificaties

Bouw

  • Soort Woningen
  • Type Appartement
  • Bouwjaar 1979

Algemeen

  • Beschikbaarheid In overleg

Energie

  • Energielabel C
  • CV-ketel eigendom Ja
  • CV-ketel brandstof Gas
  • CV-ketel bouwjaar 2014

Indeling

  • Slaapkamers 1

Afmetingen

  • Woonoppervlakte 67 m²
  • Woninginhoud 189 m³
Meer

Schrijf je in voor onze woningmail, actueel aanbod!

Afbeeldingen

  Jennerstraat 138 Hoogeveen
  Jennerstraat 138 Hoogeveen
  Jennerstraat 138 Hoogeveen
  Jennerstraat 138 Hoogeveen
  Jennerstraat 138 Hoogeveen
  Jennerstraat 138 Hoogeveen
  Jennerstraat 138 Hoogeveen
  Jennerstraat 138 Hoogeveen
  Jennerstraat 138 Hoogeveen
  Jennerstraat 138 Hoogeveen

Bezichtiging aanvragen Jennerstraat 138

Vergelijkbaar aanbod Hoogeveen

Satellietenlaan Verkocht
HOOGEVEEN
Satellietenlaan 2
   € 217.500,- k.k.
Details
Schutstraat Verkocht
HOOGEVEEN
Schutstraat 29
   € 200.000,- k.k.
Details

Wat is jouw huis waard?

Gratis rapport iQ Makelaars Leadtool