ENSCHEDE, Schreursweg 72
 
  Verkocht OVB
  • TypeHoekwoning
  • Woonoppervlakte89 m²
  • Perceelgrootte150 m²
  • Slaapkamers2
  • Aangeboden sinds13-02-2026
  • Beschikbaarheid In overleg
Bezichtiging aanvragen

Omschrijving Schreursweg 72

Ben je op zoek naar een huis met karakter en sfeer in een rustige buurt? Deze hoekwoning aan de Schreursweg in Enschede heeft het allemaal. Deze woning heeft de charme van een jaren '20 woning. De woning heeft een woonoppervlakte van 89m², een open woon-en eetkamer, 2 slaapkamers en een zonnige tuin aan de voor- en achterkant.

De Schreursweg is een rustige straat in een woonwijk. In de omgeving vind je speeltuinen, scholen en supermarkten - alles wat je nodig hebt voor het dagelijks leven. Het stadscentrum van Enschede ligt op fietsafstand en er zijn goede openbaar vervoer verbindingen.

Algemene kenmerken van de woning:
- Woonoppervlakte: 89m²
- 2 slaapkamers
- Bouwjaar: 1928
- Sfeervolle jaren '20 details
- Goed onderhouden
- Energieklasse: E
- Verwarming: airconditioning

Begane grond
Bij binnenkomst wordt je meteen verrast door een ruime hal die toegang biedt tot de royale woonkamer met open keuken voorzien van diverse inbouwapparatuur. De woonkamer is zeer ruim waardoor er tal van mogelijkheden zijn. Aan de achterzijde zit een berging met wasmachineaansluiting. Ook is de toilet onder de trap gesitueerd.

Verdieping
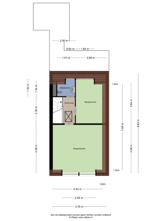
Op de eerste verdieping bevinden zich 2 slaapkamers en een badkamer met douche en wastafel.

Er is voldoende openbare parkeergelegenheid voor de deur.

Ben je geïnteresseerd in deze sfeervolle hoekwoning aan de Schreursweg in Enschede? Maak snel een afspraak voor een bezichtiging en ervaar zelf de charme van deze woning. Wacht niet te lang, want dit pand kan zomaar snel van de markt zijn. Neem vandaag nog contact op met de makelaar om een afspraak te maken.

Meer
Neem contact op

iQ Makelaars Kantoor Enschede
Danny Mulder
Roessinghsbleekweg 21,
7522 AH  Enschede

T  053 - 760 1600
E  Enschede@iQMakelaars.nl

Specificaties

Bouw

  • Soort Woningen
  • Type Hoekwoning
  • Bouwjaar 1928

Algemeen

  • Beschikbaarheid In overleg

Energie

  • Energielabel E
  • Aanwezige isolatie Vloerisolatie

Indeling

  • Slaapkamers 2
  • Tuin Ja

Afmetingen

  • Woonoppervlakte 89 m²
  • Perceeloppervlakte 150 m²
  • Woninginhoud 355 m³
  • Tuin oppervlakte 40 m²
Meer

Schrijf je in voor onze woningmail, actueel aanbod!

Afbeeldingen

  Schreursweg 72 ENSCHEDE
  Schreursweg 72 ENSCHEDE
  Schreursweg 72 ENSCHEDE
  Schreursweg 72 ENSCHEDE
  Schreursweg 72 ENSCHEDE
  Schreursweg 72 ENSCHEDE
  Schreursweg 72 ENSCHEDE
  Schreursweg 72 ENSCHEDE
  Schreursweg 72 ENSCHEDE
  Schreursweg 72 ENSCHEDE
  Schreursweg 72 ENSCHEDE
  Schreursweg 72 ENSCHEDE
  Schreursweg 72 ENSCHEDE
  Schreursweg 72 ENSCHEDE
  Schreursweg 72 ENSCHEDE
  Schreursweg 72 ENSCHEDE
  Schreursweg 72 ENSCHEDE
  Schreursweg 72 ENSCHEDE
  Schreursweg 72 ENSCHEDE
  Schreursweg 72 ENSCHEDE
  Schreursweg 72 ENSCHEDE
  Schreursweg 72 ENSCHEDE
  Schreursweg 72 ENSCHEDE
  Schreursweg 72 ENSCHEDE
  Schreursweg 72 ENSCHEDE
  Schreursweg 72 ENSCHEDE

Plattegrond

  Plattegrond Schreursweg 72 ENSCHEDE
  Plattegrond Schreursweg 72 ENSCHEDE
  Plattegrond Schreursweg 72 ENSCHEDE
  Plattegrond Schreursweg 72 ENSCHEDE
  Plattegrond Schreursweg 72 ENSCHEDE
  Plattegrond Schreursweg 72 ENSCHEDE
  Plattegrond Schreursweg 72 ENSCHEDE
  Plattegrond Schreursweg 72 ENSCHEDE

Bezichtiging aanvragen Schreursweg 72

Vergelijkbaar aanbod ENSCHEDE

Van Riebeekstraat Verkocht
ENSCHEDE
Van Riebeekstraat 97
   € 250.000,- k.k.
Details
Hyacintstraat Verkocht
ENSCHEDE
Hyacintstraat 58
   € 265.000,- k.k.
Details
Lankheethoek Verkocht
ENSCHEDE
Lankheethoek 39
   € 259.500,- k.k.
Details

Wat is jouw huis waard?

Gratis rapport iQ Makelaars Leadtool