ENSCHEDE, Hyacintstraat 58
 
  • Type2-onder-1-kap
  • Woonoppervlakte119 m²
  • Perceelgrootte180 m²
  • Slaapkamers3
  • Aangeboden sinds22-09-2022
  • Beschikbaarheid In overleg
Bezichtiging aanvragen

Omschrijving Hyacintstraat 58

Karakteristiek helft van een dubbel woonhuis met aangebouwde kantoor/hobby/werk/speelkamer en een ruime tuin op het oosten met separate gezellige ruimte met bar achterin de tuin.

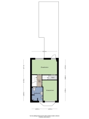
Indeling: Entree, hal, woonkamer met erker, keuken, kelder, bijkeuken met wasruimte, toilet. Aansluitend de kantoor/hobby/werk/speelkamer.

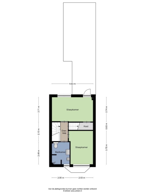
Eerste etage: Overloop met 2 slaapkamers en een ruime badkamer

Tweede etage: Vaste trap, slaapkamer, stookinrichting en voldoende bergruimte.

Bijzonderheden:

- Bouwjaar 1935.
- Kaveloppervlak 180 m2.
- Woonoppervlakte 119 m2.
- Woonkamer voorzien van houten vloer en een erker.
- Verwarming en warm water d.m.v. eigen CV-combiketel (2020).
- Glas in lood details.
- Tweede etage voorzien van een kunststof dakkapel.

Meer
Neem contact op

iQ Makelaars Hoofdkantoor
Martin Grave
Roessinghsbleekweg 21,
7522 AH Enschede

T  088 - 700 99 99
E  info@iQMakelaars.nl

Specificaties

Bouw

  • Soort Woningen
  • Type 2-onder-1-kap
  • Bouwjaar 1935

Algemeen

  • Beschikbaarheid In overleg

Energie

  • Energielabel D
  • CV-ketel Combi
  • CV-ketel eigendom Ja
  • CV-ketel brandstof Gas
  • CV-ketel bouwjaar 2020
  • CV-ketel warmwater Ja
  • Aanwezige isolatie Dakisolatie, glasisolatie

Indeling

  • Slaapkamers 3
  • Kelder Ja , 1m²
  • Tuin Ja
  • Tuin ligging Oost

Afmetingen

  • Woonoppervlakte 119 m²
  • Perceeloppervlakte 180 m²
  • Woninginhoud 432 m³
Meer
  • Wijk en buurt
    Schreurserve
  • Bevolking
    Gem. grootte huishouden
    1.9 personen
  • Detailhandel
    Grote supermarkt
    0.9km
  • Inkomen
    Gem. inkomen
    €0.000 p/j
  • Vervoer
    Station
    1.8km
  • Wonen
    Gem. woningwaarde
    €165.000
    Koopwoningen
    41%

Schrijf je in voor onze woningmail, actueel aanbod!

Afbeeldingen

  Hyacintstraat 58 ENSCHEDE
  Hyacintstraat 58 ENSCHEDE
  Hyacintstraat 58 ENSCHEDE
  Hyacintstraat 58 ENSCHEDE
  Hyacintstraat 58 ENSCHEDE
  Hyacintstraat 58 ENSCHEDE
  Hyacintstraat 58 ENSCHEDE
  Hyacintstraat 58 ENSCHEDE
  Hyacintstraat 58 ENSCHEDE
  Hyacintstraat 58 ENSCHEDE
  Hyacintstraat 58 ENSCHEDE
  Hyacintstraat 58 ENSCHEDE
  Hyacintstraat 58 ENSCHEDE
  Hyacintstraat 58 ENSCHEDE
  Hyacintstraat 58 ENSCHEDE
  Hyacintstraat 58 ENSCHEDE
  Hyacintstraat 58 ENSCHEDE
  Hyacintstraat 58 ENSCHEDE
  Hyacintstraat 58 ENSCHEDE
  Hyacintstraat 58 ENSCHEDE
  Hyacintstraat 58 ENSCHEDE
  Hyacintstraat 58 ENSCHEDE
  Hyacintstraat 58 ENSCHEDE
  Hyacintstraat 58 ENSCHEDE
  Hyacintstraat 58 ENSCHEDE
  Hyacintstraat 58 ENSCHEDE
  Hyacintstraat 58 ENSCHEDE
  Hyacintstraat 58 ENSCHEDE
  Hyacintstraat 58 ENSCHEDE
  Hyacintstraat 58 ENSCHEDE
  Hyacintstraat 58 ENSCHEDE
  Hyacintstraat 58 ENSCHEDE
  Hyacintstraat 58 ENSCHEDE
  Hyacintstraat 58 ENSCHEDE
  Hyacintstraat 58 ENSCHEDE
  Hyacintstraat 58 ENSCHEDE
  Hyacintstraat 58 ENSCHEDE

Plattegrond

  Plattegrond Hyacintstraat 58 ENSCHEDE
  Plattegrond Hyacintstraat 58 ENSCHEDE
  Plattegrond Hyacintstraat 58 ENSCHEDE
  Plattegrond Hyacintstraat 58 ENSCHEDE
  Plattegrond Hyacintstraat 58 ENSCHEDE
  Plattegrond Hyacintstraat 58 ENSCHEDE
  Plattegrond Hyacintstraat 58 ENSCHEDE
  Plattegrond Hyacintstraat 58 ENSCHEDE
  Plattegrond Hyacintstraat 58 ENSCHEDE
  Plattegrond Hyacintstraat 58 ENSCHEDE

Bezichtiging aanvragen Hyacintstraat 58

Vergelijkbaar aanbod ENSCHEDE

Lankheethoek Verkocht
ENSCHEDE
Lankheethoek 39
   € 259.500,- k.k.
Details
Madame Curieplein Verkocht
ENSCHEDE
Madame Curieplein 28
   € 259.500,- k.k.
Details
Bultsweg Verkocht
ENSCHEDE
Bultsweg 92
   € 275.000,- k.k.
Details

Wat is jouw huis waard?

Gratis rapport iQ Makelaars Leadtool