ENSCHEDE, Madame Curieplein 28
 
  Verkocht
  • TypeTussenwoning
  • Woonoppervlakte95 m²
  • Perceelgrootte114 m²
  • Slaapkamers4
  • Aangeboden sinds24-08-2023
  • Beschikbaarheid In overleg
Bezichtiging aanvragen

Omschrijving Madame Curieplein 28

Deze prachtige gezinswoning is voorzien van veel ruimte en gelegen op een pleintje dat zeer geschikt is voor kinderen.
Het huis heeft vier ruime slaapkamers en een energielabel A.

De woning is gelegen in een rustige en kindvriendelijke buurt. Je bevindt je op loopafstand van de supermarkt en met enkele minuten fietsen zit je in het centrum van Enschede. De uitvalswegen zijn tevens in korte tijd bereikbaar.

Indeling
Begane grond:
Via de voortuin betreed je de woning in de hal; een nette lichte hal met ruimte voor een garderobe. Je stapt als eerst binnen in de ruime woonkeuken. De keuken is voorzien van een kookplaat, afzuigkap, koelkast en een combi-oven.welke je In de woonkeuken is ook meer dan voldoende ruimte om een fijne eethoek te plaatsen. Aan de achterzijde van de woning bevindt zich de woonkamer. Het grote raam voorziet de woonkamer van een rijke lichtinval. Vanuit de woonkamer krijg je toegang tot een hal waar je de trapopgang en de toiletruimte vindt.

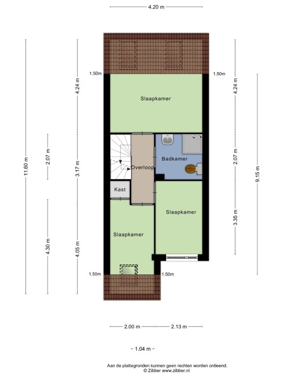
Op de eerste verdieping bevinden zich drie ruime slaapkamers en een badkamer. De badkamer is voorzien van een toilet, douche en wastafel.

Via een vaste trap bereik je de tweede verdieping, waar je een voorzolder vindt met onder andere een aansluiting voor de wasmachine en de CV-ketel. Daarnaast is er een ruime vierde (slaap)kamer aanwezig.

Bijzonderheden:
- Bouwjaar 1999
- Perceeloppervlakte: 114 m2
- Woonoppervlakte: 95 m2
- Tuin op het Noord oosten
- Goed geïsoleerde woning.

Meer
Neem contact op

iQ Makelaars Kantoor Enschede
Danny Mulder
Roessinghsbleekweg 21,
7522 AH  Enschede

T  053 - 760 1600
E  Enschede@iQMakelaars.nl

Specificaties

Bouw

  • Soort Woningen
  • Type Tussenwoning
  • Bouwjaar 1999

Algemeen

  • Beschikbaarheid In overleg

Energie

  • Energielabel A
  • CV-ketel Combi
  • CV-ketel eigendom Ja
  • CV-ketel brandstof Gas
  • CV-ketel warmwater Ja
  • Aanwezige isolatie Dakisolatie, spouwisolatie, muurisolatie, vloerisolatie, glasisolatie

Indeling

  • Slaapkamers 4
  • Tuin Ja
  • Tuin ligging Noordoost

Afmetingen

  • Woonoppervlakte 95 m²
  • Perceeloppervlakte 114 m²
  • Woninginhoud 335 m³
  • Tuin oppervlakte 32 m²
Meer

Schrijf je in voor onze woningmail, actueel aanbod!

Afbeeldingen

  Madame Curieplein 28 ENSCHEDE
  Madame Curieplein 28 ENSCHEDE
  Madame Curieplein 28 ENSCHEDE
  Madame Curieplein 28 ENSCHEDE
  Madame Curieplein 28 ENSCHEDE
  Madame Curieplein 28 ENSCHEDE
  Madame Curieplein 28 ENSCHEDE
  Madame Curieplein 28 ENSCHEDE
  Madame Curieplein 28 ENSCHEDE
  Madame Curieplein 28 ENSCHEDE
  Madame Curieplein 28 ENSCHEDE
  Madame Curieplein 28 ENSCHEDE
  Madame Curieplein 28 ENSCHEDE
  Madame Curieplein 28 ENSCHEDE
  Madame Curieplein 28 ENSCHEDE
  Madame Curieplein 28 ENSCHEDE
  Madame Curieplein 28 ENSCHEDE
  Madame Curieplein 28 ENSCHEDE
  Madame Curieplein 28 ENSCHEDE
  Madame Curieplein 28 ENSCHEDE
  Madame Curieplein 28 ENSCHEDE
  Madame Curieplein 28 ENSCHEDE
  Madame Curieplein 28 ENSCHEDE
  Madame Curieplein 28 ENSCHEDE
  Madame Curieplein 28 ENSCHEDE
  Madame Curieplein 28 ENSCHEDE

Plattegrond

  Plattegrond Madame Curieplein 28 ENSCHEDE
  Plattegrond Madame Curieplein 28 ENSCHEDE
  Plattegrond Madame Curieplein 28 ENSCHEDE
  Plattegrond Madame Curieplein 28 ENSCHEDE
  Plattegrond Madame Curieplein 28 ENSCHEDE
  Plattegrond Madame Curieplein 28 ENSCHEDE
  Plattegrond Madame Curieplein 28 ENSCHEDE
  Plattegrond Madame Curieplein 28 ENSCHEDE

Bezichtiging aanvragen Madame Curieplein 28

Vergelijkbaar aanbod ENSCHEDE

Van Riebeekstraat Verkocht
ENSCHEDE
Van Riebeekstraat 97
   € 250.000,- k.k.
Details
Hyacintstraat Verkocht
ENSCHEDE
Hyacintstraat 58
   € 265.000,- k.k.
Details
Lankheethoek Verkocht
ENSCHEDE
Lankheethoek 39
   € 259.500,- k.k.
Details

Wat is jouw huis waard?

Gratis rapport iQ Makelaars Leadtool