Apeldoorn, Gentiaanstraat 240
 
  • TypeHoekwoning
  • Woonoppervlakte130 m²
  • Perceelgrootte146 m²
  • Slaapkamers4
  • Aangeboden sinds09-04-2026
  • Beschikbaarheid In overleg
Bezichtiging aanvragen

Omschrijving Gentiaanstraat 240

Gentiaanstraat 240 te Apeldoorn

Hoekwoning met volop ruimte en mogelijkheden voor de handige koper

Ben je op zoek naar een woning die je volledig naar eigen smaak kunt moderniseren? Dan is deze ruime hoekwoning een unieke kans!

Deze woning vraagt om een grondige aanpak, maar biedt tegelijkertijd verrassend veel ruimte en potentie. De basis is degelijk, waardoor je hier een solide uitgangspunt hebt om stap voor stap jouw ideale thuis te realiseren. Met een heerlijk ruime woonkamer, volop lichtinval en een fijne indeling vormt dit de perfecte basis.

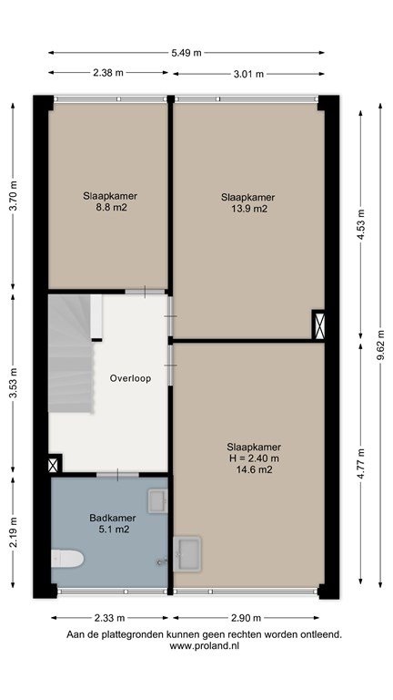
Op de eerste verdieping bevinden zich drie volwaardige slaapkamers, ideaal voor een gezin, thuiswerkplek of hobbyruimte. Daarnaast beschikt de woning over een riante zolderkamer, die eenvoudig kan worden ingericht als extra slaapkamer, werkruimte of studio.

De woning dient volledig gemoderniseerd te worden, wat jou als koper de kans geeft om alles naar eigen wens en stijl af te werken — van keuken en badkamer tot vloeren en afwerking.

Dankzij de ligging op een hoek geniet je bovendien van extra privacy en extra mogelijkheden rondom de woning.

Kortom: een woning met een goede basis, veel ruimte, potentie en vrijheid voor wie niet bang is om de handen uit de mouwen te steken.

Vraagprijs: € 350.000 k.k.
Aanvaarding: kan snel

Meer
Neem contact op

Loolaan 31 A
7314 AB Apeldoorn

T  055 - 760 1777
E  Apeldoorn@iQMakelaars.nl

Specificaties

Bouw

  • Soort Woningen
  • Type Hoekwoning
  • Bouwjaar 1972

Algemeen

  • Beschikbaarheid In overleg

Energie

  • Energielabel C
  • CV-ketel brandstof Gas
  • CV-ketel bouwjaar 2018

Indeling

  • Slaapkamers 4

Afmetingen

  • Woonoppervlakte 130 m²
  • Perceeloppervlakte 146 m²
  • Woninginhoud 450 m³
Meer

Schrijf je in voor onze woningmail, actueel aanbod!

Afbeeldingen

  Gentiaanstraat 240 Apeldoorn
  Gentiaanstraat 240 Apeldoorn
  Gentiaanstraat 240 Apeldoorn
  Gentiaanstraat 240 Apeldoorn
  Gentiaanstraat 240 Apeldoorn
  Gentiaanstraat 240 Apeldoorn
  Gentiaanstraat 240 Apeldoorn
  Gentiaanstraat 240 Apeldoorn
  Gentiaanstraat 240 Apeldoorn
  Gentiaanstraat 240 Apeldoorn
  Gentiaanstraat 240 Apeldoorn
  Gentiaanstraat 240 Apeldoorn
  Gentiaanstraat 240 Apeldoorn
  Gentiaanstraat 240 Apeldoorn
  Gentiaanstraat 240 Apeldoorn
  Gentiaanstraat 240 Apeldoorn
  Gentiaanstraat 240 Apeldoorn
  Gentiaanstraat 240 Apeldoorn
  Gentiaanstraat 240 Apeldoorn
  Gentiaanstraat 240 Apeldoorn
  Gentiaanstraat 240 Apeldoorn
  Gentiaanstraat 240 Apeldoorn
  Gentiaanstraat 240 Apeldoorn
  Gentiaanstraat 240 Apeldoorn
  Gentiaanstraat 240 Apeldoorn
  Gentiaanstraat 240 Apeldoorn
  Gentiaanstraat 240 Apeldoorn
  Gentiaanstraat 240 Apeldoorn
  Gentiaanstraat 240 Apeldoorn
  Gentiaanstraat 240 Apeldoorn
  Gentiaanstraat 240 Apeldoorn
  Gentiaanstraat 240 Apeldoorn
  Gentiaanstraat 240 Apeldoorn
  Gentiaanstraat 240 Apeldoorn
  Gentiaanstraat 240 Apeldoorn
  Gentiaanstraat 240 Apeldoorn
  Gentiaanstraat 240 Apeldoorn
  Gentiaanstraat 240 Apeldoorn
  Gentiaanstraat 240 Apeldoorn
  Gentiaanstraat 240 Apeldoorn
  Gentiaanstraat 240 Apeldoorn
  Gentiaanstraat 240 Apeldoorn

Bezichtiging aanvragen Gentiaanstraat 240

Vergelijkbaar aanbod Apeldoorn

Drecht Verkocht
Apeldoorn
Drecht 1
   € 350.000,- k.k.
Details
Zwolseweg Verkocht
APELDOORN
Zwolseweg 169
   € 350.000,- k.k.
Details
Prins Willem-Alexanderlaa Verkocht
APELDOORN
Prins Willem-Alexanderlaa 1461
   € 350.000,- k.k.
Details

Wat is jouw huis waard?

Gratis rapport iQ Makelaars Leadtool