Apeldoorn, Bachlaan 25
 
  • TypeHoekwoning
  • Woonoppervlakte86 m²
  • Perceelgrootte262 m²
  • Slaapkamers3
  • Aangeboden sinds17-01-2026
  • Beschikbaarheid In overleg
Bezichtiging aanvragen

Omschrijving Bachlaan 25

Bachlaan 25 – Apeldoorn

Starters opgelet!
Aan de Bachlaan 25 in Apeldoorn staat deze hoekwoning met een diepe achtertuin en diverse mogelijkheden om de woning verder naar eigen wens in te richten. De woning is praktisch ingedeeld, beschikt over veel lichtinval, is grotendeels voorzien van kunststof kozijnen en HR glas en ligt op korte afstand van dagelijkse voorzieningen.

Indeling:
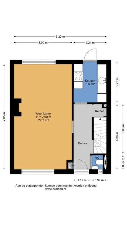
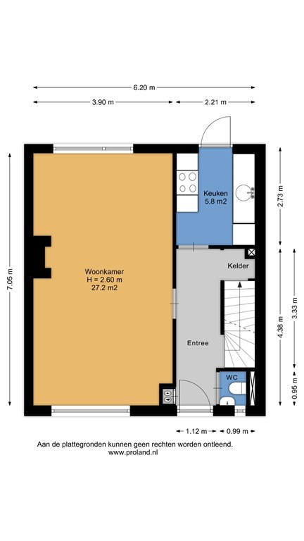
Via de entree heeft u toegang tot de woonkamer, keuken, kelder, het toilet en de trapopgang naar de eerste verdieping.
De woonkamer is een prettige doorzonkamer met grote raampartijen, een houten parketvloer en een gashaard, wat zorgt voor een aangename leefruimte.

De keukenopstelling dateert uit 2015 en is voorzien van diverse inbouwapparatuur, waaronder een vaatwasser, oven, gaskookplaat en afzuigkap. Vanuit de keuken is de achtertuin bereikbaar.

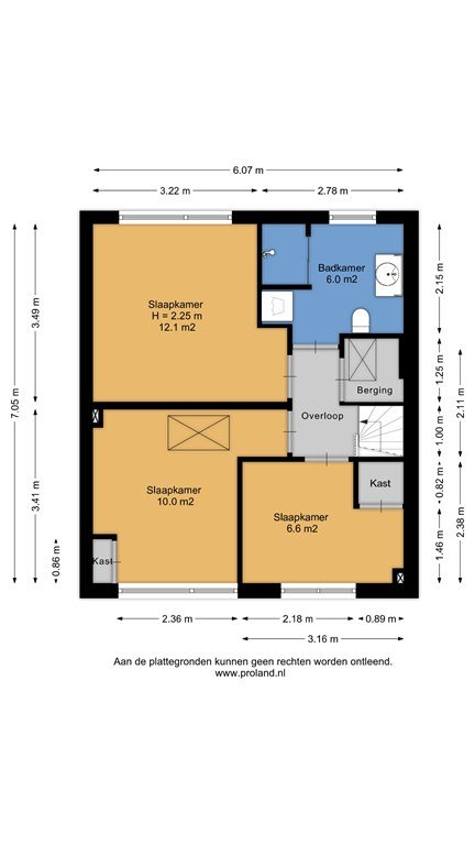
Op de eerste verdieping bevinden zich drie goed bemeten slaapkamers en een badkamer. De badkamer is eenvoudig uitgevoerd, maar netjes onderhouden.
Via een houten ladder is de zolderverdieping bereikbaar. Deze verdieping is momenteel nog niet voorzien van een vaste trap, maar een vaste trap is hier eenvoudig te realiseren. Hierdoor is de zolder goed te benutten als extra (slaap)kamer, werkruimte of hobbyruimte

Buitenruimte:
De achtertuin van ruim 16 meter diep, gelegen op het oosten, is verzorgd aangelegd en biedt volop ruimte om van het buitenleven te genieten.

Omgeving:
De woning is gelegen in het Componistenkwartier in Apeldoorn Zuid, een zeer kindvriendelijke wijk.
In de directe omgeving zijn diverse voorzieningen aanwezig. Op loopafstand ligt het Schubertplein met onder andere een supermarkt, eetcafé, viswinkel en meerdere winkels. Het centrum van Apeldoorn is per fiets goed bereikbaar en ook openbaar vervoer bevindt zich nabij.

Direct achter de woning is een kleinschalig speelparkje gelegen. Dit parkje is dagelijks geopend van 09:00 tot 20:00 uur in de zomerperiode en van 09:00 tot 17:00 uur in de winterperiode. Door deze vaste openingstijden blijft de omgeving overzichtelijk en rustig, terwijl het parkje overdag juist zorgt voor een levendige, groene en kindvriendelijke sfeer. Een prettige toevoeging voor gezinnen en een open, ruimtelijk gevoel achter de woning.

Bijzonderheden:

-Energielabel C

-CV-ketel (2024)

-Hoekwoning met goede lichtinval

-Grotendeels voorzien van kunststof kozijnen en HR glas

-Grotendeels voorzien van verduisterende rolluiken

-Diepe achtertuin op het oosten

-Mogelijkheid tot vaste trap naar de zolder

-Nabij voorzieningen en openbaar vervoer

-Openbaar parkeren

-In de koopovereenkomst zal een niet-zelfbewoningsclausule worden opgenomen

Vraagprijs: € 360.000,- k.k.
Aanvaarding: In overleg

Interesse?
Bel 055 – 760 1777 of mail

Wij plannen graag een bezichtiging voor u in!

Meer
Neem contact op

Loolaan 31 A
7314 AB Apeldoorn

T  055 - 760 1777
E  Apeldoorn@iQMakelaars.nl

Specificaties

Bouw

  • Soort Woningen
  • Type Hoekwoning
  • Bouwjaar 1952

Algemeen

  • Beschikbaarheid In overleg

Energie

  • Energielabel C
  • CV-ketel eigendom Ja
  • CV-ketel brandstof Gas
  • CV-ketel bouwjaar 2024

Indeling

  • Slaapkamers 3
  • Tuin Ja
  • Tuin ligging East

Afmetingen

  • Woonoppervlakte 86 m²
  • Perceeloppervlakte 262 m²
  • Woninginhoud 373 m³
  • Tuin oppervlakte 130 m²
Meer

Schrijf je in voor onze woningmail, actueel aanbod!

Bezichtiging aanvragen Bachlaan 25

Vergelijkbaar aanbod Apeldoorn

Drecht Verkocht
Apeldoorn
Drecht 1
   € 350.000,- k.k.
Details
Prins Willem-Alexanderlaa Verkocht
APELDOORN
Prins Willem-Alexanderlaa 1461
   € 350.000,- k.k.
Details
Zwolseweg Verkocht
APELDOORN
Zwolseweg 169
   € 350.000,- k.k.
Details

Wat is jouw huis waard?

Gratis rapport iQ Makelaars Leadtool