ALMELO, Leemslagenweg 39
 
  Verkocht
  • TypeVrijstaand
  • Woonoppervlakte172 m²
  • Perceelgrootte550 m²
  • Slaapkamers3
  • GarageJa
  • Aangeboden sinds28-11-2022
  • Beschikbaarheid In overleg
Bezichtiging aanvragen

Omschrijving Leemslagenweg 39

Op een super mooie en rustige locatie gelegen, groot vrijstaande woning met een ruime inpandige geïsoleerde garage geschikt voor slaapkamer/hobbyruimte. Tevens een zeer ruime schuur achter het huis van 4 meter breed bij 8 meter diep.

Het woonhuis is gelegen nabij het groen van het Nijreesbos, het centrum van Almelo, diverse (basis-)scholen, een supermarkt en de uitvalswegen (A1/A35).

Indeling
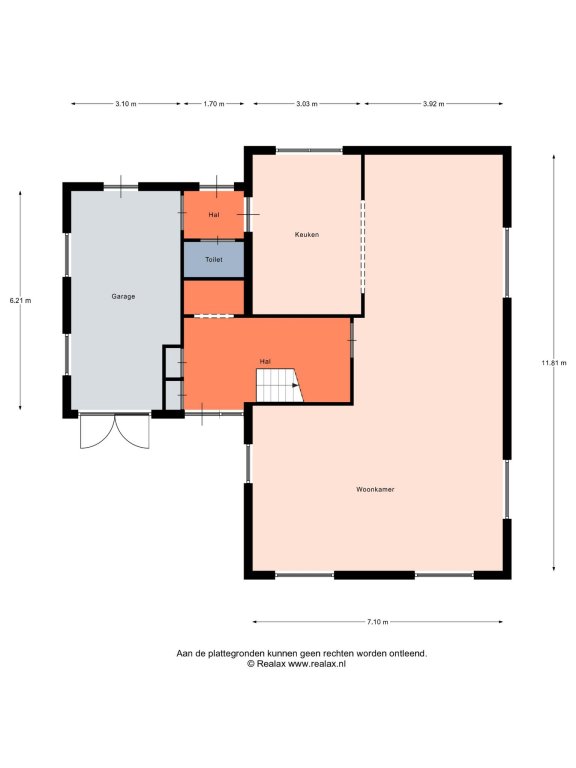
Begane grond:
Entree, hal met garderobe, royale L-vormige woonkamer voorzien van schouw met openhaard partij en tuindeuren naar zonneterras, luxe woonkeuken met diverse inbouwapparatuur, bijkeuken met wasfaciliteit, modern toilet met fonteintje en doorloop naar de garage.

1e Verdieping:
Overloop met 3 ruime slaapkamers, waarvan 1 met doorloop naar groot balkon en 2 met vaste kasten, badkamer uitgevoerd in marmer met groot 2-persoons bad, douche/stoomcabine wastafel en toilet, C.V. ruimte. Vlizotrap naar...

2e Verdieping:
Grote bergzolder.

Bijzonderheden:
- Bouwjaar: 1981,
- Woonoppervlak: 172 m²,
- Inhoud: 596 m³,
- Perceeloppervlak: 552 m²;
- De begane grond is deels voorzien van een marmeren vloer en vloerverwarming;
- De garage kan eenvoudig omgebouwd worden tot kantoor of slaap-/ en badkamer;
- Verwarming en warm water middels CV ketel, type Vaillant (2008);

Kortom een zeer ruime vrijstaande woning met veel mogelijkheden, gelegen op een heel mooie locatie in de wijk.

Meer
Neem contact op

iQ Makelaars Kantoor Almelo
Danny Mulder
Twentepoort Oost 34
7609 RG Almelo

T  0546 - 305 301
E  Almelo@iQMakelaars.nl

Specificaties

Bouw

  • Soort Woningen
  • Type Vrijstaand
  • Bouwjaar 1981

Algemeen

  • Beschikbaarheid In overleg

Energie

  • Energielabel C
  • CV-ketel Combi
  • CV-ketel eigendom Ja
  • CV-ketel brandstof Gas
  • CV-ketel bouwjaar 2008
  • CV-ketel warmwater Ja
  • Aanwezige isolatie Dakisolatie, muurisolatie, vloerisolatie, glasisolatie

Indeling

  • Slaapkamers 3
  • Garage Ja
  • Tuin Ja

Voorziening

  • Parkeerplaats Ja

Afmetingen

  • Woonoppervlakte 172 m²
  • Perceeloppervlakte 550 m²
  • Woninginhoud 596 m³
  • Tuin oppervlakte 400 m²
Meer
  • Wijk en buurt
    Maardijk
  • Bevolking
    Gem. grootte huishouden
    2.8 personen
  • Detailhandel
    Grote supermarkt
    1km
  • Inkomen
    Gem. inkomen
    €0.000 p/j
  • Vervoer
    Station
    3.3km
  • Wonen
    Gem. woningwaarde
    €266.000
    Koopwoningen
    99%

Schrijf je in voor onze woningmail, actueel aanbod!

Afbeeldingen

  Leemslagenweg 39 ALMELO
  Leemslagenweg 39 ALMELO
  Leemslagenweg 39 ALMELO
  Leemslagenweg 39 ALMELO
  Leemslagenweg 39 ALMELO
  Leemslagenweg 39 ALMELO
  Leemslagenweg 39 ALMELO
  Leemslagenweg 39 ALMELO
  Leemslagenweg 39 ALMELO
  Leemslagenweg 39 ALMELO
  Leemslagenweg 39 ALMELO
  Leemslagenweg 39 ALMELO
  Leemslagenweg 39 ALMELO
  Leemslagenweg 39 ALMELO
  Leemslagenweg 39 ALMELO
  Leemslagenweg 39 ALMELO
  Leemslagenweg 39 ALMELO
  Leemslagenweg 39 ALMELO
  Leemslagenweg 39 ALMELO
  Leemslagenweg 39 ALMELO
  Leemslagenweg 39 ALMELO
  Leemslagenweg 39 ALMELO
  Leemslagenweg 39 ALMELO
  Leemslagenweg 39 ALMELO
  Leemslagenweg 39 ALMELO
  Leemslagenweg 39 ALMELO

Plattegrond

  Plattegrond Leemslagenweg 39 ALMELO
  Plattegrond Leemslagenweg 39 ALMELO
  Plattegrond Leemslagenweg 39 ALMELO
  Plattegrond Leemslagenweg 39 ALMELO

Bezichtiging aanvragen Leemslagenweg 39

Vergelijkbaar aanbod ALMELO

Grand Canal Verkocht
ALMELO
Grand Canal 3
   € 469.000,- k.k.
Details
Bornerbroeksestraat Verkocht
ALMELO
Bornerbroeksestraat 336
   € 469.000,- k.k.
Details

Wat is jouw huis waard?

Gratis rapport iQ Makelaars Leadtool