ZWOLLE, Dijkstraat 1 A
 
  • TypeBovenwoning
  • Woonoppervlakte101 m²
  • Slaapkamers4
  • Aangeboden sinds11-09-2025
  • Beschikbaarheid In overleg
Bezichtiging aanvragen

Omschrijving Dijkstraat 1 A

Wonen op een unieke plek in hartje binnenstad Zwolle, om de hoek van de sfeervolle Thorbeckegracht!

Stap je voordeur uit, loop het bruggetje over en je staat midden in het bruisende stadsleven. Alle voorzieningen, horeca en winkels liggen letterlijk om de hoek, terwijl je met vijf minuten de A28 bereikt en binnen tien minuten op station Zwolle staat. Centraler wonen kan bijna niet.

De woning zelf? Een bovenwoning van 101 m² woonoppervlakte, verdeeld over twee woonlagen, die wacht op iemand met oog voor mogelijkheden. Dit is een echte kluswoning waar je alles naar eigen smaak en stijl kunt moderniseren.

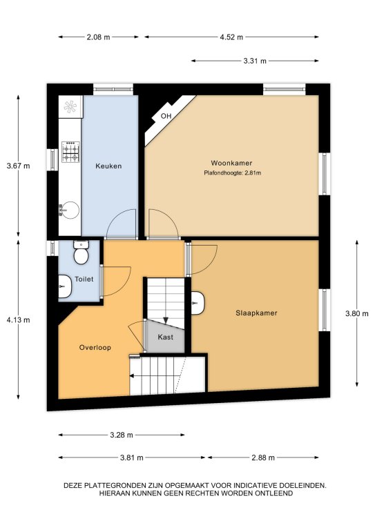
Indeling
Begane grond
Entree met trapopgang naar de eerste verdieping.

Eerste verdieping
Hier bevinden zich nu een woonkamer, een gesloten keuken en een ruime overloop met trapkast en toilet. Met een slimme indeling kun je hier eenvoudig een royale woonkamer met open keuken realiseren – ideaal voor wie houdt van licht en ruimte.

Tweede verdieping
Op deze verdieping vind je drie slaapkamers, een ruime overloop en de badkamer. Daarnaast biedt deze etage de mogelijkheid om een prachtige loggia te creëren, zodat je alsnog over een heerlijk buitenplekje beschikt in de binnenstad.

Pluspunten op een rij
- Toplocatie in de binnenstad van Zwolle, bij de Thorbeckegracht
- 101 m² woonoppervlak, verdeeld over twee verdiepingen
- Naar eigen smaak te moderniseren – dé kans om je droomwoning te maken
- Mogelijkheid om een loggia te realiseren
- Station en snelweg A28 binnen enkele minuten bereikbaar

Ben jij op zoek naar een ruime woning in de historische binnenstad, en steek je graag je handen uit de mouwen om alles naar eigen wens te maken? Dan is Dijkstraat 1A precies wat je zoekt.

Wij denken graag met je mee tijdens een bezichtiging, zien we je hier snel?

Meer
Neem contact op

Grote Kerkplein 14
8011 PK Zwolle

T  0382 - 001 780
E  Zwolle@iQMakelaars.nl

Specificaties

Bouw

  • Soort Woningen
  • Type Bovenwoning
  • Bouwjaar 1979

Algemeen

  • Beschikbaarheid In overleg

Energie

  • Energielabel F
  • CV-ketel Combi
  • CV-ketel eigendom Ja
  • CV-ketel brandstof Gas
  • CV-ketel bouwjaar 2009
  • CV-ketel warmwater Ja
  • Aanwezige isolatie Glasisolatie

Indeling

  • Slaapkamers 4

Voorziening

  • Parkeerplaats Ja

Afmetingen

  • Woonoppervlakte 101 m²
  • Woninginhoud 341 m³
Meer

Schrijf je in voor onze woningmail, actueel aanbod!

Afbeeldingen

  Dijkstraat 1 A ZWOLLE
  Dijkstraat 1 A ZWOLLE
  Dijkstraat 1 A ZWOLLE
  Dijkstraat 1 A ZWOLLE
  Dijkstraat 1 A ZWOLLE
  Dijkstraat 1 A ZWOLLE
  Dijkstraat 1 A ZWOLLE
  Dijkstraat 1 A ZWOLLE
  Dijkstraat 1 A ZWOLLE
  Dijkstraat 1 A ZWOLLE
  Dijkstraat 1 A ZWOLLE
  Dijkstraat 1 A ZWOLLE
  Dijkstraat 1 A ZWOLLE
  Dijkstraat 1 A ZWOLLE
  Dijkstraat 1 A ZWOLLE
  Dijkstraat 1 A ZWOLLE
  Dijkstraat 1 A ZWOLLE
  Dijkstraat 1 A ZWOLLE
  Dijkstraat 1 A ZWOLLE
  Dijkstraat 1 A ZWOLLE
  Dijkstraat 1 A ZWOLLE
  Dijkstraat 1 A ZWOLLE
  Dijkstraat 1 A ZWOLLE
  Dijkstraat 1 A ZWOLLE
  Dijkstraat 1 A ZWOLLE
  Dijkstraat 1 A ZWOLLE
  Dijkstraat 1 A ZWOLLE
  Dijkstraat 1 A ZWOLLE
  Dijkstraat 1 A ZWOLLE
  Dijkstraat 1 A ZWOLLE
  Dijkstraat 1 A ZWOLLE
  Dijkstraat 1 A ZWOLLE
  Dijkstraat 1 A ZWOLLE
  Dijkstraat 1 A ZWOLLE
  Dijkstraat 1 A ZWOLLE
  Dijkstraat 1 A ZWOLLE
  Dijkstraat 1 A ZWOLLE
  Dijkstraat 1 A ZWOLLE

Bezichtiging aanvragen Dijkstraat 1 A

Vergelijkbaar aanbod ZWOLLE

Berkumstraat Verkocht
ZWOLLE
Berkumstraat 94
   € 350.000,- k.k.
Details
Van der Graaffmarke Verkocht
ZWOLLE
Van der Graaffmarke 33
   € 345.000,- k.k.
Details
Van Ittersumstraat Verkocht
ZWOLLE
Van Ittersumstraat 82
   € 350.000,- k.k.
Details

Wat is jouw huis waard?

Gratis rapport iQ Makelaars Leadtool