WOLVEGA, Ds.Talmastraat 4
 
  • Type2-onder-1-kap
  • Woonoppervlakte83 m²
  • Perceelgrootte250 m²
  • Slaapkamers3
  • GarageJa
  • Aangeboden sinds18-08-2021
  • Beschikbaarheid In overleg
Bezichtiging aanvragen

Omschrijving Ds.Talmastraat 4

AANGEBODEN IN WOLVEGA

Prachtige 2 onder 1 kap woning met 4 slaapkamers en stenen garage.
De woning is volledig geïsoleerd en voorzien van kunststofkozijnen met HR glas.

Op loopafstand van het centrum, openbaar vervoer, speeltuin en supermarkt staat deze goed onderhouden 2 onder 1 kap woning in de aanbieding. De woning beschikt over een open keuken voorzien van o.a. vaatwasser, magnetron, oven en koelkast. (apparatuur recent vervangen) Daarnaast is op de begane grond een kelder (ca. 7,5 m2) en ruime geïsoleerde bijkeuken (ca. 8 m2) aanwezig. Op de eerste verdieping bevinden zich 3 ruime slaapkamers (waarvan de achterste kamer toegang biedt tot een klein dakterras) en een badkamer met douche en wastafelmeubel. De zolderruimte is met een vaste trap te bereiken en zeer geschikt om te gebruiken als logeerkamer.

De tuin bevindt zich op het zuidwesten en beschikt over zowel een houten berging als een ruime stenen garage. Naast de woning is een eigen oprit aanwezig geschikt voor 1 parkeerplek.
Ook kunt u gratis parkeren aan de openbare weg nabij de woning.

INDELING:
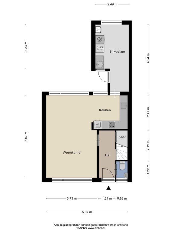
-Begane grond: Hal/entree met trapopgang naar eerste verdieping, Toilet met fonteintje en kelder. Ruime woonkamer met massief eiken vloer en open keuken voorzien van apparatuur, bijkeuken met witgoedaansluiting en Cv-installatie (huur).
-Eerste verdieping: Overloop, 3 slaapkamers met inbouwkasten en deur naar dakterras. Badkamer voorzien van douche, wastafelmeubel en designradiator. Vaste trap naar tweede verdieping.
-Tweede verdieping: Zolderruimte (geïsoleerd) met dakramen , en met extra slaapkamer

BIJZONDERHEDEN:
-Volledig kunststof kozijnen met HR glas
-Geïsoleerde woning (vloer, muren en dak)
-Huurcontract Cv-ketel (AWB uit 2014) is voor niet al te veel geld af te kopen.
-4 slaapkamers
-Vrijstaande stenen garage.
-Tuin op het zuidwesten
-Kind vriendelijke buurt, loopafstand van het centrum

Vraagprijs: € 229.000,- k.k. aanvaarding in overleg

Bent u ook zo enthousiast geworden? Wacht niet te lang en plan direct een bezichtiging in.
(BIJ VOORKEUR BEZICHTIGINGEN PER MAIL AANVRAGEN)

Meer
Neem contact op

iQ Makelaars Hoofdkantoor
Roessinghsbleekweg 21,
7522 AH Enschede

T  088 - 700 99 99
E  info@iQMakelaars.nl

Specificaties

Bouw

  • Soort Woningen
  • Type 2-onder-1-kap
  • Bouwjaar 1963

Algemeen

  • Beschikbaarheid In overleg

Energie

  • Energielabel C
  • CV-ketel Combi
  • CV-ketel brandstof Gas
  • CV-ketel bouwjaar 2014
  • CV-ketel warmwater Ja
  • Aanwezige isolatie Dakisolatie, muurisolatie, vloerisolatie

Indeling

  • Slaapkamers 3
  • Garage Ja
  • Kelder Ja , 1m²
  • Tuin Ja
  • Tuin ligging Zuidwest

Voorziening

  • Parkeerplaats Ja

Afmetingen

  • Woonoppervlakte 83 m²
  • Perceeloppervlakte 250 m²
  • Woninginhoud 351 m³
Meer
  • Wijk en buurt
    Wolvega-Staatsliedenbuurt
  • Bevolking
    Gem. grootte huishouden
    1.9 personen
  • Detailhandel
    Grote supermarkt
    0.7km
  • Inkomen
    Gem. inkomen
    €21.100 p/j
  • Vervoer
    Station
    13.1km
  • Wonen
    Gem. woningwaarde
    €112.000
    Koopwoningen
    23%

Schrijf je in voor onze woningmail, actueel aanbod!

Afbeeldingen

  Ds.Talmastraat 4 WOLVEGA
  Ds.Talmastraat 4 WOLVEGA
  Ds.Talmastraat 4 WOLVEGA
  Ds.Talmastraat 4 WOLVEGA
  Ds.Talmastraat 4 WOLVEGA
  Ds.Talmastraat 4 WOLVEGA
  Ds.Talmastraat 4 WOLVEGA
  Ds.Talmastraat 4 WOLVEGA
  Ds.Talmastraat 4 WOLVEGA
  Ds.Talmastraat 4 WOLVEGA
  Ds.Talmastraat 4 WOLVEGA
  Ds.Talmastraat 4 WOLVEGA
  Ds.Talmastraat 4 WOLVEGA
  Ds.Talmastraat 4 WOLVEGA
  Ds.Talmastraat 4 WOLVEGA
  Ds.Talmastraat 4 WOLVEGA
  Ds.Talmastraat 4 WOLVEGA
  Ds.Talmastraat 4 WOLVEGA
  Ds.Talmastraat 4 WOLVEGA
  Ds.Talmastraat 4 WOLVEGA
  Ds.Talmastraat 4 WOLVEGA
  Ds.Talmastraat 4 WOLVEGA
  Ds.Talmastraat 4 WOLVEGA
  Ds.Talmastraat 4 WOLVEGA
  Ds.Talmastraat 4 WOLVEGA
  Ds.Talmastraat 4 WOLVEGA
  Ds.Talmastraat 4 WOLVEGA
  Ds.Talmastraat 4 WOLVEGA
  Ds.Talmastraat 4 WOLVEGA
  Ds.Talmastraat 4 WOLVEGA
  Ds.Talmastraat 4 WOLVEGA
  Ds.Talmastraat 4 WOLVEGA
  Ds.Talmastraat 4 WOLVEGA
  Ds.Talmastraat 4 WOLVEGA
  Ds.Talmastraat 4 WOLVEGA
  Ds.Talmastraat 4 WOLVEGA
  Ds.Talmastraat 4 WOLVEGA
  Ds.Talmastraat 4 WOLVEGA
  Ds.Talmastraat 4 WOLVEGA
  Ds.Talmastraat 4 WOLVEGA
  Ds.Talmastraat 4 WOLVEGA

Plattegrond

  Plattegrond Ds.Talmastraat 4 WOLVEGA
  Plattegrond Ds.Talmastraat 4 WOLVEGA
  Plattegrond Ds.Talmastraat 4 WOLVEGA
  Plattegrond Ds.Talmastraat 4 WOLVEGA
  Plattegrond Ds.Talmastraat 4 WOLVEGA
  Plattegrond Ds.Talmastraat 4 WOLVEGA
  Plattegrond Ds.Talmastraat 4 WOLVEGA
  Plattegrond Ds.Talmastraat 4 WOLVEGA
  Plattegrond Ds.Talmastraat 4 WOLVEGA
  Plattegrond Ds.Talmastraat 4 WOLVEGA
  Plattegrond Ds.Talmastraat 4 WOLVEGA
  Plattegrond Ds.Talmastraat 4 WOLVEGA
  Plattegrond Ds.Talmastraat 4 WOLVEGA
  Plattegrond Ds.Talmastraat 4 WOLVEGA

Bezichtiging aanvragen Ds.Talmastraat 4

Wat is jouw huis waard?

Gratis rapport iQ Makelaars Leadtool