VRIEZENVEEN, De Kievit 5
 
  Verkocht
  • TypeVrijstaand
  • Woonoppervlakte257 m²
  • Perceelgrootte514 m²
  • Slaapkamers4
  • GarageJa
  • Aangeboden sinds09-12-2021
  • Beschikbaarheid In overleg
Bezichtiging aanvragen

Omschrijving De Kievit 5

Gelegen op een uiterst fraaie kavel nabij het centrum van Vriezenveen, wordt u aangeboden een zeer ruim karakteristiek vrijstaand woonhuis, compleet onderkelderd en met een grote inpandige garage.

In de basis betreft het hier een zeer degelijk en goed onderhouden woonhuis. Het is een praktisch en authentiek ontworpen woonhuis met erg veel ruimte. De kelder beneden de hele woning beslaat al zo'n 70 vierkante meter.
De woning heeft dubbel glas, maar de kozijnen hebben een schilderbeurt nodig, evenals de balkons voor en achter. De tuin heeft weinig aandacht gekregen, maar biedt veel mogelijkheden

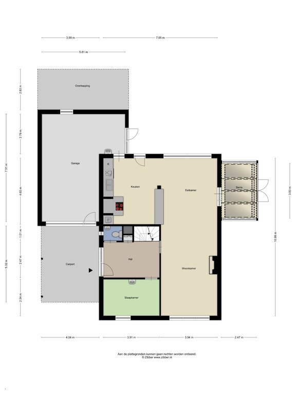
Indeling begane grond: 
Entree, ruime hal vanwaar toegang naar het toilet, een studie/werk/slaapkamer, toegang tot een heel ruime kelder en 1e verdieping, een zeer ruime woonkamer met open haard en aangebouwde glazen serre op het zuiden, vanuit de serre middels openslaande tuindeuren staat u zo in de tuin, een zeer ruime open keuken voorzien van inbouwapparatuur, elektrische kookplaat, vaatwasser, combi-magnetron & koelkast met vriesvak. Vanuit de keuken is toegang tot een ruime garage/berging. 

Indeling 1e etage:
Een ruime overloop met 4 vaste kasten, slaapkamer 1 voorzien van vaste kasten, wastafel en toegang tot een fraai gedeeld balkon aan de voorzijde, slaapkamer 2  voorzien van wastafel en toegang tot het balkon aan de voorzijde, slaapkamer 3 voorzien van vaste kasten en toegang tot het balkon aan de achterzijde, grote badkamer voorzien van ligbad, aparte douche, wastafel, toilet en wasmachine/droger aansluiting. toegang tot vlizotrap naar ruime opbergzolder


Bijzonderheden
- Karakteristiek vrijstaand woonhuis
- Geheel onderkelderd ruim 87 m2 (zit bij woonoppervlakte in)
- Zeer ruime woning
- Zeer ruime badkamer
- Voorzien van Alarminstallatie
- Bouwjaar 1974.
- Perceel 514 m2.
- Woonoppervlakte circa 257 m2 (exclusief overige inpandige ruimte).
- Overige inpandige ruimte (zolderberging, garage, verdieping garage) circa 56 m2
- Gebouw gebonden buitenruimte (balkon) circa 2,4 m2.
- Inhoud circa 1007 m3.
- Warm water middels Boiler.
- Verwarming middels CV ketel
- Voorlopig energielabel D.

Meer
Neem contact op

iQ Makelaars Kantoor Almelo
Danny Mulder
Twentepoort Oost 34
7609 RG Almelo

T  0546 - 305 301
E  Almelo@iQMakelaars.nl

Specificaties

Bouw

  • Soort Woningen
  • Type Vrijstaand
  • Bouwjaar 1974

Algemeen

  • Beschikbaarheid In overleg

Indeling

  • Slaapkamers 4
  • Garage Ja
  • Kelder Ja , 1m²
  • Tuin Ja
  • Tuin ligging Zuidwest
  • Balkon Ja

Voorziening

  • Parkeerplaats Ja

Afmetingen

  • Woonoppervlakte 257 m²
  • Perceeloppervlakte 514 m²
  • Woninginhoud 1007 m³
  • Tuin oppervlakte 254 m²
  • Balkon oppervlakte 1 m²

Energie

  • CV-ketel hr
  • CV-ketel eigendom Ja
  • CV-ketel brandstof Gas
  • Aanwezige isolatie Dakisolatie, muurisolatie, glasisolatie
Meer
  • Wijk en buurt
    Westerweilanden-Elzenhoek
  • Bevolking
    Gem. grootte huishouden
    2.4 personen
  • Detailhandel
    Grote supermarkt
    0.9km
  • Inkomen
    Gem. inkomen
    €23.300 p/j
  • Vervoer
    Station
    7.1km
  • Wonen
    Gem. woningwaarde
    €208.000
    Koopwoningen
    71%

Schrijf je in voor onze woningmail, actueel aanbod!

Afbeeldingen

  De Kievit 5 VRIEZENVEEN
  De Kievit 5 VRIEZENVEEN
  De Kievit 5 VRIEZENVEEN
  De Kievit 5 VRIEZENVEEN
  De Kievit 5 VRIEZENVEEN
  De Kievit 5 VRIEZENVEEN
  De Kievit 5 VRIEZENVEEN
  De Kievit 5 VRIEZENVEEN
  De Kievit 5 VRIEZENVEEN
  De Kievit 5 VRIEZENVEEN
  De Kievit 5 VRIEZENVEEN
  De Kievit 5 VRIEZENVEEN
  De Kievit 5 VRIEZENVEEN
  De Kievit 5 VRIEZENVEEN
  De Kievit 5 VRIEZENVEEN
  De Kievit 5 VRIEZENVEEN
  De Kievit 5 VRIEZENVEEN
  De Kievit 5 VRIEZENVEEN
  De Kievit 5 VRIEZENVEEN
  De Kievit 5 VRIEZENVEEN
  De Kievit 5 VRIEZENVEEN
  De Kievit 5 VRIEZENVEEN
  De Kievit 5 VRIEZENVEEN
  De Kievit 5 VRIEZENVEEN
  De Kievit 5 VRIEZENVEEN
  De Kievit 5 VRIEZENVEEN
  De Kievit 5 VRIEZENVEEN

Plattegrond

  Plattegrond De Kievit 5 VRIEZENVEEN
  Plattegrond De Kievit 5 VRIEZENVEEN
  Plattegrond De Kievit 5 VRIEZENVEEN
  Plattegrond De Kievit 5 VRIEZENVEEN
  Plattegrond De Kievit 5 VRIEZENVEEN
  Plattegrond De Kievit 5 VRIEZENVEEN
  Plattegrond De Kievit 5 VRIEZENVEEN
  Plattegrond De Kievit 5 VRIEZENVEEN

Bezichtiging aanvragen De Kievit 5

Wat is jouw huis waard?

Gratis rapport iQ Makelaars Leadtool