Siddeburen, Hoofdweg 65
 
  • TypeVrijstaand
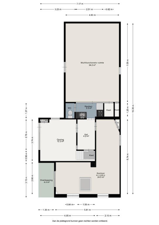
  • Woonoppervlakte136 m²
  • Perceelgrootte2413 m²
  • Slaapkamers4
  • Aangeboden sinds24-01-2026
  • Beschikbaarheid In overleg
Bezichtiging aanvragen

Omschrijving Hoofdweg 65

Hoofdweg 65, Siddeburen

Vrijstaand wonen met ruimte, rust en volop mogelijkheden

Aan de Hoofdweg 65 in Siddeburen staat deze vrijstaande woning waar wonen en werken perfect samenkomen. Gelegen op een royaal perceel biedt deze woning alle talloze mogelijkheden voor wie op zoek is naar rust, vrijheid en een veelzijdig erf. Deze woning heeft perfect ruimte voor hobby’s of het combineren van wonen en werken.

Wonen

De woning beschikt over een ruim woonoppervlakte en een unieke indeling. Bij binnenkomst ervaar je direct een prettige sfeer en het gevoel van ruimte. De vele kamers op de begane grond zorgen voor veel mogelijkheden in de inrichting van de woning waar je alle creativiteit op los kan laten.

Verder beschikt de woning over meerdere slaapkamers en een kelder. waardoor het huis geschikt is voor gezinnen, thuiswerkers of levensloopbestendig wonen.

Buitenleven

Rondom de woning ligt een ruim perceel met diverse mogelijkheden. Het erf biedt volop ruimte voor tuinliefhebbers, dierenliefhebbers of het creëren van meerdere zitplekken om optimaal van het buitenleven te genieten.

De woning beschikt over een lange oprit, perfect om meerdere auto’s of andere voertuigen op te parkeren.

Het extra bijgebouw maakt het geheel extra praktisch en biedt kansen voor opslag, een hobbyruimte, werkplaats of kantoor aan huis.

Energie & onderhoud

De woning is degelijk gebouwd en door de jaren heen onderhouden. Afhankelijk van de verdere invulling en wensen biedt de woning mogelijkheden om te verduurzamen en naar eigen smaak te moderniseren.

Omgeving

Siddeburen is een levendig dorp in de gemeente Midden-Groningen met diverse voorzieningen zoals winkels, scholen en sportfaciliteiten. De ligging is gunstig ten opzichte van uitvalswegen richting Appingedam, Delfzijl en de stad Groningen. Je woont hier landelijk, maar met alle dagelijkse voorzieningen binnen handbereik.

Samengevat
• Vrijstaande woning
• Ruim perceel
• Veel privacy en mogelijkheden
• 10 zonnepanelen
• Geschikt voor wonen, werken en hobby’s

Nieuwsgierig geworden?

Neem contact met ons op voor een bezichtiging van Hoofdweg 65 in Siddeburen en ontdek de vele mogelijkheden die deze woning te bieden heeft. Een plek met potentie klaar om jouw nieuwe thuis te worden!

Belangrijk om te weten

De woning staat op een royale kavel van ruim 900 m², met daarnaast circa 1.500 m² extra grond in kosteloze, permanente bruikleen van de gemeente Midden-Groningen. Het perceel is deels verhard en beschikt over een diepe, op het zuiden gelegen natuurtuin met jonge fruitbomen. Aan de voor- en zijkant van de woning bevindt zich een verzorgde siertuin. Op de ruime oprit is plaats voor minimaal vier auto’s, wat zorgt voor comfortabele parkeergelegenheid op eigen terrein.

Meer
Neem contact op

iQ Makelaars Midden-Groningen
Lougpadje 15
9628AD Siddeburen

T  0598 - 592 395
E  Midden-Groningen@iQMakelaars.nl

Specificaties

Bouw

  • Soort Woningen
  • Type Vrijstaand
  • Bouwjaar 1971

Algemeen

  • Beschikbaarheid In overleg

Energie

  • Energielabel B

Indeling

  • Slaapkamers 4

Afmetingen

  • Woonoppervlakte 136 m²
  • Perceeloppervlakte 2413 m²
  • Woninginhoud 883 m³
Meer

Schrijf je in voor onze woningmail, actueel aanbod!

Bezichtiging aanvragen Hoofdweg 65

Wat is jouw huis waard?

Gratis rapport iQ Makelaars Leadtool