RAVENSTEIN, Maasdijk 41
 
  • TypeVrijstaand
  • Woonoppervlakte118 m²
  • Perceelgrootte64 m²
  • Slaapkamers5
  • Aangeboden sinds24-06-2022
  • Beschikbaarheid In overleg
Bezichtiging aanvragen

Omschrijving Maasdijk 41

Karakteristieke woning met schitterend uitzicht op de Maas. Gelegen op prachtige locatie in het vestingstadje Ravenstein.

Deze bijzonder royale woning is door de huidige bewoners uitstekend onderhouden.
De woning heeft een royale woonkeuken met open haard op de begane grond met achtergelegen toilet en bijkeuken/multifunctionele ruimte.

Op de 1e etage treft u de woonkamer – met fabelachtig uitzicht over de Maas- met aansluiting voor houtkachel. Aan de achterzijde ligt een kamer met toegang tot het balkon op het zuiden en daarnaast een royale en bijzonder fraai aangelegde badkamer met bad, douche, wastafelmeubel en toilet.

Op de 2e etage treft u 2 royale slaapkamers en een kleinere slaapkamer. De slaapkamer aan de voorzijde heeft een dakkapel en ook weer mooi uitzicht op de rivier.

De royale woonkeuken is voorzien van koelkast, vaatwasser, oven en gaskookplaat.

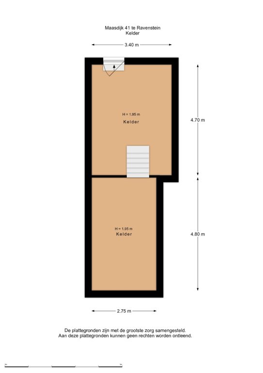
De woning beschikt over een dubbele kelder. De 1e kelder is bereikbaar via een vaste trap en bied een prachtige opslagmogelijkheid.
De 2e kelder is een gewelfde kelder verder verlaagd via een uittrektrap en heeft toegang naar een binnenplaats aan de achterzijde van de woning via een deur en trappetje. Hier is daglicht en kan gelucht worden. Een ideale multifunctionele ruimte voor hobby of opslag.

GLOBALE INDELING

Begane grond: Hal, meterkast, royale woonkeuken met open haard, bijkeuken met toilet en toegang tot de kelders. In de bijkeuken is ook de wasmachine aansluiting.

Open trap naar de 1e etage.

Eerste verdieping: Overloop met toegang tot woonkamer met aansluiting voor houtkachel, badkamer en werkkamer met achtergelegen balkon.
De fraaie badkamer is voorzien van bad, douche, toilet en dubbele wastafel.
Vaste trap naar de zolderetage.

Zolderverdieping: Overloop met toegang tot 3 slaapkamers. Aan de voorkant en achterzijde van de woning royale slaapkamers met fraai uitzicht. Aan de achterkant op de daken van Ravenstein centrum. Aan de voorkant een royale kamer met dakkapel en uitzicht op de rivier de Maas. Tussen de 2 slaapkamers ligt een kleinere slaapkamer aan de zijkant van de woning.

Dubbele kelder onder de woning te bereiken via een ingang via de bijkeuken.



BIJZONDERHEDEN

Bijzonder fraaie ligging ten opzichte van centrum Ravenstein en met magnifiek uitzicht op de Maas.
Voor de deur aan de overkant van de straat staat een tuintafel met tuinbank en stoelen klaar voor gebruik om te genieten van het buiten zijn aan het water. Let op. Deze woning beschikt niet over een eigen tuin. Dus wilt u wel de lusten maar niet de lasten van een buitenplek dan is deze droomlocatie voor u bijzonder geschikt.

Klein plaatsje voor de deur afgeschermd met een hek.

Parkeren naast de deur op een vergunninghouder plaats. Op loopafstand zijn veel meer vergunninghouder plaatsen en gratis parkeerplaatsen beschikbaar.


Ravenstein.
Vestingstad Ravenstein kent een lange geschiedenis onder veel verschillende heersers. Het stadje ontstond in de 14e eeuw in het grensgebied tussen Brabant, Gelre en Kleef. Een leenman van de hertog van Brabant bouwde bij de Maas een kasteel om tol te heffen. Vestingstad Ravenstein was lange tijd niet Hollands maar ook niet Brabants: het hoorde bij Hertogdom Kleef. De stad Ravenstein was immers de hoofdstad van het Land van Ravenstein. Lange tijd was het ook een toevluchtsoord oor katholieke kloosters verdreven door calvinistische bezetters. In 1814 kwam het bij het Koninkrijk der Nederlanden.

Tussen de honderden bezienswaardigheden kun je heerlijk bijkomen in gezellige restaurants en cafés! Iedere inwoner van Ravenstein kan je vertellen over hun stadsgenoot, professor Van Mourik. Die ontdekte eind vorige eeuw toevallig een oude vestingwal onder het gras in zijn tuin. Toen hij met hulp van archeologen verder groef, bleek er een compleet bouwwerk uit 1509 onder de grond te zitten! Dit Philips van Kleefbolwerck kun je bezoeken door te wandelen in Ravenstein.

Ravenstein kent diverse lagere scholen en een NS station.
Zeer goede aansluiting op de A50. Slechts 15 km. van Nijmegen.

Meer
Neem contact op

iQ Makelaars Hoofdkantoor
Hanna Wierts
Roessinghsbleekweg 21,
7522 AH Enschede

T  088 - 700 99 99
E  info@iQMakelaars.nl

Specificaties

Bouw

  • Soort Woningen
  • Type Vrijstaand
  • Bouwjaar 1832

Algemeen

  • Beschikbaarheid In overleg

Energie

  • Energielabel E
  • CV-ketel Combi
  • CV-ketel eigendom Ja
  • CV-ketel brandstof Gas
  • CV-ketel bouwjaar 2018
  • CV-ketel warmwater Ja
  • Aanwezige isolatie Glasisolatie

Indeling

  • Slaapkamers 5

Voorziening

  • Parkeerplaats Ja

Afmetingen

  • Woonoppervlakte 118 m²
  • Perceeloppervlakte 64 m²
  • Woninginhoud 534 m³
Meer
  • Wijk en buurt
    Ravenstein
  • Bevolking
    Gem. grootte huishouden
    2.1 personen
  • Detailhandel
    Grote supermarkt
    0.5km
  • Inkomen
    Gem. inkomen
    €0.000 p/j
  • Vervoer
    Station
    18.2km
  • Wonen
    Gem. woningwaarde
    €260.000
    Koopwoningen
    56%

Schrijf je in voor onze woningmail, actueel aanbod!

Afbeeldingen

  Maasdijk 41 RAVENSTEIN
  Maasdijk 41 RAVENSTEIN
  Maasdijk 41 RAVENSTEIN
  Maasdijk 41 RAVENSTEIN
  Maasdijk 41 RAVENSTEIN
  Maasdijk 41 RAVENSTEIN
  Maasdijk 41 RAVENSTEIN
  Maasdijk 41 RAVENSTEIN
  Maasdijk 41 RAVENSTEIN
  Maasdijk 41 RAVENSTEIN
  Maasdijk 41 RAVENSTEIN
  Maasdijk 41 RAVENSTEIN
  Maasdijk 41 RAVENSTEIN
  Maasdijk 41 RAVENSTEIN
  Maasdijk 41 RAVENSTEIN
  Maasdijk 41 RAVENSTEIN
  Maasdijk 41 RAVENSTEIN
  Maasdijk 41 RAVENSTEIN
  Maasdijk 41 RAVENSTEIN
  Maasdijk 41 RAVENSTEIN
  Maasdijk 41 RAVENSTEIN
  Maasdijk 41 RAVENSTEIN
  Maasdijk 41 RAVENSTEIN
  Maasdijk 41 RAVENSTEIN
  Maasdijk 41 RAVENSTEIN
  Maasdijk 41 RAVENSTEIN
  Maasdijk 41 RAVENSTEIN
  Maasdijk 41 RAVENSTEIN
  Maasdijk 41 RAVENSTEIN
  Maasdijk 41 RAVENSTEIN
  Maasdijk 41 RAVENSTEIN
  Maasdijk 41 RAVENSTEIN
  Maasdijk 41 RAVENSTEIN
  Maasdijk 41 RAVENSTEIN
  Maasdijk 41 RAVENSTEIN

Plattegrond

  Plattegrond Maasdijk 41 RAVENSTEIN
  Plattegrond Maasdijk 41 RAVENSTEIN
  Plattegrond Maasdijk 41 RAVENSTEIN
  Plattegrond Maasdijk 41 RAVENSTEIN
  Plattegrond Maasdijk 41 RAVENSTEIN
  Plattegrond Maasdijk 41 RAVENSTEIN
  Plattegrond Maasdijk 41 RAVENSTEIN
  Plattegrond Maasdijk 41 RAVENSTEIN

Bezichtiging aanvragen Maasdijk 41

Wat is jouw huis waard?

Gratis rapport iQ Makelaars Leadtool