OUDEBILDTZIJL, Ds. Marinus Mooijstraat 41
 
  • Type2-onder-1-kap
  • Woonoppervlakte86 m²
  • Perceelgrootte300 m²
  • Slaapkamers3
  • Aangeboden sinds25-08-2021
  • Beschikbaarheid In overleg
Bezichtiging aanvragen

Omschrijving Ds. Marinus Mooijstraat 41

Landelijk wonen? Dat kan in het altijd mooie Oude Bildtzijl

Prachtige 2 onder 1 kap woning met 3 slaapkamers en ruime vrijstaande stenen garage aangeboden.
De woning beschikt over een L-vormige woonkamer met een open keuken voorzien van o.a. vaatwasser, combi-magnetron, 4-pits gaskookplaat en RVS afzuigkap. De badkamer bevindt zich op de eerste verdieping en beschikt over een wastafelmeubel en inloopdouche.
Deze mooie woning bevindt zich in een woonwijk aan het rand van het pittoreske dorp Oude Bildtzijl en staat op een perceel van 300 m2 met ruime tuin op het zuiden. Naast de woning is een eigen oprit aanwezig met parkeerruimte voor 2 auto’s.
De woning is goed geïsoleerd en is grotendeels voorzien van dubbel glas.

OUDE BILDTZIJL:
Oude Bildtzijl (Ouwe Syl) is een dorp in de gemeente Waadhoeke. Het ligt ten noordwesten van Stiens en ten noordoosten van Sint Annaparochie. Het dorp heeft ca. 1000 inwoners en ligt midden in het Bildtse landschap nabij het Waddengebied. Een markant punt in het centrum van het dorp is de in 2006 gerestaureerde Pyp, de voormalige oude sluis. In 2006 is de sluis weer in originele staat terug gebracht. Daarnaast beschikt het dorp over een basisschool en voetbalvereniging.

OMGEVING EN OPENBAAR VERVOER:
Oude Bildtzijl is goed met de auto en openbaar vervoer te bereiken. Het waddengebied omringt door de zeedijk is binnen enkele autominuten te bewonderen en de steden Franeker, Harlingen en Leeuwarden liggen op ca 20-25 autominuten afstand.

INDELING:
Begane grond: entree/hal, toilet met fonteintje, meterkast en trap naar eerste verdieping. L-vormige woonkamer met open keuken voorzien van o.a. vaatwasser, combi-magnetron, 4-pits gaskookplaat en RVS afzuigkap. Vanuit de keuken komt men in de bijkeuken welke geschikt is diverse witgoedaansluitingen.
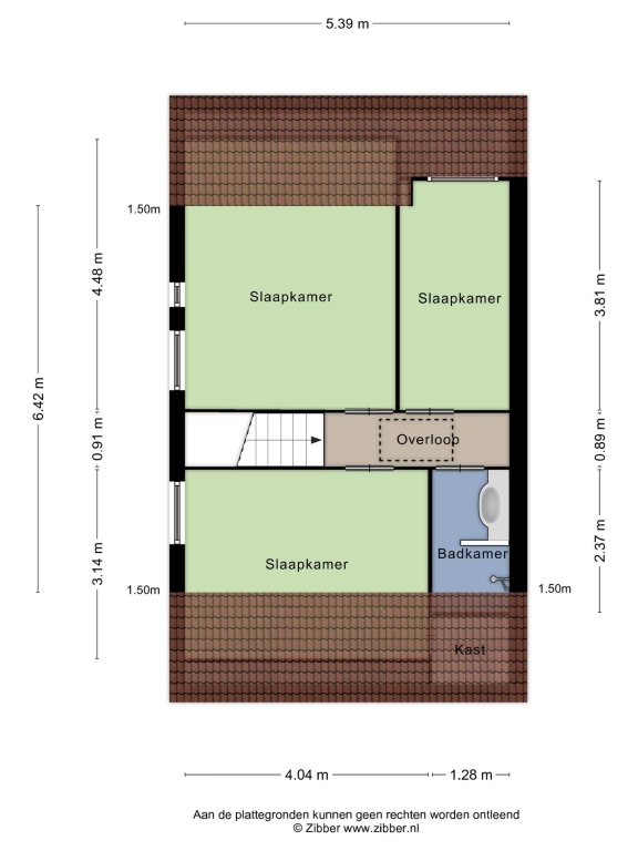
Eerste verdieping: Overloop, 3 slaapkamers, badkamer met inloopdouche, wastafelmeubel en designradiator.
Tweede verdieping: te bereiken d.m.v. vlizotrap. Zolderruimte met Cv-installatie (huur, bj 2016)

BIJZONDERHEDEN:
-Prachtige locatie, aan de rand van het dorp
-3 slaapkamers
-Goed geïsoleerd
-Ruime tuin (op het zuiden) met stenen garage en eigen oprit

Vraagprijs: € 200.000,- k.k.
aanvaarding in overleg

Bent u ook zo enthousiast geworden over deze woning ? Plan dan nu een bezichtiging in!

Meer
Neem contact op

iQ Makelaars Hoofdkantoor
Jan-Douwe Streekstra
Roessinghsbleekweg 21,
7522 AH Enschede

T  088 - 700 99 99
E  info@iQMakelaars.nl

Specificaties

Bouw

  • Soort Woningen
  • Type 2-onder-1-kap
  • Bouwjaar 1981

Algemeen

  • Beschikbaarheid In overleg

Indeling

  • Slaapkamers 3
  • Tuin Ja
  • Tuin ligging Zuid

Voorziening

  • Parkeerplaats Ja

Afmetingen

  • Woonoppervlakte 86 m²
  • Perceeloppervlakte 300 m²
  • Woninginhoud 343 m³

Energie

  • CV-ketel hr
  • CV-ketel brandstof Gas
  • CV-ketel bouwjaar 2016
  • CV-ketel warmwater Ja
  • Aanwezige isolatie Dakisolatie, muurisolatie, vloerisolatie, glasisolatie
Meer
  • Wijk en buurt
    Oudebildtzijl
  • Bevolking
    Gem. grootte huishouden
    2.2 personen
  • Detailhandel
    Grote supermarkt
    5km
  • Inkomen
    Gem. inkomen
    €22.500 p/j
  • Vervoer
    Station
    15.1km
  • Wonen
    Gem. woningwaarde
    €136.000
    Koopwoningen
    79%

Schrijf je in voor onze woningmail, actueel aanbod!

Afbeeldingen

  Ds. Marinus Mooijstraat 41 OUDEBILDTZIJL
  Ds. Marinus Mooijstraat 41 OUDEBILDTZIJL
  Ds. Marinus Mooijstraat 41 OUDEBILDTZIJL
  Ds. Marinus Mooijstraat 41 OUDEBILDTZIJL
  Ds. Marinus Mooijstraat 41 OUDEBILDTZIJL
  Ds. Marinus Mooijstraat 41 OUDEBILDTZIJL
  Ds. Marinus Mooijstraat 41 OUDEBILDTZIJL
  Ds. Marinus Mooijstraat 41 OUDEBILDTZIJL
  Ds. Marinus Mooijstraat 41 OUDEBILDTZIJL
  Ds. Marinus Mooijstraat 41 OUDEBILDTZIJL
  Ds. Marinus Mooijstraat 41 OUDEBILDTZIJL
  Ds. Marinus Mooijstraat 41 OUDEBILDTZIJL
  Ds. Marinus Mooijstraat 41 OUDEBILDTZIJL
  Ds. Marinus Mooijstraat 41 OUDEBILDTZIJL
  Ds. Marinus Mooijstraat 41 OUDEBILDTZIJL
  Ds. Marinus Mooijstraat 41 OUDEBILDTZIJL
  Ds. Marinus Mooijstraat 41 OUDEBILDTZIJL
  Ds. Marinus Mooijstraat 41 OUDEBILDTZIJL
  Ds. Marinus Mooijstraat 41 OUDEBILDTZIJL
  Ds. Marinus Mooijstraat 41 OUDEBILDTZIJL
  Ds. Marinus Mooijstraat 41 OUDEBILDTZIJL
  Ds. Marinus Mooijstraat 41 OUDEBILDTZIJL
  Ds. Marinus Mooijstraat 41 OUDEBILDTZIJL
  Ds. Marinus Mooijstraat 41 OUDEBILDTZIJL
  Ds. Marinus Mooijstraat 41 OUDEBILDTZIJL
  Ds. Marinus Mooijstraat 41 OUDEBILDTZIJL
  Ds. Marinus Mooijstraat 41 OUDEBILDTZIJL
  Ds. Marinus Mooijstraat 41 OUDEBILDTZIJL
  Ds. Marinus Mooijstraat 41 OUDEBILDTZIJL
  Ds. Marinus Mooijstraat 41 OUDEBILDTZIJL
  Ds. Marinus Mooijstraat 41 OUDEBILDTZIJL
  Ds. Marinus Mooijstraat 41 OUDEBILDTZIJL
  Ds. Marinus Mooijstraat 41 OUDEBILDTZIJL
  Ds. Marinus Mooijstraat 41 OUDEBILDTZIJL
  Ds. Marinus Mooijstraat 41 OUDEBILDTZIJL
  Ds. Marinus Mooijstraat 41 OUDEBILDTZIJL
  Ds. Marinus Mooijstraat 41 OUDEBILDTZIJL
  Ds. Marinus Mooijstraat 41 OUDEBILDTZIJL
  Ds. Marinus Mooijstraat 41 OUDEBILDTZIJL
  Ds. Marinus Mooijstraat 41 OUDEBILDTZIJL
  Ds. Marinus Mooijstraat 41 OUDEBILDTZIJL
  Ds. Marinus Mooijstraat 41 OUDEBILDTZIJL

Plattegrond

  Plattegrond Ds. Marinus Mooijstraat 41 OUDEBILDTZIJL
  Plattegrond Ds. Marinus Mooijstraat 41 OUDEBILDTZIJL
  Plattegrond Ds. Marinus Mooijstraat 41 OUDEBILDTZIJL
  Plattegrond Ds. Marinus Mooijstraat 41 OUDEBILDTZIJL
  Plattegrond Ds. Marinus Mooijstraat 41 OUDEBILDTZIJL
  Plattegrond Ds. Marinus Mooijstraat 41 OUDEBILDTZIJL
  Plattegrond Ds. Marinus Mooijstraat 41 OUDEBILDTZIJL
  Plattegrond Ds. Marinus Mooijstraat 41 OUDEBILDTZIJL
  Plattegrond Ds. Marinus Mooijstraat 41 OUDEBILDTZIJL
  Plattegrond Ds. Marinus Mooijstraat 41 OUDEBILDTZIJL

Bezichtiging aanvragen Ds. Marinus Mooijstraat 41

Wat is jouw huis waard?

Gratis rapport iQ Makelaars Leadtool