HENGELO, Rudolfstraat 37
 
  Verkocht
  • TypeVrijstaand
  • Woonoppervlakte97 m²
  • Perceelgrootte206 m²
  • Slaapkamers3
  • GarageJa
  • Aangeboden sinds18-11-2021
  • Beschikbaarheid In overleg
Bezichtiging aanvragen

Omschrijving Rudolfstraat 37

Volledig gemoderniseerde (2021) instapklare vrijstaande woning!

Gelegen in de centraal gelegen wijk "Berflo Es" staat deze vrijstaande woning met eigen oprit voor 2 auto's en garage. De woning ligt aan een rustige weg, is gesitueerd op fietsafstand van het centrum van Hengelo en ligt op loopafstand van diverse voorzieningen, zoals scholen, buurt- en speeltuinvereniging, een compleet winkelcentrum, huisartsenpost en verschillende sportlocaties.

Indeling:
Begane grond: via de entree komt u de woning binnen met een lichte hal met nieuw toilet en meterkast. Vervolgens komt u de L-vormige woonkamer met trapkast en grote raampartijen aan de voor en achterzijde van de
woonkamer. Via de woonkamer heeft u toegang tot de achtertuin. Aan de achterzijde zit een nieuwe keuken in lichte kleursamenstelling die is uitgerust met diverse inbouwapparatuur. Vanuit de keuken bereikt u de achter hal die toegang heeft tot de tuin en de ruime garage.

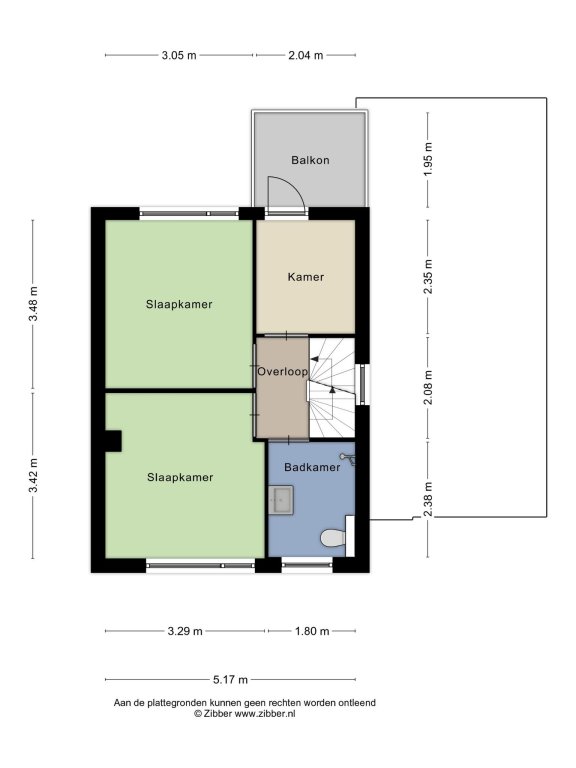
Eerste verdieping: De trap komt uit op de overloop met drie instapklare slaapkamers en een nieuwe badkamer. De badkamer beschikt over een fraai wastafelmeubel, toilet en douche.

Tweede verdieping, te bereiken via een vaste trap: Op de tweede verdieping bevindt zich een ruime zolder met de mogelijkheid voor een extra (slaap)kamer.

Tuin: De achtertuin is gesitueerd op het Noorden, is gemakkelijk in onderhoud en via achterom te bereiken. De oprit met parkeerplaats grenst aan de ruime aangebouwde garage die is voorzien van water en elektra.

Bijzonderheden:

- Bouwjaar 1987
- Woonoppervlakte 97 m2
- Kaveloppervlakte bedraagt 206 m2
- Verwarming en warm water d.m.v. Intergas HR C.V.-ketel (2019, eigendom)
- eigen oprit met ruimte voor een 2 auto's

Meer
Neem contact op

iQ Makelaars Kantoor Almelo
Martin Grave
Twentepoort Oost 34
7609 RG Almelo

T  0546 - 305 301
E  Almelo@iQMakelaars.nl

Specificaties

Bouw

  • Soort Woningen
  • Type Vrijstaand
  • Bouwjaar 1987

Algemeen

  • Beschikbaarheid In overleg

Indeling

  • Slaapkamers 3
  • Garage Ja
  • Tuin Ja
  • Tuin ligging Noord

Voorziening

  • Parkeerplaats Ja

Afmetingen

  • Woonoppervlakte 97 m²
  • Perceeloppervlakte 206 m²
  • Woninginhoud 424 m³

Energie

  • CV-ketel Combi
  • CV-ketel eigendom Ja
  • CV-ketel brandstof Gas
  • CV-ketel bouwjaar 2019
  • CV-ketel warmwater Ja
  • Aanwezige isolatie Dakisolatie, glasisolatie
Meer
  • Wijk en buurt
    Berflo Es Noord
  • Bevolking
    Gem. grootte huishouden
    1.8 personen
  • Detailhandel
    Grote supermarkt
    0.5km
  • Inkomen
    Gem. inkomen
    €23.900 p/j
  • Vervoer
    Station
    1km
  • Wonen
    Gem. woningwaarde
    €144.000
    Koopwoningen
    43%

Schrijf je in voor onze woningmail, actueel aanbod!

Afbeeldingen

  Rudolfstraat 37 HENGELO
  Rudolfstraat 37 HENGELO
  Rudolfstraat 37 HENGELO
  Rudolfstraat 37 HENGELO
  Rudolfstraat 37 HENGELO
  Rudolfstraat 37 HENGELO
  Rudolfstraat 37 HENGELO
  Rudolfstraat 37 HENGELO
  Rudolfstraat 37 HENGELO
  Rudolfstraat 37 HENGELO
  Rudolfstraat 37 HENGELO
  Rudolfstraat 37 HENGELO
  Rudolfstraat 37 HENGELO
  Rudolfstraat 37 HENGELO
  Rudolfstraat 37 HENGELO
  Rudolfstraat 37 HENGELO
  Rudolfstraat 37 HENGELO
  Rudolfstraat 37 HENGELO
  Rudolfstraat 37 HENGELO
  Rudolfstraat 37 HENGELO
  Rudolfstraat 37 HENGELO
  Rudolfstraat 37 HENGELO
  Rudolfstraat 37 HENGELO
  Rudolfstraat 37 HENGELO
  Rudolfstraat 37 HENGELO
  Rudolfstraat 37 HENGELO
  Rudolfstraat 37 HENGELO
  Rudolfstraat 37 HENGELO
  Rudolfstraat 37 HENGELO
  Rudolfstraat 37 HENGELO
  Rudolfstraat 37 HENGELO

Plattegrond

  Plattegrond Rudolfstraat 37 HENGELO
  Plattegrond Rudolfstraat 37 HENGELO
  Plattegrond Rudolfstraat 37 HENGELO
  Plattegrond Rudolfstraat 37 HENGELO
  Plattegrond Rudolfstraat 37 HENGELO
  Plattegrond Rudolfstraat 37 HENGELO

Bezichtiging aanvragen Rudolfstraat 37

Wat is jouw huis waard?

Gratis rapport iQ Makelaars Leadtool