HAREN GN, Hildebrandlaan 15
 
  Verkocht
  • TypeFlat (galerij/portiek)
  • Woonoppervlakte42 m²
  • Slaapkamers1
  • Aangeboden sinds04-10-2025
  • Beschikbaarheid
Bezichtiging aanvragen

Omschrijving Hildebrandlaan 15

Compact & comfortabel wonen in Haren!

Ben jij starter of op zoek naar een fijn appartement op een rustige locatie? Dan is dit appartement aan de Hildebrandlaan 15 precies wat je zoekt.

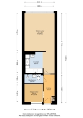
Met een woonoppervlak van 42 m² is dit een compacte maar complete woning. Je beschikt over een lichte woonkamer met open keuken, een aparte slaapkamer en een badkamer met douche, toilet en wastafel. Daarnaast is er een berging in het pand aanwezig, ideaal voor extra opslag of je fiets. Dankzij energielabel C woon je hier comfortabel en relatief energiezuinig.

De ligging is uitstekend: rustig wonen in Haren, met voorzieningen zoals winkels, horeca en openbaar vervoer op korte afstand. Bovendien ben je zo in Groningen of midden in het groen voor een fijne wandeling of fietstocht. Zomers zwemmen in het Paterswoldsemeer? Je bent er zo.

Indeling:
Begane grond: ingang met trap naar eerste verdieping
Eerste verdieping: Entree, hal, woonkamer met open keuken, slaapkamer, badkamer met douche, toilet en wastafel. Berging in het pand.

Nieuw bij iQ Makelaars; plan je eigen bezichtiging in! Vraag via Funda een bezichtiging aan en ontvang direct een link met toegang tot onze agenda.

Bijzonderheden:
- Woonoppervlak ca. 42 m²
- Eén slaapkamer
- Bouwjaar 1969
- Energielabel C
- Berging in het pand
- Rustige ligging met voorzieningen dichtbij

Vraagprijs: € 165.000,- k.k.
Aanvaarding: in overleg, kan snel

Klaar voor deze unieke kans? Maak snel een afspraak en ervaar het zelf! We geven je graag een persoonlijke rondleiding. Vraag via Funda een bezichtiging aan en plan direct je eigen afspraak in onze agenda. Je ontvangt een e-mail waarmee je de afspraak eenvoudig kunt inplannen. Bellen kan uiteraard ook naar 050-7601777.

Meer
Neem contact op

iQ Makelaars Groningen
Luuk
Kraneweg 23
9718 JD Groningen

T  050 - 760 17 77
E  Groningen@iQMakelaars.nl

Specificaties

Bouw

  • Soort Woningen
  • Type Flat (galerij/portiek)
  • Bouwjaar 1969

Energie

  • Energielabel C

Indeling

  • Slaapkamers 1

Afmetingen

  • Woonoppervlakte 42 m²
  • Woninginhoud 144 m³
Meer

Schrijf je in voor onze woningmail, actueel aanbod!

Afbeeldingen

  Hildebrandlaan 15 HAREN GN
  Hildebrandlaan 15 HAREN GN
  Hildebrandlaan 15 HAREN GN
  Hildebrandlaan 15 HAREN GN
  Hildebrandlaan 15 HAREN GN
  Hildebrandlaan 15 HAREN GN
  Hildebrandlaan 15 HAREN GN
  Hildebrandlaan 15 HAREN GN
  Hildebrandlaan 15 HAREN GN
  Hildebrandlaan 15 HAREN GN
  Hildebrandlaan 15 HAREN GN
  Hildebrandlaan 15 HAREN GN
  Hildebrandlaan 15 HAREN GN
  Hildebrandlaan 15 HAREN GN
  Hildebrandlaan 15 HAREN GN
  Hildebrandlaan 15 HAREN GN
  Hildebrandlaan 15 HAREN GN
  Hildebrandlaan 15 HAREN GN
  Hildebrandlaan 15 HAREN GN
  Hildebrandlaan 15 HAREN GN
  Hildebrandlaan 15 HAREN GN
  Hildebrandlaan 15 HAREN GN
  Hildebrandlaan 15 HAREN GN
  Hildebrandlaan 15 HAREN GN
  Hildebrandlaan 15 HAREN GN
  Hildebrandlaan 15 HAREN GN
  Hildebrandlaan 15 HAREN GN
  Hildebrandlaan 15 HAREN GN
  Hildebrandlaan 15 HAREN GN
  Hildebrandlaan 15 HAREN GN
  Hildebrandlaan 15 HAREN GN

Bezichtiging aanvragen Hildebrandlaan 15

Wat is jouw huis waard?

Gratis rapport iQ Makelaars Leadtool