HALLUM, Gedempte Haven 43
 
  Verkocht
  • TypeVrijstaand
  • Woonoppervlakte95 m²
  • Perceelgrootte183 m²
  • Slaapkamers3
  • Aangeboden sinds18-10-2022
  • Beschikbaarheid In overleg
Bezichtiging aanvragen

Omschrijving Gedempte Haven 43

I.V.M. DE VELE AANVRAGEN VOOR DEZE WONING IS HET HELAAS NIET MEER MOGELIJK NIEUWE AANVRAGEN
VOOR BEZICHTIGINGEN IN BEHANDELING TE NEMEN. DANK VOOR UW BEGRIP

Gezellige vrijstaande eengezinswoning (94 m2) met 3 slaapkamers nabij de Waddenzee aangeboden!

Midden in het centrum van het dorp Hallum op rustige locatie staat deze gezellige kleurrijke vrijstaande woning in de verkoop. De woning beschikt over 3 slaapkamers waarvan 1 ruime slaapkamer zich bevindt op de begane grond. Tevens is de badkamer ook op de begane grond aanwezig waardoor de woning zeer geschikt is als levensloopbestendig wonen. De woning staat op een perceel van in totaal 183m2 en ligt beschut aan de achterzijde van Gedempte Haven 39. De woonkeuken (voorzien van diverse apparatuur) beschikt over openslaande tuindeuren waarbij men toegang krijgt tot een privé gelegen terras/tuin.

Hallum: Landelijk gelegen dorp op enkele minuten afstand vanaf de Waddenzee. Zeer actief dorp met o.a. supermarkt, slagerij, diverse (sport)verenigingen. Daarnaast zijn er 2 basisscholen aanwezig, kinderopvang en een openlucht zwembad in het dorp. Voor de watersportliefhebbers is er een kleine jachthaven met boot- trailerhelling. In 2021 telde het dorp 2.680 inwoners. Via de gezellige dorpen Wierum, Moddergat of Anjum komt men uit in het Nationaal Park Lauwersmeer. Vanuit de plaatsen Holwerd of Lauwersoog zijn de Waddeneilanden te bezoeken. De steden Dokkum of Leeuwarden zijn rond 20 autominuten goed te bereiken. Openbaar vervoer stop in het dorp. Gratis parkeren aan de openbare weg.

INDELING:
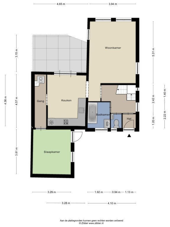
Begane grond: Entree/hal met meterkast, apart toilet, badkamer voorzien van ligbad/douche en wastafelmeubel, opgang naar eerste verdieping. Woonkamer (ca 21m2) met doorgang naar woonkeuken (ca 15 m2) voorzien van o.a. vaatwasser, inbouw koel- vriescombinatie, combi-oven, 4-pits gaskookplaat en openslaande terrasdeuren. Doorgang met witgoedaansluiting en Cv-installatie (2014) naar slaapkamer op de begane grond. Deze kamer is tevens voorzien van een eigen buitendeur waardoor het eenvoudig is deze kamer te gebruiken als kantoor/thuiswerkplek.

Eerste verdieping: Overloop met opbergkasten, 2 ruime slaapkamers

Tweede verdieping: Kleine vliering/bergzolder, geen stahoogte

BIJZONDERHEDEN:
- Vrijstaande woning, privé gelegen
- 3 slaapkamers (waarvan 1 slaapkamer op de begane grond)
- Badkamer op begane grond, levensloopbestendig
- Hoekkeuken voorzien van diverse apparatuur
- Actief dorp met vele faciliteiten

Vraagprijs € 149.000,- k.k.
Aanvaarding in overleg.

Bent u ook zo enthousiast geworden? Wacht dan niet te lang en plan nu een bezichtiging in!

Meer
Neem contact op

iQ Makelaars Hoofdkantoor
Jan-Douwe Streekstra
Roessinghsbleekweg 21,
7522 AH Enschede

T  088 - 700 99 99
E  info@iQMakelaars.nl

Specificaties

Bouw

  • Soort Woningen
  • Type Vrijstaand
  • Bouwjaar 1920

Algemeen

  • Beschikbaarheid In overleg

Energie

  • Energielabel G
  • CV-ketel Combi
  • CV-ketel eigendom Ja
  • CV-ketel brandstof Gas
  • CV-ketel bouwjaar 2014
  • CV-ketel warmwater Ja
  • Aanwezige isolatie Glasisolatie

Indeling

  • Slaapkamers 3
  • Tuin Ja
  • Tuin ligging Zuidoost

Afmetingen

  • Woonoppervlakte 95 m²
  • Perceeloppervlakte 183 m²
  • Woninginhoud 341 m³
  • Tuin oppervlakte 25 m²
Meer
  • Wijk en buurt
    Hallum
  • Bevolking
    Gem. grootte huishouden
    2.3 personen
  • Detailhandel
    Grote supermarkt
    0.6km
  • Inkomen
    Gem. inkomen
    €0.000 p/j
  • Vervoer
    Station
    14.6km
  • Wonen
    Gem. woningwaarde
    €159.000
    Koopwoningen
    70%

Schrijf je in voor onze woningmail, actueel aanbod!

Afbeeldingen

  Gedempte Haven 43 HALLUM
  Gedempte Haven 43 HALLUM
  Gedempte Haven 43 HALLUM
  Gedempte Haven 43 HALLUM
  Gedempte Haven 43 HALLUM
  Gedempte Haven 43 HALLUM
  Gedempte Haven 43 HALLUM
  Gedempte Haven 43 HALLUM
  Gedempte Haven 43 HALLUM
  Gedempte Haven 43 HALLUM
  Gedempte Haven 43 HALLUM
  Gedempte Haven 43 HALLUM
  Gedempte Haven 43 HALLUM
  Gedempte Haven 43 HALLUM
  Gedempte Haven 43 HALLUM
  Gedempte Haven 43 HALLUM
  Gedempte Haven 43 HALLUM
  Gedempte Haven 43 HALLUM
  Gedempte Haven 43 HALLUM
  Gedempte Haven 43 HALLUM
  Gedempte Haven 43 HALLUM
  Gedempte Haven 43 HALLUM
  Gedempte Haven 43 HALLUM
  Gedempte Haven 43 HALLUM

Plattegrond

  Plattegrond Gedempte Haven 43 HALLUM
  Plattegrond Gedempte Haven 43 HALLUM
  Plattegrond Gedempte Haven 43 HALLUM
  Plattegrond Gedempte Haven 43 HALLUM
  Plattegrond Gedempte Haven 43 HALLUM
  Plattegrond Gedempte Haven 43 HALLUM

Bezichtiging aanvragen Gedempte Haven 43

Wat is jouw huis waard?

Gratis rapport iQ Makelaars Leadtool