HAARLEM, Rechthuisstraat 44
 
  Verkocht OVB
  • TypeTussenwoning
  • Woonoppervlakte108 m²
  • Perceelgrootte114 m²
  • Slaapkamers5
  • Aangeboden sinds18-02-2026
  • Beschikbaarheid In overleg
Bezichtiging aanvragen

Omschrijving Rechthuisstraat 44

Karakteristieke jaren ’30-woning met originele details en volop potentie in Haarlem-Noord.

Aan de Rechthuisstraat 44 staat deze tussenwoning uit 1931 met circa 106 m2 woonoppervlakte op 114 m2 eigen grond. De woning beschikt over zowel een voor- als achtertuin.

Originele elementen, waaronder glas-in-loodramen en de kenmerkende jaren ’30- architectuur, geven het huis karakter. Een woning met mogelijkheden voor wie waarde hecht aan authenticiteit en de vrijheid om er een eigentijdse invulling aan te geven.

Indeling

Begane grond
Via de voortuin bereik je de entree met hal, meterkast en toilet. De doorzonwoonkamer strekt zich uit over de volledige diepte van de woning en valt op door de grote raampartijen die voor een prachtige lichtinval zorgen. De separate keuken biedt toegang tot de achtertuin. De woonkamer is breed en praktisch in te delen.

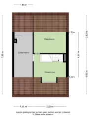
Eerste verdieping
De overloop geeft toegang tot drie slaapkamers en de badkamer. Aan de tuinzijde grenst één van de slaapkamers aan een fijn balkon

Zolderverdieping
De royale zolderverdieping is bereikbaar via een vaste trap. Hier kan eenvoudig een extra slaapkamer, werkruimte en/of hobbykamer worden gecreëerd. Dankzij de hoogte en het ruime vloeroppervlak biedt deze verdieping verrassend veel mogelijkheden.

Buitenruimte
De woning beschikt over een voortuin en een diepe achtertuin met ruimte voor meerdere zitplekken, groen, speelruimte of een loungehoek. Een heerlijke plek om in alle rust te genieten. De achtertuin ligt op het oosten, waardoor je profiteert van fijne ochtend- en vroege middagzon. Ideaal voor een zonnig ontbijt of een rustige start van de dag. Achterin de tuin staat een vrijstaande berging van circa 9 m2.

Aan de tuinzijde van de eerste verdieping bevindt zich bovendien een balkon, dat een
extra buitenplek biedt met uitzicht op de tuin.

Kenmerken
- Bouwjaar 1931
- Woonoppervlakte ca. 106 m2
- Perceeloppervlakte 114 m2
- Volle eigendom
- Voor- en achtertuin
- Achtertuin op het oosten
- Vrijstaande berging ca. 9 m2
- Originele jaren ’30 details, waaronder glas-in-lood
- Woning dient gemoderniseerd te worden

Ligging & omgeving
De woning ligt in een rustige en gewilde woonstraat in de Planetenwijk / Schotervlieland.
Alle voorzieningen bevinden zich binnen handbereik: scholen (basis, middelbaar en
opvang), sportfaciliteiten, zwembad, supermarkt, winkels, bibliotheek en gezellige
horeca liggen op korte afstand.
Natuurliefhebbers kunnen hun hart ophalen in het nabijgelegen Schoterbos, diverse
parken en de Hekslootpolder. Met de fiets ben je bovendien zo in de duinen of op de
stranden van Bloemendaal en Zandvoort.
Dankzij de busverbindingen om de hoek en de Haarlemse binnenstad op circa 10
minuten fietsen is de bereikbaarheid uitstekend.

Clausules
Verkoop geschiedt met:
- een as is, where is-clausule
- een niet-zelfbewoningsclausule

Kortom: een sfeervolle jaren ’30-woning in Haarlem Noord met veel potentie, originele details en een heerlijke ligging. Een kans die je niet vaak tegenkomt.

Meer
Neem contact op

iQ Makelaars Hoofdkantoor
Danny Mulder
Roessinghsbleekweg 21,
7522 AH Enschede

T  088 - 700 99 99
E  info@iQMakelaars.nl

Specificaties

Bouw

  • Soort Woningen
  • Type Tussenwoning
  • Bouwjaar 1931

Algemeen

  • Beschikbaarheid In overleg

Energie

  • Energielabel G

Indeling

  • Slaapkamers 5
  • Balkon Ja

Afmetingen

  • Woonoppervlakte 108 m²
  • Perceeloppervlakte 114 m²
  • Woninginhoud 383 m³
  • Balkon oppervlakte 1 m²
Meer

Schrijf je in voor onze woningmail, actueel aanbod!

Afbeeldingen

  Rechthuisstraat 44 HAARLEM
  Rechthuisstraat 44 HAARLEM
  Rechthuisstraat 44 HAARLEM
  Rechthuisstraat 44 HAARLEM
  Rechthuisstraat 44 HAARLEM
  Rechthuisstraat 44 HAARLEM
  Rechthuisstraat 44 HAARLEM
  Rechthuisstraat 44 HAARLEM
  Rechthuisstraat 44 HAARLEM
  Rechthuisstraat 44 HAARLEM
  Rechthuisstraat 44 HAARLEM
  Rechthuisstraat 44 HAARLEM
  Rechthuisstraat 44 HAARLEM
  Rechthuisstraat 44 HAARLEM
  Rechthuisstraat 44 HAARLEM
  Rechthuisstraat 44 HAARLEM
  Rechthuisstraat 44 HAARLEM
  Rechthuisstraat 44 HAARLEM
  Rechthuisstraat 44 HAARLEM
  Rechthuisstraat 44 HAARLEM
  Rechthuisstraat 44 HAARLEM
  Rechthuisstraat 44 HAARLEM
  Rechthuisstraat 44 HAARLEM
  Rechthuisstraat 44 HAARLEM
  Rechthuisstraat 44 HAARLEM
  Rechthuisstraat 44 HAARLEM
  Rechthuisstraat 44 HAARLEM
  Rechthuisstraat 44 HAARLEM
  Rechthuisstraat 44 HAARLEM
  Rechthuisstraat 44 HAARLEM
  Rechthuisstraat 44 HAARLEM
  Rechthuisstraat 44 HAARLEM
  Rechthuisstraat 44 HAARLEM
  Rechthuisstraat 44 HAARLEM
  Rechthuisstraat 44 HAARLEM
  Rechthuisstraat 44 HAARLEM
  Rechthuisstraat 44 HAARLEM
  Rechthuisstraat 44 HAARLEM
  Rechthuisstraat 44 HAARLEM

Plattegrond

  Plattegrond Rechthuisstraat 44 HAARLEM
  Plattegrond Rechthuisstraat 44 HAARLEM
  Plattegrond Rechthuisstraat 44 HAARLEM
  Plattegrond Rechthuisstraat 44 HAARLEM
  Plattegrond Rechthuisstraat 44 HAARLEM
  Plattegrond Rechthuisstraat 44 HAARLEM
  Plattegrond Rechthuisstraat 44 HAARLEM
  Plattegrond Rechthuisstraat 44 HAARLEM
  Plattegrond Rechthuisstraat 44 HAARLEM
  Plattegrond Rechthuisstraat 44 HAARLEM

Bezichtiging aanvragen Rechthuisstraat 44

Wat is jouw huis waard?

Gratis rapport iQ Makelaars Leadtool