HAARLEM, Erasmuslaan 3 F
 
  • TypeTussenwoning
  • Woonoppervlakte147 m²
  • Perceelgrootte111 m²
  • Slaapkamers3
  • Aangeboden sinds17-04-2026
  • Beschikbaarheid In overleg
Bezichtiging aanvragen

Omschrijving Erasmuslaan 3 F

Moderne en royale gezinswoning met 4 slaapkamers in een kindvriendelijke buurt.

Aan de Erasmuslaan in Haarlem staat deze ruime en goed onderhouden eengezinswoning uit 2009. Met een woonoppervlakte van bijna 150 m2, vier grote slaapkamers (met mogelijkheid tot meer), een zeer ruime tuin en energielabel A biedt deze woning alles wat een gezin zoekt. Het gehele huis, inclusief de plafonds, is strak gestuct, wat zorgt voor een moderne en verzorgde uitstraling. De ligging is ideaal: rustig, groen en kindvriendelijk, maar toch op loopafstand van winkels, scholen, openbaar vervoer en recreatiegebied de Molenplas.

INDELING

Begane grond

Je komt binnen in de ruime hal met toegang tot het separate toilet en de moderne keuken aan de voorzijde. De keuken is in 2020 vernieuwd met nieuwe keukenkastjes en een nieuw granieten keukenblad, en is voorzien van alle benodigde inbouwapparatuur. De tuingerichte woonkamer is licht en ruim dankzij de grote raampartijen en de openslaande deuren naar de achtertuin. De gehele begane grond is voorzien van een natuurstenen vloer, wat zorgt voor een stijlvolle en duurzame uitstraling.

In de achtertuin, eveneens afgewerkt met natuursteen, geniet je van een fijne buitenruimte met veel privacy. De tuin is voorzien van een duurzame aluminium roestvrijstalen schutting, wat zorgt voor een moderne uitstraling en weinig onderhoud. Achterin de tuin staat een praktische berging met elektra, ideaal voor fietsen en tuinspullen.

Eerste verdieping

Op de eerste verdieping bevinden zich drie goed bemeten slaapkamers. De badkamer is in 2021 volledig vernieuwd en uitgevoerd met een modern wastafelmeubel, ligbad, douche en toilet.

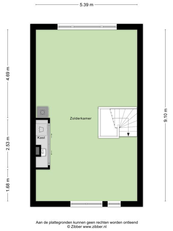
Tweede verdieping

De tweede verdieping is een volwaardige woonlaag met veel mogelijkheden. Momenteel ingericht als royale was-, werk- en hobbyruimte, voorzien van een handige inbouwkast. Dankzij de ruime opzet kun je hier eenvoudig een extra (vijfde) slaapkamer realiseren.

OMGEVING EN BEREIKBAARHEID

Erasmuslaan 3-F ligt in de geliefde wijk Meerwijk: een rustige, groene en kindvriendelijke omgeving met alle voorzieningen binnen handbereik. Op loopafstand vind je het Leonardo da Vinci-plein met supermarkt en winkels, bushaltes met directe verbinding naar Haarlem centrum, Hoofddorp, Schiphol en Amsterdam, én het vernieuwde
winkelcentrum Schalkwijk. Recreatiegebied de Molenplas en de Meerwijkplas liggen om de hoek, perfect voor wandelen, sporten of ontspannen aan het water. Met de fiets sta je binnen vijftien minuten in het bruisende centrum van Haarlem of op het strand van Zandvoort of Bloemendaal. Uitvalswegen richting Amsterdam, Utrecht, Alkmaar en Den Haag zijn snel bereikbaar.

HIGHLIGHTS

- Moderne en zeer ruime tussenwoning
- Woonoppervlakte: 147 m2
- Externe bergruimte: 5,6 m2
- Volledig gestucte wanden en plafonds
- Bouwjaar: 2009
- Energielabel A
- Vier slaapkamers, met mogelijkheid tot extra kamer(s)
- Ruime tuin met berging
- Voldoende gratis parkeergelegenheid direct voor en achter de woning
- Rustige ligging nabij recreatiegebied en winkelcentrum
- Nabij openbaar vervoer en gunstig gelegen t.o.v. uitvalswegen

SAMENVATTING

Een moderne en royale gezinswoning op een uitstekende locatie in Haarlem. Met bijna 150 m2 woonoppervlakte, vier slaapkamers, een ruime tuin en alle voorzieningen binnen handbereik is dit een ideale plek om jarenlang met plezier te wonen.

Meer
Neem contact op

iQ Makelaars Hoofdkantoor
Margreet Jakobs
Roessinghsbleekweg 21,
7522 AH Enschede

T  088 - 700 99 99
E  info@iQMakelaars.nl

Specificaties

Bouw

  • Soort Woningen
  • Type Tussenwoning
  • Bouwjaar 2009

Algemeen

  • Beschikbaarheid In overleg

Energie

  • Energielabel A
  • CV-ketel Combi
  • CV-ketel eigendom Ja
  • CV-ketel bouwjaar 2009
  • CV-ketel warmwater Ja

Indeling

  • Slaapkamers 3
  • Tuin Ja

Afmetingen

  • Woonoppervlakte 147 m²
  • Perceeloppervlakte 111 m²
  • Woninginhoud 521 m³
  • Tuin oppervlakte 55 m²
Meer

Schrijf je in voor onze woningmail, actueel aanbod!

Afbeeldingen

  Erasmuslaan 3 F HAARLEM
  Erasmuslaan 3 F HAARLEM
  Erasmuslaan 3 F HAARLEM
  Erasmuslaan 3 F HAARLEM
  Erasmuslaan 3 F HAARLEM
  Erasmuslaan 3 F HAARLEM
  Erasmuslaan 3 F HAARLEM
  Erasmuslaan 3 F HAARLEM
  Erasmuslaan 3 F HAARLEM
  Erasmuslaan 3 F HAARLEM
  Erasmuslaan 3 F HAARLEM
  Erasmuslaan 3 F HAARLEM
  Erasmuslaan 3 F HAARLEM
  Erasmuslaan 3 F HAARLEM
  Erasmuslaan 3 F HAARLEM
  Erasmuslaan 3 F HAARLEM
  Erasmuslaan 3 F HAARLEM
  Erasmuslaan 3 F HAARLEM
  Erasmuslaan 3 F HAARLEM
  Erasmuslaan 3 F HAARLEM
  Erasmuslaan 3 F HAARLEM
  Erasmuslaan 3 F HAARLEM
  Erasmuslaan 3 F HAARLEM
  Erasmuslaan 3 F HAARLEM
  Erasmuslaan 3 F HAARLEM
  Erasmuslaan 3 F HAARLEM
  Erasmuslaan 3 F HAARLEM
  Erasmuslaan 3 F HAARLEM
  Erasmuslaan 3 F HAARLEM
  Erasmuslaan 3 F HAARLEM
  Erasmuslaan 3 F HAARLEM
  Erasmuslaan 3 F HAARLEM
  Erasmuslaan 3 F HAARLEM
  Erasmuslaan 3 F HAARLEM
  Erasmuslaan 3 F HAARLEM
  Erasmuslaan 3 F HAARLEM
  Erasmuslaan 3 F HAARLEM
  Erasmuslaan 3 F HAARLEM
  Erasmuslaan 3 F HAARLEM

Plattegrond

  Plattegrond Erasmuslaan 3 F HAARLEM
  Plattegrond Erasmuslaan 3 F HAARLEM
  Plattegrond Erasmuslaan 3 F HAARLEM
  Plattegrond Erasmuslaan 3 F HAARLEM
  Plattegrond Erasmuslaan 3 F HAARLEM
  Plattegrond Erasmuslaan 3 F HAARLEM
  Plattegrond Erasmuslaan 3 F HAARLEM
  Plattegrond Erasmuslaan 3 F HAARLEM

Bezichtiging aanvragen Erasmuslaan 3 F

Wat is jouw huis waard?

Gratis rapport iQ Makelaars Leadtool