Gramsbergen, Boslaan 1 R19
 
  • TypeVrijstaand
  • Woonoppervlakte58 m²
  • Perceelgrootte425 m²
  • Slaapkamers3
  • Aangeboden sinds08-04-2026
  • Beschikbaarheid In overleg
Bezichtiging aanvragen

Omschrijving Boslaan 1 R19

Duurzaam recreëren op een toplocatie!

Bent u op zoek naar een heerlijke plek voor eigen vakanties of een slimme investering met uitstekende verhuurmogelijkheden? Op het veelzijdige vakantiepark ’t Hooge Holt bieden wij deze sfeervolle, 6-persoons recreatiewoning aan. Gelegen op een ruim perceel van maar liefst 425 m² eigen grond en direct grenzend aan de kinderspeeltuin, is dit de ideale uitvalsbasis voor jong en oud!

Duurzaam en instapklaar
Deze woning is klaar voor de toekomst. De woning is volledig gasloos en uitgerust met 15 recent geplaatste zonnepanelen (ruim 6000 Wattpiek), wat zorgt voor een aanzienlijke reductie in energielasten. De woning wordt bovendien geleverd inclusief de complete inventaris, zodat u direct kunt beginnen met genieten of verhuren.

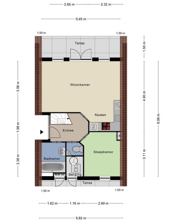
Indeling
Begane grond:
Bij binnenkomst via de voordeur bereikt u de hal. Aan de rechterzijde bevindt zich het separate toilet en de nette badkamer, voorzien van een ligbad met douchecombinatie, een wastafel en een praktische kinderwastafel. Daarnaast vindt u hier de eerste slaapkamer met twee eenpersoons boxspringbedden.

Aan de linkerzijde treedt u de sfeervolle, lichte woonkamer binnen. Het interieur is fris en modern, en de openslaande terrasdeuren verbinden binnen naadloos met de diepe tuin. De open keuken is van alle gemakken voorzien, waaronder een vaatwasser, koelkast met vriesvak, kookplaat en een ingebouwde combi-oven/magnetron.

Verdieping:
De overloop met vaste kast geeft toegang tot twee ruime slaapkamers. Eén van deze kamers beschikt over een eigen balkon, waar u heerlijk kunt genieten van de eerste zonnestralen.

Buitenom:
Aan de achterzijde van de woning bevindt zich de berging/technische ruimte. Hier vindt u de opstelling van de boiler, de meterkast en de aansluitingen voor de wasmachine en droger (beiden inbegrepen in de inventaris).

Over Vakantiepark ’t Hooge Holt & Omgeving
Vakantie vieren in eigen land verveelt hier nooit. Het park biedt een ongekend aanbod aan faciliteiten:

Binnen- en buitenzwembad

Indoor speelwereld en kinderanimatie

Bowlingbanen en midgetgolf (binnen en buiten)

Kinderboerderij, speeltuinen en horecagelegenheden

Gramsbergen zelf ligt in een prachtige, bosrijke omgeving met eindeloze wandel- en fietsroutes. In de directe nabijheid vindt u de sfeervolle jachthaven, de Mommeriete Brouwerij, Attractiepark Slagharen en historische stadjes zoals Coevorden. Binnen 10 minuten staat u bovendien over de Duitse grens.

Bijzonderheden op een rij:
Perceel: 425 m² eigen grond.

Duurzaam: Gasloos en voorzien van 15 zonnepanelen.

Locatie: Gelegen direct aan de kinderspeeltuin.

Flexibiliteit: Verhuur is mogelijk (via het park, externe platformen of eigen beheer), maar zeker niet verplicht.

Comfort: Verwarming via elektrische kachels; de open haard dient als sfeervolle bijverwarming.

Compleet: Inclusief volledige inventaris.

Energielabel: D.

Is uw interesse gewekt voor deze veelzijdige recreatiewoning? Neem dan contact op met ons kantoor voor een bezichtiging!

Meer
Neem contact op

iQ Makelaars Vechtdal
Brugstraat 21
7731 CT Ommen

T  0529 - 760 999
E  Vechtdal@iQMakelaars.nl

Specificaties

Bouw

  • Soort Woningen
  • Type Vrijstaand
  • Bouwjaar 1995

Algemeen

  • Beschikbaarheid In overleg

Energie

  • Energielabel D

Indeling

  • Slaapkamers 3

Afmetingen

  • Woonoppervlakte 58 m²
  • Perceeloppervlakte 425 m²
  • Woninginhoud 210 m³
Meer

Schrijf je in voor onze woningmail, actueel aanbod!

Afbeeldingen

  Boslaan 1 R19 Gramsbergen
  Boslaan 1 R19 Gramsbergen
  Boslaan 1 R19 Gramsbergen
  Boslaan 1 R19 Gramsbergen
  Boslaan 1 R19 Gramsbergen
  Boslaan 1 R19 Gramsbergen
  Boslaan 1 R19 Gramsbergen
  Boslaan 1 R19 Gramsbergen
  Boslaan 1 R19 Gramsbergen
  Boslaan 1 R19 Gramsbergen
  Boslaan 1 R19 Gramsbergen
  Boslaan 1 R19 Gramsbergen
  Boslaan 1 R19 Gramsbergen
  Boslaan 1 R19 Gramsbergen
  Boslaan 1 R19 Gramsbergen
  Boslaan 1 R19 Gramsbergen
  Boslaan 1 R19 Gramsbergen
  Boslaan 1 R19 Gramsbergen
  Boslaan 1 R19 Gramsbergen
  Boslaan 1 R19 Gramsbergen
  Boslaan 1 R19 Gramsbergen
  Boslaan 1 R19 Gramsbergen
  Boslaan 1 R19 Gramsbergen
  Boslaan 1 R19 Gramsbergen
  Boslaan 1 R19 Gramsbergen
  Boslaan 1 R19 Gramsbergen
  Boslaan 1 R19 Gramsbergen
  Boslaan 1 R19 Gramsbergen

Bezichtiging aanvragen Boslaan 1 R19

Wat is jouw huis waard?

Gratis rapport iQ Makelaars Leadtool