ENSCHEDE, Piet Mondriaanstraat 46
 
  • Type2-onder-1-kap
  • Woonoppervlakte133 m²
  • Perceelgrootte219 m²
  • Slaapkamers4
  • Aangeboden sinds04-05-2023
  • Beschikbaarheid In overleg
Bezichtiging aanvragen

Omschrijving Piet Mondriaanstraat 46

Welkom bij deze fantastische ruime twee-onder-een kapper aan de Piet Mondriaanstraat 46 in Enschede. De woning beschikt over vier ruime slaapkamers en een prachtige serre aan de achterkant. Dit alles maakt de woning ruim en ideaal voor een gezin.

De verkeersluwe Piet Mondriaanstraat ligt in de geliefde woonwijk "Het Zwering" in Enschede-West. Het centrum van Enschede bevindt zich op 15 fietsminuten afstand, terwijl het nog geen 5 minuten rijden is naar de oprit van de A-35 en de nieuwe N-18. Scholen (basis en voortgezet), winkels en supermarkten bevinden zich in de wijk.

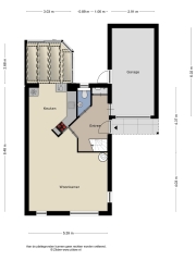
Begane grond:
De woning heeft een moderne uitstraling en is voorzien van alle gemakken. De ruime woonkamer voorzien van een houten vloer en een houtkachel heeft veel natuurlijke lichtinval en biedt voldoende ruimte voor een gezellige zithoek. Mooie ruime open keuken voorzien van vaatwasser, combi-magnetron, Inductiekookplaat en wasemkap.

1e verdieping
Er zijn drie slaapkamers, waarvan één ruime slaapkamer met inbouwkasten. De badkamer is volledig betegeld en voorzien van een bad met douche, toilet en wastafel.

2e verdiepieng
Ruime overloop met wasmachine aansluiting en zeer ruime vierde slaapkamer door de grote dakkapel.

Bijzonderheden

Kortom, deze woning biedt alles wat u zoekt in een modern en comfortabel thuis. Kom snel een kijkje nemen en laat u verrassen door de ruimte en luxe die deze woning te bieden heeft.

Bijzonderheden:
- Bouwjaar: 1993
- Verwarming middels stadsverwarming.
- Woonoppervlakte: 133 m2;
- Perceeloppervlakte: 219 m2;
- Inhoud woning: 539 m3;
- Keurig onderhouden woning.

Meer
Neem contact op

iQ Makelaars Kantoor Enschede
Danny Mulder
Roessinghsbleekweg 21,
7522 AH  Enschede

T  053 - 760 1600
E  Enschede@iQMakelaars.nl

Specificaties

Bouw

  • Soort Woningen
  • Type 2-onder-1-kap
  • Bouwjaar 1993

Algemeen

  • Beschikbaarheid In overleg

Energie

  • Energielabel A
  • Stadsverwarming Ja
  • Aanwezige isolatie Dakisolatie, muurisolatie, vloerisolatie, glasisolatie

Indeling

  • Slaapkamers 4
  • Tuin Ja
  • Tuin ligging Zuid

Voorziening

  • Parkeerplaats Ja

Afmetingen

  • Woonoppervlakte 133 m²
  • Perceeloppervlakte 219 m²
  • Woninginhoud 539 m³
  • Tuin oppervlakte 64 m²
Meer
  • Wijk en buurt
    't Zwering
  • Bevolking
    Gem. grootte huishouden
    2.4 personen
  • Detailhandel
    Grote supermarkt
    0.7km
  • Inkomen
    Gem. inkomen
    €35.500 p/j
  • Vervoer
    Station
    3.3km
  • Wonen
    Gem. woningwaarde
    €361.000
    Koopwoningen
    75%

Schrijf je in voor onze woningmail, actueel aanbod!

Afbeeldingen

  Piet Mondriaanstraat 46 ENSCHEDE
  Piet Mondriaanstraat 46 ENSCHEDE
  Piet Mondriaanstraat 46 ENSCHEDE
  Piet Mondriaanstraat 46 ENSCHEDE
  Piet Mondriaanstraat 46 ENSCHEDE
  Piet Mondriaanstraat 46 ENSCHEDE
  Piet Mondriaanstraat 46 ENSCHEDE
  Piet Mondriaanstraat 46 ENSCHEDE
  Piet Mondriaanstraat 46 ENSCHEDE
  Piet Mondriaanstraat 46 ENSCHEDE
  Piet Mondriaanstraat 46 ENSCHEDE
  Piet Mondriaanstraat 46 ENSCHEDE
  Piet Mondriaanstraat 46 ENSCHEDE
  Piet Mondriaanstraat 46 ENSCHEDE
  Piet Mondriaanstraat 46 ENSCHEDE
  Piet Mondriaanstraat 46 ENSCHEDE
  Piet Mondriaanstraat 46 ENSCHEDE
  Piet Mondriaanstraat 46 ENSCHEDE
  Piet Mondriaanstraat 46 ENSCHEDE
  Piet Mondriaanstraat 46 ENSCHEDE
  Piet Mondriaanstraat 46 ENSCHEDE
  Piet Mondriaanstraat 46 ENSCHEDE
  Piet Mondriaanstraat 46 ENSCHEDE
  Piet Mondriaanstraat 46 ENSCHEDE
  Piet Mondriaanstraat 46 ENSCHEDE
  Piet Mondriaanstraat 46 ENSCHEDE
  Piet Mondriaanstraat 46 ENSCHEDE
  Piet Mondriaanstraat 46 ENSCHEDE
  Piet Mondriaanstraat 46 ENSCHEDE
  Piet Mondriaanstraat 46 ENSCHEDE
  Piet Mondriaanstraat 46 ENSCHEDE
  Piet Mondriaanstraat 46 ENSCHEDE

Plattegrond

  Plattegrond Piet Mondriaanstraat 46 ENSCHEDE
  Plattegrond Piet Mondriaanstraat 46 ENSCHEDE
  Plattegrond Piet Mondriaanstraat 46 ENSCHEDE
  Plattegrond Piet Mondriaanstraat 46 ENSCHEDE
  Plattegrond Piet Mondriaanstraat 46 ENSCHEDE
  Plattegrond Piet Mondriaanstraat 46 ENSCHEDE
  Plattegrond Piet Mondriaanstraat 46 ENSCHEDE
  Plattegrond Piet Mondriaanstraat 46 ENSCHEDE

Bezichtiging aanvragen Piet Mondriaanstraat 46

Vergelijkbaar aanbod ENSCHEDE

Kamerlingh Onneslaan Verkocht
ENSCHEDE
Kamerlingh Onneslaan 45
   € 398.500,- k.k.
Details
Voortsweg Verkocht
ENSCHEDE
Voortsweg 303
   € 389.000,- k.k.
Details

Wat is jouw huis waard?

Gratis rapport iQ Makelaars Leadtool