ENSCHEDE, Parkweg 85
 
  Verkocht
  • Type2-onder-1-kap
  • Woonoppervlakte126 m²
  • Perceelgrootte154 m²
  • Slaapkamers5
  • Aangeboden sinds07-07-2022
  • Beschikbaarheid In overleg
Bezichtiging aanvragen

Omschrijving Parkweg 85

LET OP BELEGGERS, 1 kamer is nog vrij dus u kunt het ook voor uw zoon of dochter kopen. De kamer van 28m² is nog vrij.

Wij bieden u deze zeer goed onderhouden studentenwoning aan. De woning ligt nabij het centrum waardoor het voor studenten ideaal is. De woning beschikt over vijf kamers die afzonderlijk van elkaar zijn verhuurd voor een totaalbedrag van €1.150,- exclusief service kosten. De woning is altijd keurig onderhouden door de huidige eigenaar en is geheel geïsoleerd waardoor er geen overlast van geluid is. Tevens beschikt de woning over een brandkeurmerk. De gehele woning is voorzien van dubbel glas.

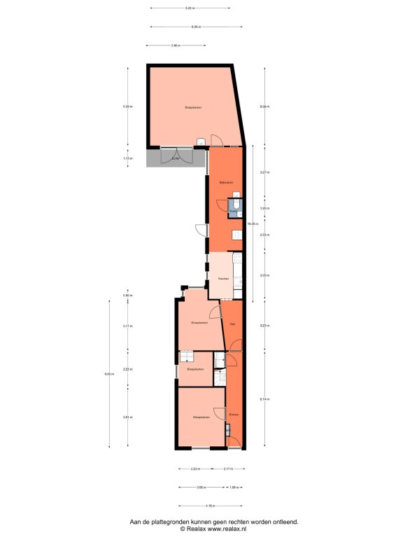
Indeling:
Begane grond:
Entree met aan de linkerzijde twee studentenkamers en doorloop naar het toilet en de gezamenlijke keuken. Keuken is voorzien van combioven, koelkast, gastoestel en afzuigkap. Aan de achterzijde van de woning is van de garage een extra grote studentenkamer gemaakt.

1e verdieping:
Overloop naar twee kamers en een badkamer voorzien van zwevend toilet, douche, en wastafel.

Bijzonderheden:
- Bouwjaar: 1899
- Woonoppervlakte 126m²
- Oppervlakte kamers: 12m², 14m², 16m², 18m² en 28m²
- Inhoud 461m³
- Servicekosten per kamer per maand: €70,-
- Brandveiligheid keurmerk

Bent u enthousiast geworden, dan nodig ik u graag uit voor een bezichtiging.

Meer
Neem contact op

iQ Makelaars Kantoor Enschede
Danny Mulder
Roessinghsbleekweg 21,
7522 AH  Enschede

T  053 - 760 1600
E  Enschede@iQMakelaars.nl

Specificaties

Bouw

  • Soort Woningen
  • Type 2-onder-1-kap
  • Bouwjaar 1899

Algemeen

  • Beschikbaarheid In overleg

Indeling

  • Slaapkamers 5
  • Tuin Ja

Afmetingen

  • Woonoppervlakte 126 m²
  • Perceeloppervlakte 154 m²
  • Woninginhoud 461 m³
  • Tuin oppervlakte 20 m²

Energie

  • CV-ketel Combi
  • CV-ketel eigendom Ja
  • CV-ketel brandstof Gas
  • CV-ketel bouwjaar 2010
  • CV-ketel warmwater Ja
  • Aanwezige isolatie Dakisolatie, muurisolatie, glasisolatie
Meer
  • Wijk en buurt
    Elferink-Heuwkamp
  • Bevolking
    Gem. grootte huishouden
    1.9 personen
  • Detailhandel
    Grote supermarkt
    0.6km
  • Inkomen
    Gem. inkomen
    €0.000 p/j
  • Vervoer
    Station
    2.3km
  • Wonen
    Gem. woningwaarde
    €163.000
    Koopwoningen
    64%

Schrijf je in voor onze woningmail, actueel aanbod!

Afbeeldingen

  Parkweg 85 ENSCHEDE
  Parkweg 85 ENSCHEDE
  Parkweg 85 ENSCHEDE
  Parkweg 85 ENSCHEDE
  Parkweg 85 ENSCHEDE
  Parkweg 85 ENSCHEDE
  Parkweg 85 ENSCHEDE
  Parkweg 85 ENSCHEDE
  Parkweg 85 ENSCHEDE
  Parkweg 85 ENSCHEDE
  Parkweg 85 ENSCHEDE
  Parkweg 85 ENSCHEDE
  Parkweg 85 ENSCHEDE
  Parkweg 85 ENSCHEDE
  Parkweg 85 ENSCHEDE
  Parkweg 85 ENSCHEDE
  Parkweg 85 ENSCHEDE
  Parkweg 85 ENSCHEDE
  Parkweg 85 ENSCHEDE
  Parkweg 85 ENSCHEDE
  Parkweg 85 ENSCHEDE

Plattegrond

  Plattegrond Parkweg 85 ENSCHEDE
  Plattegrond Parkweg 85 ENSCHEDE
  Plattegrond Parkweg 85 ENSCHEDE
  Plattegrond Parkweg 85 ENSCHEDE

Bezichtiging aanvragen Parkweg 85

Vergelijkbaar aanbod ENSCHEDE

Haaksbergerstraat Verkocht
ENSCHEDE
Haaksbergerstraat 415
   € 230.000,- k.k.
Details
Wethouder Nijhuisstraat Verkocht
ENSCHEDE
Wethouder Nijhuisstraat 97
   € 225.000,- k.k.
Details
Jacob van Heemskerkstraat Verkocht
ENSCHEDE
Jacob van Heemskerkstraat 20
   € 225.000,- k.k.
Details

Wat is jouw huis waard?

Gratis rapport iQ Makelaars Leadtool