ENSCHEDE, Keteldiepstraat 68
 
  • Type2-onder-1-kap
  • Woonoppervlakte159 m²
  • Perceelgrootte217 m²
  • Slaapkamers4
  • GarageJa
  • Aangeboden sinds16-04-2026
  • Beschikbaarheid In overleg
Bezichtiging aanvragen

Omschrijving Keteldiepstraat 68

Stel je voor: thuiskomen in een zeer ruim en comfortabel huis in een rustige, kindvriendelijke wijk.

Deze goed onderhouden 2-onder-1-kapwoning beschikt over 4 slaapkamers, energielabel A, 12 zonnepanelen en een extra ruimte op de begane grond met tal van mogelijkheden. De woning biedt een woonoppervlakte van maar liefst 159 m² en diverse prettige voorzieningen die bijdragen aan optimaal wooncomfort.

De locatie is ideaal. Binnen enkele minuten staat u midden in de natuur. Liever de gezelligheid opzoeken? Op de fiets bent u zo in de bruisende binnenstad van Enschede of geniet u van een zonnig terras in Lonneker.

Indeling
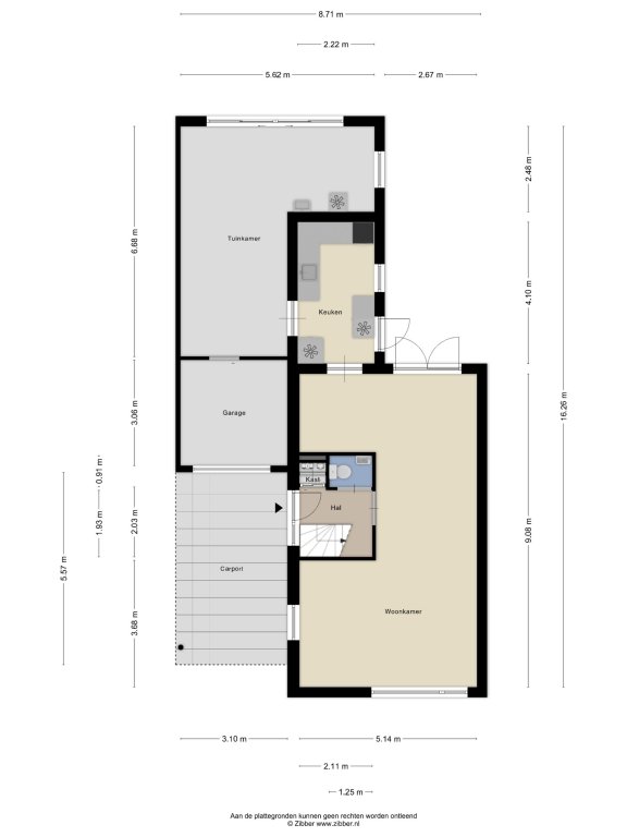
Begane grond:
Bij binnenkomst valt direct de lichte en ruime woonkamer op. De grote raampartijen zorgen voor een prettige natuurlijke lichtinval. De gesloten keuken (vernieuwd in 2022) is voorzien van alle gewenste inbouwapparatuur.

De "Bonus" ruimte:
Een uniek kenmerk van deze woning is de voormalige garage. In 2024 is deze volledig gerenoveerd en geïsoleerd, waardoor een hoogwaardige extra ruimte is ontstaan. Perfect als praktijk aan huis, speelkamer voor de kinderen of een hobbyruimte.

1e verdieping:
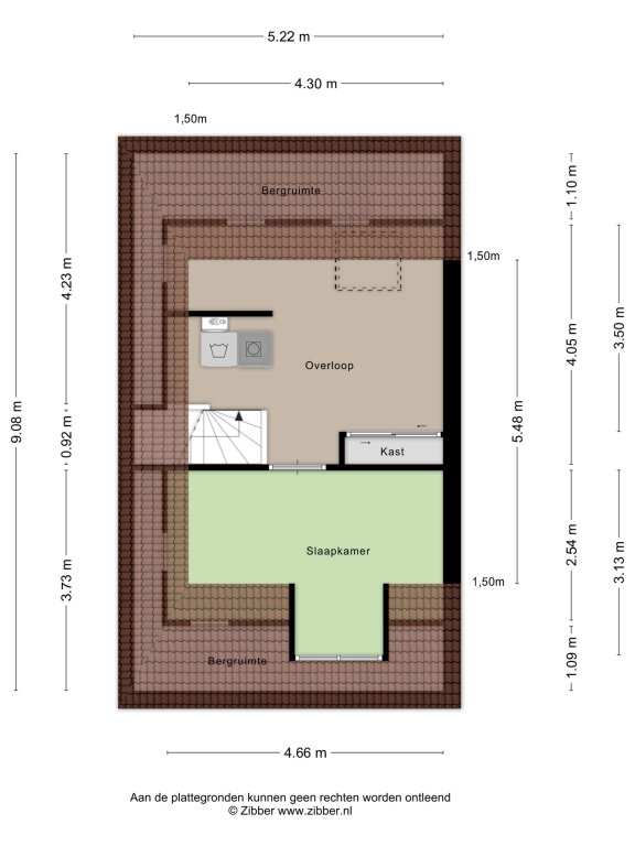
Hier bevinden zich drie slaapkamers en een complete badkamer, uitgerust met een ligbad, douche, toilet en wastafel.

Zolder:
De zolderverdieping is een verrassende extra. Naast een volwaardige vierde slaapkamer vindt u hier een multifunctionele ruimte, ideaal als thuiskantoor, sportruimte of extra bergruimte.

Belangrijkste kenmerken op een rij:
• Bouwjaar: 1999
• Woonoppervlakte: 159 m²
• Perceel: 217 m²
• Duurzaamheid: energielabel A, 12 zonnepanelen & hybride warmtepomp (2025)
• 4 slaapkamers
• Extra: geïsoleerde multifunctionele ruimte (2024)
• Buiten: vernieuwde tuin (2023) en grote carport met berging/garage
• Parkeren op eigen terrein

Deze woning in Enschede is een fantastische plek voor gezinnen, stellen en iedereen die op zoek is naar ruimte en comfort.
Wacht niet te lang en plan vandaag nog een bezichtiging. Dit is uw kans om te wonen in een van de fijnste wijken van Enschede!

Meer
Neem contact op

iQ Makelaars Kantoor Enschede
Danny Mulder
Roessinghsbleekweg 21,
7522 AH  Enschede

T  053 - 760 1600
E  Enschede@iQMakelaars.nl

Specificaties

Bouw

  • Soort Woningen
  • Type 2-onder-1-kap
  • Bouwjaar 1999

Algemeen

  • Beschikbaarheid In overleg

Energie

  • Energielabel A
  • CV-ketel Combi
  • CV-ketel eigendom Ja
  • CV-ketel brandstof Gas
  • CV-ketel bouwjaar 2019
  • CV-ketel warmwater Ja
  • Aanwezige isolatie Dakisolatie, muurisolatie, vloerisolatie, glasisolatie

Indeling

  • Slaapkamers 4
  • Garage Ja
  • Tuin Ja
  • Tuin ligging Oost

Voorziening

  • Parkeerplaats Ja
  • Zonnepanelen Ja

Afmetingen

  • Woonoppervlakte 159 m²
  • Perceeloppervlakte 217 m²
  • Woninginhoud 595 m³
  • Tuin oppervlakte 65 m²
Meer

Schrijf je in voor onze woningmail, actueel aanbod!

Afbeeldingen

  Keteldiepstraat 68 ENSCHEDE
  Keteldiepstraat 68 ENSCHEDE
  Keteldiepstraat 68 ENSCHEDE
  Keteldiepstraat 68 ENSCHEDE
  Keteldiepstraat 68 ENSCHEDE
  Keteldiepstraat 68 ENSCHEDE
  Keteldiepstraat 68 ENSCHEDE
  Keteldiepstraat 68 ENSCHEDE
  Keteldiepstraat 68 ENSCHEDE
  Keteldiepstraat 68 ENSCHEDE
  Keteldiepstraat 68 ENSCHEDE
  Keteldiepstraat 68 ENSCHEDE
  Keteldiepstraat 68 ENSCHEDE
  Keteldiepstraat 68 ENSCHEDE
  Keteldiepstraat 68 ENSCHEDE
  Keteldiepstraat 68 ENSCHEDE
  Keteldiepstraat 68 ENSCHEDE
  Keteldiepstraat 68 ENSCHEDE
  Keteldiepstraat 68 ENSCHEDE
  Keteldiepstraat 68 ENSCHEDE
  Keteldiepstraat 68 ENSCHEDE
  Keteldiepstraat 68 ENSCHEDE
  Keteldiepstraat 68 ENSCHEDE
  Keteldiepstraat 68 ENSCHEDE
  Keteldiepstraat 68 ENSCHEDE
  Keteldiepstraat 68 ENSCHEDE
  Keteldiepstraat 68 ENSCHEDE
  Keteldiepstraat 68 ENSCHEDE
  Keteldiepstraat 68 ENSCHEDE
  Keteldiepstraat 68 ENSCHEDE
  Keteldiepstraat 68 ENSCHEDE
  Keteldiepstraat 68 ENSCHEDE
  Keteldiepstraat 68 ENSCHEDE
  Keteldiepstraat 68 ENSCHEDE
  Keteldiepstraat 68 ENSCHEDE
  Keteldiepstraat 68 ENSCHEDE

Plattegrond

  Plattegrond Keteldiepstraat 68 ENSCHEDE
  Plattegrond Keteldiepstraat 68 ENSCHEDE
  Plattegrond Keteldiepstraat 68 ENSCHEDE
  Plattegrond Keteldiepstraat 68 ENSCHEDE
  Plattegrond Keteldiepstraat 68 ENSCHEDE
  Plattegrond Keteldiepstraat 68 ENSCHEDE

Bezichtiging aanvragen Keteldiepstraat 68

Vergelijkbaar aanbod ENSCHEDE

Zwaluwstraat Verkocht OVB
ENSCHEDE
Zwaluwstraat 3
   € 519.000,- k.k.
Details

Wat is jouw huis waard?

Gratis rapport iQ Makelaars Leadtool