ENSCHEDE, Hölterhofweg 222
 
  • Type2-onder-1-kap
  • Woonoppervlakte190 m²
  • Perceelgrootte529 m²
  • Slaapkamers4
  • GarageJa
  • Aangeboden sinds09-01-2026
  • Beschikbaarheid In overleg
Bezichtiging aanvragen

Omschrijving Hölterhofweg 222

Deze woning biedt een uitzonderlijke combinatie van ruimte, luxe en duurzaamheid in een groene en serene woonomgeving nabij Enschede. Instapklaar, duurzaam én royaal wonen op hoog niveau? Deze subliem afgewerkte twee-onder-één-kapwoning van ca. 190 m² staat voor exclusief wooncomfort en beschikt over een energielabel
A++.

De woning is gelegen op een ruim perceel van 529 m², met vrij en weids uitzicht aan de voorzijde, en een brede, diep gelegen tuin op het zuidwesten. Hier vindt u een imposante luxe overkapping van ca. 54 m² en een sauna(ter overname), waardoor binnen- en buitenleven perfect in elkaar overlopen.

Kortom, een onderscheidende gezinswoning waar rust, ruimte en verfijnde luxe
samenkomen — een plek waar wonen elke dag voelt als thuiskomen op het hoogste
niveau.

Exclusieve woning met erker en dakkapel die luxe wonen en extra leefruimte
mogelijk maakt.

Indeling – Begane grond

Bij binnenkomst in de entree en hal vindt u het toilet en de trapopgang naar de eerste verdieping. De ruime woonkamer is licht, sfeervol en voorzien van een houten vloer en erker, wat zorgt voor een prettig uitzicht en veel daglicht. De moderne keuken is volledig uitgerust met hoogwaardige inbouwapparatuur, zoals oven, combioven, vrijstaand inductie fornuis 100 cm en vaatwasser, en biedt toegang tot de bijkeuken en berging. Vanuit zowel de woonkamer als de keuken is er directe toegang tot de tuin met royale overkapping, waardoor binnen- en buitenleven perfect samenkomen.

Indeling – Eerste verdieping

De eerste verdieping beschikt over drie royale slaapkamers, ieder van goed formaat en met veel daglicht, waardoor ze een heerlijk gevoel van ruimte en comfort bieden. Twee slaapkamers zijn voorzien van praktische inbouwkasten, ideaal voor extra opbergruimte. De luxe badkamer is een echte blikvanger: uitgerust met een vrijstaand ligbad, inloopdouche, dubbel wastafelmeubel en toilet, perfect voor ontspanning en dagelijks comfort. Deze verdieping combineert grote leefruimtes met functioneel gemak, waardoor het een ideaal woonniveau is voor gezinnen die comfort, stijl en ruimte waarderen.

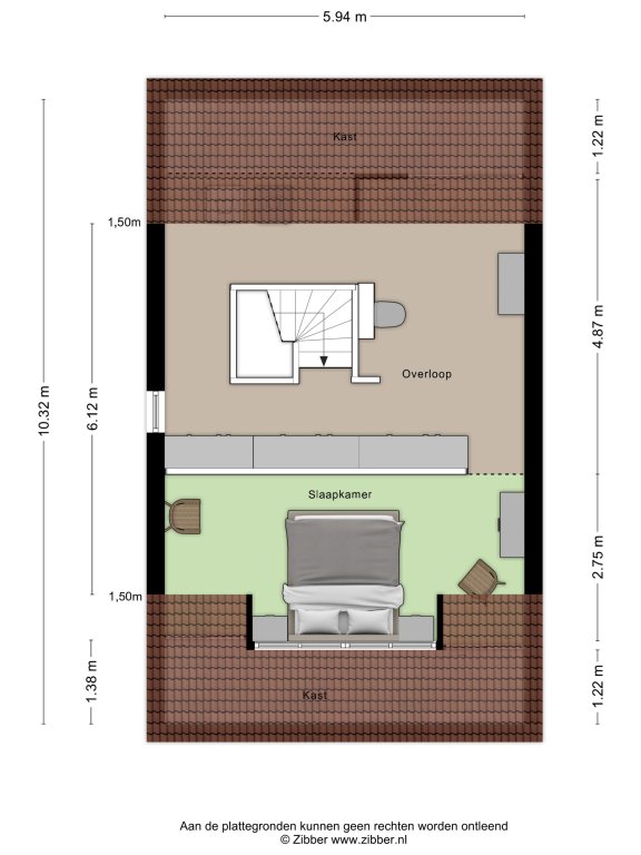
Indeling – Tweede verdieping

De tweede verdieping biedt veel ruimte en flexibiliteit. Hier bevindt zich een slaapkamer met en suite, ideaal voor extra comfort en privacy. Daarnaast is er een multifunctionele ruimte die kan dienen als extra slaapkamer, werk- of hobbyruimte, en een aparte bergruimte. De verdieping is verder uitgerust met een toilet, wastafel en aansluitingen voor wasmachine en droger, waardoor het een praktische en veelzijdige verdieping is. Dankzij de royale indeling is deze verdieping perfect voor extra slaapruimte, kantoor of speelruimte.

Tuin en buitenleven

De woning beschikt over een brede en diepe tuin op het zuidwesten, waardoor u optimaal kunt genieten van zon en privacy. De royale overkapping vormt het hart van het buitenleven en is voorzien van een houtkachel, ideaal voor gezellige avonden, zelfs op koelere dagen. Daarnaast biedt de sauna (ter overname) luxe ontspanning aan huis. Deze riante tuin is perfect voor ontspanning, tuinfeesten of genieten met familie en vrienden, en vormt een natuurlijk verlengstuk van het comfortabele binnenleven. Dankzij de royale afmetingen en gunstige ligging biedt de tuin zowel rust als
veelzijdigheid – een ware buitenoase in eigen achtertuin.

Bijzonderheden
- Woonoppervlakte: ca. 190 m² op een ruim perceel van 529 m²
- Energielabel A++: duurzaam en energiezuinig wonen
- Royale overkapping met houtkachel en sauna (ter overname), ideaal voor ultiem buitenleven
- Vier slaapkamers en een luxe badkamer
- Ruime, lichte woonkamer met erker en een grote moderne keuken vol comfort
- Vrijstaand inductie fornuis 100 cm energieklasse A, 5 kookzones en boost functie, 3 ovens
- Bijkeuken, berging en aparte fietsberging voor extra gemak en opslag
- Zonnige tuin op het zuidwesten met optimale privacy
- Grote dakkapel en kunststof kozijnen voor extra ruimte en onderhoudsgemak
- Leidingen voor extra badkamer op zolder al aanwezig.
- Vrij uitzicht en rustige ligging nabij Enschede
- Volledig instapklaar: de perfecte combinatie van comfort, privacy en ruimte
- Glasvezel
- 12 Zonnepanelen
- Warmtepomp
- Gasloos wonen
- Sfeerverlichting overkapping en tuin

Meer
Neem contact op

iQ Makelaars Kantoor Enschede
Danny Mulder
Roessinghsbleekweg 21,
7522 AH  Enschede

T  053 - 760 1600
E  Enschede@iQMakelaars.nl

Specificaties

Bouw

  • Soort Woningen
  • Type 2-onder-1-kap
  • Bouwjaar 2019

Algemeen

  • Beschikbaarheid In overleg

Energie

  • Energielabel A++
  • Aanwezige isolatie Dakisolatie, spouwisolatie, muurisolatie, vloerisolatie, glasisolatie

Indeling

  • Slaapkamers 4
  • Garage Ja
  • Tuin Ja
  • Tuin ligging Zuidwest

Voorziening

  • Parkeerplaats Ja
  • Zonnepanelen Ja

Afmetingen

  • Woonoppervlakte 190 m²
  • Perceeloppervlakte 529 m²
  • Woninginhoud 963 m³
  • Tuin oppervlakte 300 m²
Meer

Schrijf je in voor onze woningmail, actueel aanbod!

Plattegrond

  Plattegrond Hölterhofweg 222 ENSCHEDE
  Plattegrond Hölterhofweg 222 ENSCHEDE
  Plattegrond Hölterhofweg 222 ENSCHEDE
  Plattegrond Hölterhofweg 222 ENSCHEDE

Bezichtiging aanvragen Hölterhofweg 222

Wat is jouw huis waard?

Gratis rapport iQ Makelaars Leadtool