ENSCHEDE, Esmarkelaan 484
 
  Verkocht
  • TypeEindwoning
  • Woonoppervlakte82 m²
  • Perceelgrootte122 m²
  • Slaapkamers2
  • Aangeboden sinds19-07-2022
  • Beschikbaarheid In overleg
Bezichtiging aanvragen

Omschrijving Esmarkelaan 484

Uiterst modern vormgegeven woonhuis met een zonnige tuin op het westen en een fraaie aangebouwde serre. De afwerking van wanden, vloeren en de heerlijke lichtinval door de ramen rondom, dragen bij tot een zeer prettig en licht leefklimaat in deze hoekwoning. De ligging is zeer gunstig, in de woonwijk ‘Eschmarke’ aan de rand van het groene buitengebied met voorzieningen, scholen en winkels op loopafstand.

De woning is in 2021 volledig gemoderniseerd en voorzien van een nieuwe badkamer, toilet en keuken, comfortabele vloerverwarming en een fraaie serre.

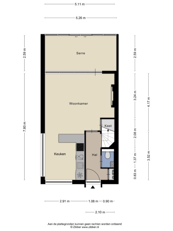
Indeling:

Begane grond: volledig voorzien van vloerverwarming
- Entree/hal, voorzien van voordeur. De ruimte heeft een meterkast.
- Moderne luxe toiletruimte (2021), voorzien van hangend toilet en fonteintje.
- Lichte woonkamer met vloerverwarming.
- Open moderne zeer luxe keuken (2021), voorzien van diverse inbouwapparatuur, met o.a. inductie kookplaat, combi-oven, koel-vriescombinatie, afzuigkap en vaatwasser.

1e verdieping:
- 2-tal ruime slaapkamers (voorheen 3 slaapkamers)
- Overloop.
- Moderne luxe badkamer (2021), voorzien van inloopdouche, wastafelmeubel en vloerverwarming.
- Wasruimte, voorzien van wasmachine- en drogeraansluiting en opstelplaats voor de HR combi-ketel.

Tuin
Onderhoudsvriendelijk tuin met af te sluiten bijzonder fraaie serre en achterom.

Je bent van harte welkom!

Meer
Neem contact op

iQ Makelaars Kantoor Enschede
Martin Grave
Roessinghsbleekweg 21,
7522 AH  Enschede

T  053 - 760 1600
E  Enschede@iQMakelaars.nl

Specificaties

Bouw

  • Soort Woningen
  • Type Eindwoning
  • Bouwjaar 1998

Algemeen

  • Beschikbaarheid In overleg

Indeling

  • Slaapkamers 2
  • Tuin Ja
  • Tuin ligging West

Afmetingen

  • Woonoppervlakte 82 m²
  • Perceeloppervlakte 122 m²
  • Woninginhoud 324 m³

Energie

  • CV-ketel Combi
  • CV-ketel eigendom Ja
  • CV-ketel brandstof Gas
  • CV-ketel bouwjaar 2015
  • CV-ketel warmwater Ja
  • Aanwezige isolatie Dakisolatie, spouwisolatie, muurisolatie, vloerisolatie, glasisolatie
Meer
  • Wijk en buurt
    Eekmaat West
  • Bevolking
    Gem. grootte huishouden
    2.5 personen
  • Detailhandel
    Grote supermarkt
    0.9km
  • Inkomen
    Gem. inkomen
    €0.000 p/j
  • Vervoer
    Station
    4.9km
  • Wonen
    Gem. woningwaarde
    €239.000
    Koopwoningen
    77%

Schrijf je in voor onze woningmail, actueel aanbod!

Afbeeldingen

  Esmarkelaan 484 ENSCHEDE
  Esmarkelaan 484 ENSCHEDE
  Esmarkelaan 484 ENSCHEDE
  Esmarkelaan 484 ENSCHEDE
  Esmarkelaan 484 ENSCHEDE
  Esmarkelaan 484 ENSCHEDE
  Esmarkelaan 484 ENSCHEDE
  Esmarkelaan 484 ENSCHEDE
  Esmarkelaan 484 ENSCHEDE
  Esmarkelaan 484 ENSCHEDE
  Esmarkelaan 484 ENSCHEDE
  Esmarkelaan 484 ENSCHEDE
  Esmarkelaan 484 ENSCHEDE
  Esmarkelaan 484 ENSCHEDE
  Esmarkelaan 484 ENSCHEDE
  Esmarkelaan 484 ENSCHEDE
  Esmarkelaan 484 ENSCHEDE
  Esmarkelaan 484 ENSCHEDE
  Esmarkelaan 484 ENSCHEDE
  Esmarkelaan 484 ENSCHEDE
  Esmarkelaan 484 ENSCHEDE
  Esmarkelaan 484 ENSCHEDE
  Esmarkelaan 484 ENSCHEDE
  Esmarkelaan 484 ENSCHEDE
  Esmarkelaan 484 ENSCHEDE
  Esmarkelaan 484 ENSCHEDE
  Esmarkelaan 484 ENSCHEDE
  Esmarkelaan 484 ENSCHEDE

Plattegrond

  Plattegrond Esmarkelaan 484 ENSCHEDE
  Plattegrond Esmarkelaan 484 ENSCHEDE
  Plattegrond Esmarkelaan 484 ENSCHEDE
  Plattegrond Esmarkelaan 484 ENSCHEDE
  Plattegrond Esmarkelaan 484 ENSCHEDE
  Plattegrond Esmarkelaan 484 ENSCHEDE

Bezichtiging aanvragen Esmarkelaan 484

Vergelijkbaar aanbod ENSCHEDE

De Klomp
ENSCHEDE
De Klomp 22
   € 299.000,- k.k.
Details
Kuipersdijk
ENSCHEDE
Kuipersdijk 213
   € 299.000,- k.k.
Details

Wat is jouw huis waard?

Gratis rapport iQ Makelaars Leadtool