ENSCHEDE, Emmastraat 73
 
  Verkocht
  • TypeTussenwoning
  • Woonoppervlakte82 m²
  • Perceelgrootte120 m²
  • Slaapkamers2
  • Aangeboden sinds07-06-2023
  • Beschikbaarheid In overleg
Bezichtiging aanvragen

Omschrijving Emmastraat 73

Heerlijke tussenwoning te koop, gelegen in één van de mooiste straten van Enschede.

De woning is in de basis erg goed onderhouden en reeds volledig voorzien van kunststof kozijnen met HR++ glas.

De woning heeft een zeer diepe tuin op het zuiden welke momenteel grotendeels voorzien is van een overkapping.
De tuin heeft een goed bereikbare achterom.

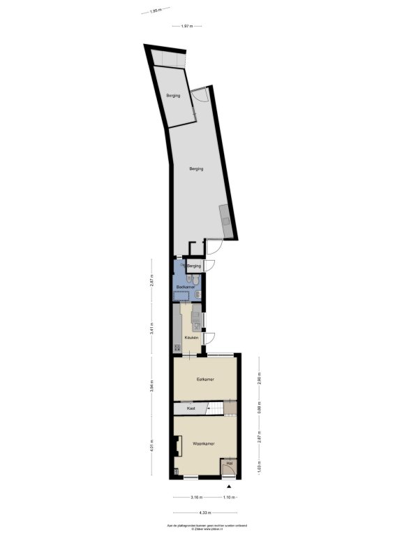
Indeling
Begane grond:
Entree/hal, toegang tot de voorste woonkamer, toegang tot de tuingerichte eetkamer met aansluitend de keuken en badkamer.
Centraal in de woning bevindt zich de vaste trap naar de verdieping waar zich 2 ruime slaapkamers bevinden

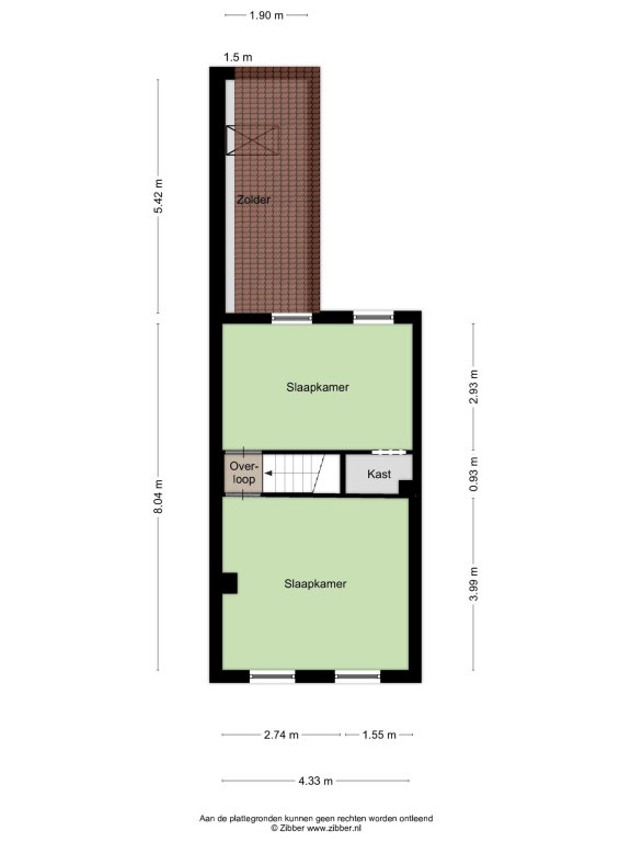
Eerste verdieping:
Overloop, twee ruime slaapkamers

Ligging:
Dit karaktervolle woonhuis ligt op loopafstand van het ziekenhuis en centrum van Enschede.
De straat is verkeersluw en biedt enkel een doorgaande route voor fietsers. In de wijk bevinden zich diverse voorzieningen zoals een huisarts, basisschool en het Volkspark.

Bijzonderheden:
- Bouwjaar: 1896
- Perceeloppervlakte: 120m²
- Inhoud: 449m³
- Woonoppervlakte: 82m²
- Op loopafstand van het centrum van Enschede;

Emmastraat
De Emmastraat is een fietsstraat, waarbij er aan het begin van de straat weinig (doorgaand) autoverkeer is. Binnen enkele minuten bereikt u met de auto de Westerval welke toegang biedt tot de A35.

Voor een bezichtiging.
Bel iQ Makelaars Enschede 053-7601600 of mail Enschede@iQMakelaars.nl

Meer
Neem contact op

iQ Makelaars Kantoor Enschede
Norbert Wegter
Roessinghsbleekweg 21,
7522 AH  Enschede

T  053 - 760 1600
E  Enschede@iQMakelaars.nl

Specificaties

Bouw

  • Soort Woningen
  • Type Tussenwoning
  • Bouwjaar 1896

Algemeen

  • Beschikbaarheid In overleg

Energie

  • Energielabel E
  • CV-ketel Combi
  • CV-ketel eigendom Ja
  • CV-ketel brandstof Gas
  • CV-ketel bouwjaar 2009
  • CV-ketel warmwater Ja

Indeling

  • Slaapkamers 2
  • Tuin Ja
  • Tuin ligging Zuid

Afmetingen

  • Woonoppervlakte 82 m²
  • Perceeloppervlakte 120 m²
  • Woninginhoud 449 m³
  • Tuin oppervlakte 60 m²
Meer

Schrijf je in voor onze woningmail, actueel aanbod!

Afbeeldingen

  Emmastraat 73 ENSCHEDE
  Emmastraat 73 ENSCHEDE
  Emmastraat 73 ENSCHEDE
  Emmastraat 73 ENSCHEDE
  Emmastraat 73 ENSCHEDE
  Emmastraat 73 ENSCHEDE
  Emmastraat 73 ENSCHEDE
  Emmastraat 73 ENSCHEDE
  Emmastraat 73 ENSCHEDE
  Emmastraat 73 ENSCHEDE
  Emmastraat 73 ENSCHEDE
  Emmastraat 73 ENSCHEDE
  Emmastraat 73 ENSCHEDE
  Emmastraat 73 ENSCHEDE
  Emmastraat 73 ENSCHEDE
  Emmastraat 73 ENSCHEDE
  Emmastraat 73 ENSCHEDE
  Emmastraat 73 ENSCHEDE
  Emmastraat 73 ENSCHEDE
  Emmastraat 73 ENSCHEDE
  Emmastraat 73 ENSCHEDE
  Emmastraat 73 ENSCHEDE
  Emmastraat 73 ENSCHEDE
  Emmastraat 73 ENSCHEDE
  Emmastraat 73 ENSCHEDE
  Emmastraat 73 ENSCHEDE

Plattegrond

  Plattegrond Emmastraat 73 ENSCHEDE
  Plattegrond Emmastraat 73 ENSCHEDE
  Plattegrond Emmastraat 73 ENSCHEDE
  Plattegrond Emmastraat 73 ENSCHEDE

Bezichtiging aanvragen Emmastraat 73

Vergelijkbaar aanbod ENSCHEDE

Schipholtstraat Verkocht
ENSCHEDE
Schipholtstraat 330
   € 200.000,- k.k.
Details
Ikaroslaan Verkocht
ENSCHEDE
Ikaroslaan 14
   € 196.000,- k.k.
Details
Drukkerstraat Verkocht
ENSCHEDE
Drukkerstraat 26
   € 199.000,- k.k.
Details

Wat is jouw huis waard?

Gratis rapport iQ Makelaars Leadtool