ENSCHEDE, Bosuilstraat 16
 
  • Type2-onder-1-kap
  • Woonoppervlakte122 m²
  • Perceelgrootte227 m²
  • Slaapkamers5
  • GarageJa
  • Aangeboden sinds12-03-2026
  • Beschikbaarheid In overleg
Bezichtiging aanvragen

Omschrijving Bosuilstraat 16

Welkom bij deze prachtige twee-onder-een-kapwoning in de gezellige buurt van Enschede, gelegen in de rustige straat Bosuilstraat. Deze familiehousing, gebouwd in 2003, onderscheidt zich met 5 slaapkamers, luxe keuken(2023), luxe badkamer(2021) en energielabel A. Hier komt u thuis in een warme sfeer met voldoende licht, ruimte en comfort.

De woning bevindt zich in een zeer aantrekkelijke buurt, perfect gelegen nabij scholen, een sportschool, supermarkten en speeltuinen. U zult de rust en stilte in deze residentiële wijk waarderen, terwijl u nog steeds dicht bij alle faciliteiten bent. De ligging aan de rustige Bosuilstraat in Enschede is echt ideaal.

De begane grond is functioneel en gezellig ingedeeld met een woonkamer en open keuken. De luxe keuken is voorzien van diverse luxe inbouwapparatuur. Vanuit de keuken is er ook toegang tot de tuin. In de hal is er toegang tot de eerste verdieping en toilet.

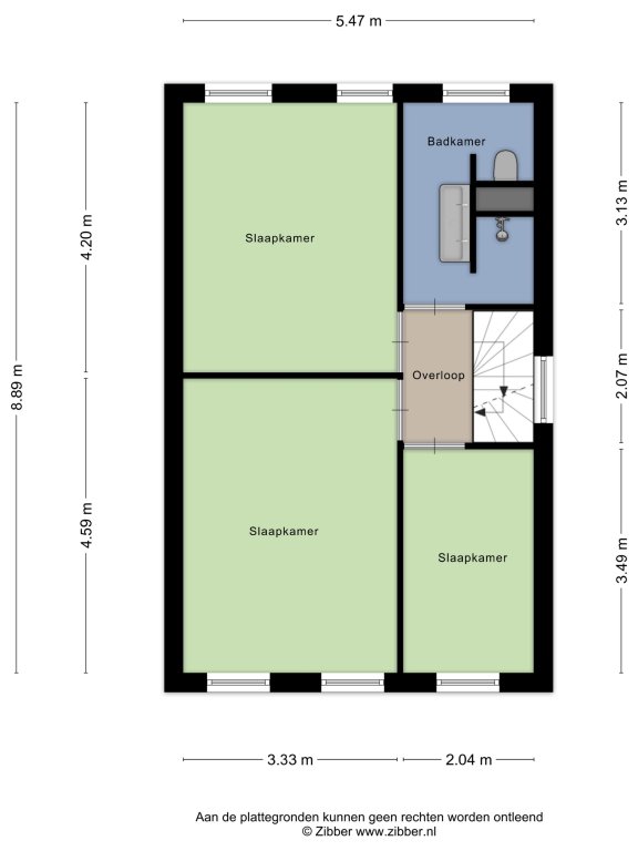
Op de eerste verdieping heeft u de beschikking over drie slaapkamers en een moderne badkamer die is uitgerust met een toilet, douche en een dubbele wastafel. De tweede verdieping biedt nog eens twee slaapkamers, wat het totaal op vijf brengt.

De woning beschikt over een goed onderhouden tuin aan de voor- en achterkant. Geniet van de zonnige dagen en de frisse lucht in uw eigen buitenruimte met ruime overkapping. Daarnaast is er een losstaande gemetselde garage met elektriciteit.

Er is voldoende parkeergelegenheid op eigen terrein voor 3 auto's. De woning is ook voorzien van 8 zonnepanelen, een extra bonus voor het verlagen van uw energierekening.

Bijzondereheden:
- Energielabel A
- Fraaie tuin met overkapping
- Moderne keuken uit 2023
- Moderne badkamer uit 2021
- Aantal slaapkamers: 5


Ter afsluiting nodigen we u van harte uit om deze woning zelf te komen ervaren en te bekijken. We zijn ervan overtuigd dat zodra u de ruime opzet en de rustige maar centrale locatie ziet, u zich direct thuis zult voelen. Heeft deze woning uw interesse gewekt? Neem dan zeker contact op met ons makelaarskantoor voor een bezichtiging.

Meer
Neem contact op

iQ Makelaars Kantoor Enschede
Danny Mulder
Roessinghsbleekweg 21,
7522 AH  Enschede

T  053 - 760 1600
E  Enschede@iQMakelaars.nl

Specificaties

Bouw

  • Soort Woningen
  • Type 2-onder-1-kap
  • Bouwjaar 2003

Algemeen

  • Beschikbaarheid In overleg

Energie

  • Energielabel A
  • CV-ketel Combi
  • CV-ketel eigendom Ja
  • CV-ketel brandstof Gas
  • CV-ketel bouwjaar 2021
  • CV-ketel warmwater Ja
  • Aanwezige isolatie Dakisolatie, muurisolatie, vloerisolatie, glasisolatie

Indeling

  • Slaapkamers 5
  • Garage Ja
  • Tuin Ja

Voorziening

  • Parkeerplaats Ja
  • Zonnepanelen Ja

Afmetingen

  • Woonoppervlakte 122 m²
  • Perceeloppervlakte 227 m²
  • Woninginhoud 456 m³
  • Tuin oppervlakte 60 m²
Meer

Schrijf je in voor onze woningmail, actueel aanbod!

Plattegrond

  Plattegrond Bosuilstraat 16 ENSCHEDE
  Plattegrond Bosuilstraat 16 ENSCHEDE
  Plattegrond Bosuilstraat 16 ENSCHEDE
  Plattegrond Bosuilstraat 16 ENSCHEDE
  Plattegrond Bosuilstraat 16 ENSCHEDE
  Plattegrond Bosuilstraat 16 ENSCHEDE
  Plattegrond Bosuilstraat 16 ENSCHEDE
  Plattegrond Bosuilstraat 16 ENSCHEDE
  Plattegrond Bosuilstraat 16 ENSCHEDE
  Plattegrond Bosuilstraat 16 ENSCHEDE

Bezichtiging aanvragen Bosuilstraat 16

Vergelijkbaar aanbod ENSCHEDE

Julie de Graaglaan Verkocht
ENSCHEDE
Julie de Graaglaan 67
   € 550.000,- k.k.
Details
Burgemeester Stroinkstraa Verkocht
ENSCHEDE
Burgemeester Stroinkstraa 287
   € 545.000,- k.k.
Details

Wat is jouw huis waard?

Gratis rapport iQ Makelaars Leadtool