Deventer, Karel de Grotelaan 154
 
  • TypeAppartement
  • Woonoppervlakte90 m²
  • Slaapkamers3
  • Aangeboden sinds26-03-2026
  • Beschikbaarheid In overleg
Bezichtiging aanvragen

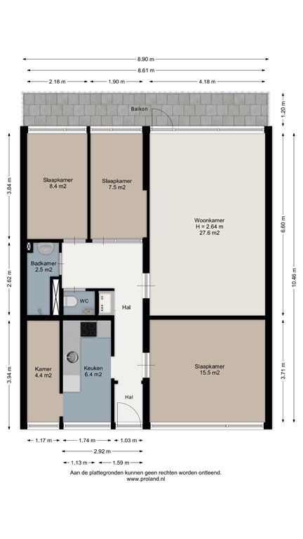
Omschrijving Karel de Grotelaan 154

Karel de Grotelaan 154 – Deventer

Wonen op hoogte met een prachtig uitzicht over de stad, volop lichtinval én verrassend veel ruimte? Dit royale 4-kamerappartement op de bovenste verdieping van de Keizerslandenflat heeft het allemaal!

Gelegen op de 10e (en hoogste) woonlaag geniet u hier dagelijks van een fantastisch, vrij uitzicht over Deventer en de wijde omgeving. De combinatie van rust, privacy en licht maakt dit appartement extra aantrekkelijk.

Het complex is verzorgd en voorzien van een nette centrale entree met intercominstallatie, brievenbussen en een belplateau. Met twee liften, een trappenhuis en een aanwezige huismeester is het wooncomfort hier optimaal. Daarnaast is er volop parkeergelegenheid rondom het gebouw.

Indeling:
Via de centrale entree bereikt u eenvoudig de bovenste verdieping. Eenmaal binnen komt u in de hal, die toegang biedt tot alle vertrekken.

De ruime en lichte woonkamer vormt het hart van het appartement. Grote raampartijen zorgen voor een prettige lichtinval en een prachtig uitzicht dat nooit verveelt. Vanuit hier stapt u zo het brede balkon op, waar u heerlijk kunt genieten van de zon én het indrukwekkende uitzicht over de stad.

De keuken bevindt zich aan de voorzijde en beschikt over een praktische bijkeuken met boiler en wasmachineaansluiting.

Het appartement beschikt over maar liefst drie goed bemeten slaapkamers, ideaal voor een gezin, thuiswerken of hobbyruimte.

De badkamer en het toilet zijn in 2022 vernieuwd en modern uitgevoerd, waardoor u hier direct van kunt genieten.

Bijzonderheden:
-Woonoppervlakte ca. 90 m²
-Drie ruime slaapkamers
-Gelegen op de bovenste (10e) verdieping
-Schitterend vrij uitzicht over de stad
-Veel lichtinval
-Badkamer en toilet vernieuwd in 2022
-Eigen berging in de onderbouw
-Gezamenlijke fietsenstalling
-Verzorgd complex met huismeester
-Energielabel D
-Servicekosten: € 250,- per maand

Omgeving:
De ligging is ideaal: direct naast winkelcentrum Keizerslanden met een breed aanbod aan winkels. Ook het Zandweteringpark, scholen en sportvoorzieningen liggen op korte afstand.

Met de fiets bent u binnen circa 10 minuten in het historische centrum van Deventer. Daarnaast zijn er goede openbaar vervoersverbindingen en ligt ook de natuur binnen handbereik.

Vraagprijs: € 265.000,- k.k.
Aanvaarding: in overleg

Interesse?
Maak snel een afspraak voor een bezichtiging en ervaar zelf het uitzicht en de ruimte!

0570 – 234 172
Neem contact met ons op per mail

Meer
Neem contact op

Loolaan 31 A
7314 AB Apeldoorn

T  055 - 760 1777
E  Apeldoorn@iQMakelaars.nl

Specificaties

Bouw

  • Soort Woningen
  • Type Appartement
  • Bouwjaar 1969

Algemeen

  • Beschikbaarheid In overleg

Energie

  • Energielabel D

Indeling

  • Slaapkamers 3

Afmetingen

  • Woonoppervlakte 90 m²
  • Woninginhoud 285 m³
Meer

Schrijf je in voor onze woningmail, actueel aanbod!

Afbeeldingen

  Karel de Grotelaan 154 Deventer
  Karel de Grotelaan 154 Deventer
  Karel de Grotelaan 154 Deventer
  Karel de Grotelaan 154 Deventer
  Karel de Grotelaan 154 Deventer
  Karel de Grotelaan 154 Deventer
  Karel de Grotelaan 154 Deventer
  Karel de Grotelaan 154 Deventer
  Karel de Grotelaan 154 Deventer
  Karel de Grotelaan 154 Deventer
  Karel de Grotelaan 154 Deventer
  Karel de Grotelaan 154 Deventer
  Karel de Grotelaan 154 Deventer
  Karel de Grotelaan 154 Deventer
  Karel de Grotelaan 154 Deventer
  Karel de Grotelaan 154 Deventer
  Karel de Grotelaan 154 Deventer
  Karel de Grotelaan 154 Deventer
  Karel de Grotelaan 154 Deventer
  Karel de Grotelaan 154 Deventer
  Karel de Grotelaan 154 Deventer
  Karel de Grotelaan 154 Deventer
  Karel de Grotelaan 154 Deventer
  Karel de Grotelaan 154 Deventer
  Karel de Grotelaan 154 Deventer
  Karel de Grotelaan 154 Deventer
  Karel de Grotelaan 154 Deventer
  Karel de Grotelaan 154 Deventer
  Karel de Grotelaan 154 Deventer
  Karel de Grotelaan 154 Deventer
  Karel de Grotelaan 154 Deventer
  Karel de Grotelaan 154 Deventer
  Karel de Grotelaan 154 Deventer
  Karel de Grotelaan 154 Deventer
  Karel de Grotelaan 154 Deventer
  Karel de Grotelaan 154 Deventer
  Karel de Grotelaan 154 Deventer

Bezichtiging aanvragen Karel de Grotelaan 154

Vergelijkbaar aanbod Deventer

Brinkgreverweg Verkocht
DEVENTER
Brinkgreverweg 86
   € 259.000,- k.k.
Details
Graaf van Burenstraat Verkocht
DEVENTER
Graaf van Burenstraat 2 F 10
   € 275.000,- k.k.
Details

Wat is jouw huis waard?

Gratis rapport iQ Makelaars Leadtool