BERGEN (NH), Kloosterlaan 37
 
  • Type2-onder-1-kap
  • Woonoppervlakte176 m²
  • Perceelgrootte525 m²
  • Slaapkamers4
  • GarageJa
  • Aangeboden sinds20-03-2023
  • Beschikbaarheid Per direct
Bezichtiging aanvragen

Omschrijving Kloosterlaan 37

Op een unieke, enigszins verscholen plek, omringd door groen en water, staat deze stijlvolle villa die de mogelijkheid biedt om gelijkvloers te wonen. Je vindt deze woning in een van de kleine zijstraten van de Kloosterlaan, waardoor rust en privacy gewaarborgd zijn. In totaal zijn er vier slaapkamers en twee badkamers, waaronder een ruime tweepersoonskamer en badkamer op de begane grond. De oprit, inpandige garage en sfeervolle tuin maken het plaatje meer dan compleet.
Zoveel rust en groen en toch het centrum op loopafstand. De Kloosterlaan is niet voor niets al vele jaren een zeer populaire plek om te wonen. Bergen is bekend vanwege de goede voorzieningen, waaronder vele restaurants en speciaalzaken. Ook de supermarkt, sportfaciliteiten, het bos en de duinen zijn op loopafstand. En wil je naar een van de strandpaviljoens in Bergen aan Zee? Na een fijne fietstocht van zes kilometer sta je al met de voeten in het zand…

Indeling:
Begane grond:
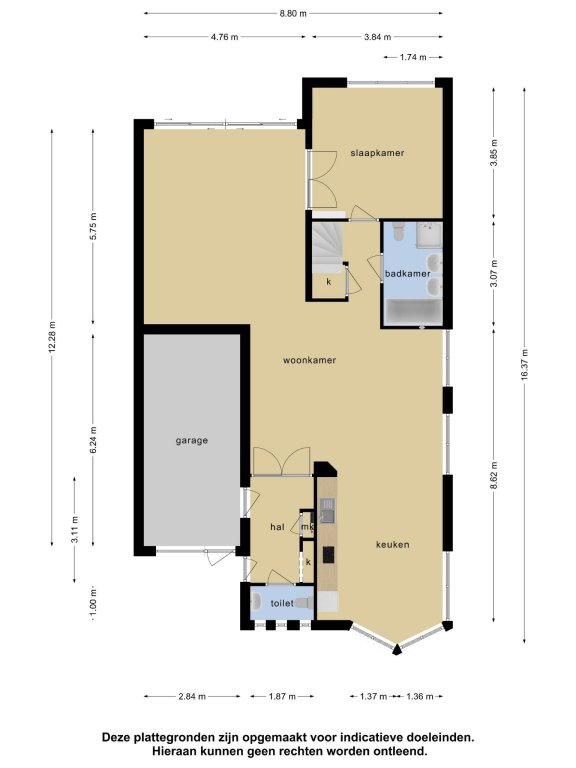
Bewonder de architectuur van deze villa en loop naar de overdekte entree. De hal heeft stijlvolle, dubbele deuren naar de woonkamer en naast de meterkast is de garderobenis. Verder zijn vanuit de hal de inpandige garage en het gastentoilet met fonteintje te bereiken.
Niet alleen in de hal, maar op bijna de hele begane grond ligt een fraaie houten vloer. De woonkamer heeft een speelse indeling met een grote zithoek bij de brede schuifpui en het eetgedeelte grenst aan de keuken. In de keuken zie je ramen aan twee zijden, waaronder die in de ruime erker. De moderne wandopstelling heeft een granieten aanrechtblad en achterwand, mooie verlichting en alle benodigde apparatuur is ingebouwd: een inductie kookplaat, afzuigkap, combi-oven/magnetron, vaatwasser en een koel-/vriescombinatie.
Gelijkvloers wonen is mogelijk dankzij de slaap- en badkamer op de begane grond. Vanuit de slaapkamer is er mooi uitzicht op de tuin en de naastgelegen badkamer is ingedeeld met een ligbad, aparte douche, toilet en twee wastafels. Kies je voor slapen op de eerste verdieping, dan kun je in deze benedenruimte bijvoorbeeld vanuit huis werken of een leuke speel/gameruimte voor de kinderen creëren.

Eerste verdieping:
Vanaf de overloop zijn drie slaapkamers, een berging, wasruimte en de tweede badkamer te bereiken. Deze badkamer is ingedeeld met een ligbad, aparte douche, toilet en een wastafelmeubel.
Ook op deze verdieping vind je grotendeels houten vloeren. Aan de achterzijde is de sfeervolle, primaire slaapkamer met een dakkapel en een op maat gemaakte kastenwand. Slaapkamer II en III op deze etage zijn goed in te delen met een bed, bureau en een kast.
Niet alleen in de berging, inpandige garage en wasruimte kun je veel spullen opbergen, ook in de schuinten van het dak is veel praktische bergruimte.

Exterieur:
Deze mooie villa staat op een perceel van 525 m² met een ruime tuin op het zuidoosten en een groenstrook grenzend aan het water. Op het grote terras aan de achterzijde is genoeg ruimte voor een tafel met stoelen en een loungeset. Aan de voorzijde is parkeergelegenheid op eigen terrein, deels voor de garage. Al met al is dit een perfect huis voor een gezin, om vanuit huis te werken en waar je gelijkvloers kunt wonen. Staan jouw meubels straks op de Kloosterlaan 37?

Bijzonderheden:
- Vier slaapkamers en twee badkamers;
- Gelijkvloers wonen of wonen met werken combineren;
- Parkeergelegenheid op eigen terrein;
- Mooi perceel met optimale privacy;
- De villa heeft dak-, spouwmuur- en vloerisolatie;
- Hardhouten kozijnen, voorzien van isolerende beglazing;
- Energielabel B

Meer
Neem contact op

iQ Makelaars Hoofdkantoor
Martin Houtzager
Roessinghsbleekweg 21,
7522 AH Enschede

T  088 - 700 99 99
E  info@iQMakelaars.nl

Specificaties

Bouw

  • Soort Woningen
  • Type 2-onder-1-kap
  • Bouwjaar 1992

Algemeen

  • Beschikbaarheid Per direct

Energie

  • Energielabel B
  • CV-ketel warmwater Ja
  • Aanwezige isolatie Dakisolatie, muurisolatie, vloerisolatie

Indeling

  • Slaapkamers 4
  • Garage Ja
  • Tuin Ja
  • Tuin ligging Zuidoost

Voorziening

  • Parkeerplaats Ja

Afmetingen

  • Woonoppervlakte 176 m²
  • Perceeloppervlakte 525 m²
  • Woninginhoud 687 m³
  • Tuin oppervlakte 250 m²
Meer
  • Wijk en buurt
    Conincx
  • Bevolking
    Gem. grootte huishouden
    1.8 personen
  • Detailhandel
    Grote supermarkt
    1.4km
  • Inkomen
    Gem. inkomen
    €0.000 p/j
  • Vervoer
    Station
    4.4km
  • Wonen
    Gem. woningwaarde
    €269.000
    Koopwoningen
    30%

Schrijf je in voor onze woningmail, actueel aanbod!

Afbeeldingen

  Kloosterlaan 37 BERGEN (NH)
  Kloosterlaan 37 BERGEN (NH)
  Kloosterlaan 37 BERGEN (NH)
  Kloosterlaan 37 BERGEN (NH)
  Kloosterlaan 37 BERGEN (NH)
  Kloosterlaan 37 BERGEN (NH)
  Kloosterlaan 37 BERGEN (NH)
  Kloosterlaan 37 BERGEN (NH)
  Kloosterlaan 37 BERGEN (NH)
  Kloosterlaan 37 BERGEN (NH)
  Kloosterlaan 37 BERGEN (NH)
  Kloosterlaan 37 BERGEN (NH)
  Kloosterlaan 37 BERGEN (NH)
  Kloosterlaan 37 BERGEN (NH)
  Kloosterlaan 37 BERGEN (NH)
  Kloosterlaan 37 BERGEN (NH)
  Kloosterlaan 37 BERGEN (NH)
  Kloosterlaan 37 BERGEN (NH)
  Kloosterlaan 37 BERGEN (NH)
  Kloosterlaan 37 BERGEN (NH)
  Kloosterlaan 37 BERGEN (NH)
  Kloosterlaan 37 BERGEN (NH)
  Kloosterlaan 37 BERGEN (NH)
  Kloosterlaan 37 BERGEN (NH)
  Kloosterlaan 37 BERGEN (NH)
  Kloosterlaan 37 BERGEN (NH)
  Kloosterlaan 37 BERGEN (NH)
  Kloosterlaan 37 BERGEN (NH)
  Kloosterlaan 37 BERGEN (NH)
  Kloosterlaan 37 BERGEN (NH)
  Kloosterlaan 37 BERGEN (NH)
  Kloosterlaan 37 BERGEN (NH)
  Kloosterlaan 37 BERGEN (NH)
  Kloosterlaan 37 BERGEN (NH)
  Kloosterlaan 37 BERGEN (NH)
  Kloosterlaan 37 BERGEN (NH)
  Kloosterlaan 37 BERGEN (NH)
  Kloosterlaan 37 BERGEN (NH)
  Kloosterlaan 37 BERGEN (NH)
  Kloosterlaan 37 BERGEN (NH)

Plattegrond

  Plattegrond Kloosterlaan 37 BERGEN (NH)
  Plattegrond Kloosterlaan 37 BERGEN (NH)

Bezichtiging aanvragen Kloosterlaan 37

Wat is jouw huis waard?

Gratis rapport iQ Makelaars Leadtool