Apeldoorn, Zanderijweg 96
 
  • TypeVrijstaand
  • Woonoppervlakte133 m²
  • Perceelgrootte423 m²
  • Slaapkamers3
  • Aangeboden sinds06-03-2026
  • Beschikbaarheid In overleg
Bezichtiging aanvragen

Omschrijving Zanderijweg 96

Zanderijweg 96, 7312 LL Apeldoorn-West

Rustig gelegen vrijstaand woonhuis met een grote extra kamer op de begane grond, zeer geschikt als slaapkamer, en een multifunctioneel bijgebouw dat ideaal is voor werken aan huis, mantelzorg of een inwonend kind. Kortom: een woning met veel flexibiliteit en potentie.

Wonen met ruimte en flexibiliteit

Deze charmante vrijstaande woning is gelegen in een rustige straat in het geliefde Apeldoorn West en biedt verrassend veel ruimte, zowel binnen als buiten. Dankzij de praktische indeling is slapen op de begane grond mogelijk en is de woning geschikt voor diverse woon- en werkvormen.

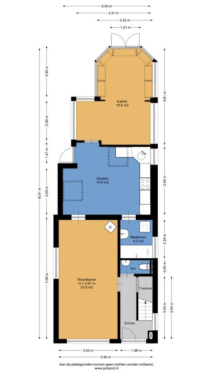
Via de entree kom je in de hal met toilet. De lichte woonkamer beschikt over een houtkachel en grote raampartijen, die zorgen voor een prettige lichtinval. Aansluitend bevindt zich de royale woonkeuken, een fijne plek voor kookliefhebbers en gezellige etentjes.

Op de begane grond is daarnaast een extra ruimte aanwezig, uitstekend te gebruiken als kantoor aan huis, slaapkamer, extra woonkamer of hobbyruimte. De badkamer op de begane grond is voorzien van een ligbad/douche en een wastafel, wat gelijkvloers wonen comfortabel maakt.

Verdieping & zolder

Op de eerste verdieping bevinden zich een tweede toilet en twee riante slaapkamers.
Via een vlizotrap is de ruime zolderkamer bereikbaar. Hier bestaat de mogelijkheid om een vaste trap te realiseren, waarmee eenvoudig een extra slaap- of werkkamer kan worden gecreëerd.

Multifunctioneel bijgebouw – wonen, werken of mantelzorg

Achter op het perceel staat een groot, verwarmd en geïsoleerd bijgebouw dat werkelijk multifunctioneel is. Het bijgebouw beschikt over een ruime woon-/werkkamer en een vaste trap naar een entresolverdieping, welke uitstekend te gebruiken is als slaapvertrek. Hierdoor is het bijgebouw zeer geschikt voor mantelzorg, een inwonend kind, een praktijk of kantoor aan huis, of als gastenverblijf.

Buitenruimte

De woning staat op een ruime kavel met een fijne tuin. Daarnaast is er een extra houten schuur met veranda, ideaal voor opslag, hobby’s of om heerlijk buiten te zitten.

Kenmerken:

Woonhuis 111m2 & Bijgebouw 22m2 plus verdieping
Vrijstaand woonhuis (bouwjaar 1931)
Gelegen in Apeldoorn West, rustige straat
Perceeloppervlakte ca. 423 m²
Parkeren op eigen terrein
Slapen en badkamer op de begane grond
Lichte woonkamer met houtkachel
Royale woonkeuken
Extra kamer op de begane grond (slaapkamer/kantoor/hobby)
Twee riante slaapkamers op de verdieping
Mogelijkheid vaste trap naar zolder (extra slaapkamer)
Groot multifunctioneel bijgebouw, verwarmd en geïsoleerd met verdieping


Vraagprijs € 575.000,- k.k.
Aanvaarding in overleg

Meer
Neem contact op

Loolaan 31 A
7314 AB Apeldoorn

T  055 - 760 1777
E  Apeldoorn@iQMakelaars.nl

Specificaties

Bouw

  • Soort Woningen
  • Type Vrijstaand
  • Bouwjaar 1931

Algemeen

  • Beschikbaarheid In overleg

Energie

  • Energielabel E
  • CV-ketel eigendom Ja
  • CV-ketel brandstof Gas
  • CV-ketel bouwjaar 2017

Indeling

  • Slaapkamers 3
  • Tuin Ja
  • Tuin ligging South

Afmetingen

  • Woonoppervlakte 133 m²
  • Perceeloppervlakte 423 m²
  • Woninginhoud 400 m³
  • Tuin oppervlakte 220 m²
Meer

Schrijf je in voor onze woningmail, actueel aanbod!

Bezichtiging aanvragen Zanderijweg 96

Vergelijkbaar aanbod Apeldoorn

Middellaan Verkocht
APELDOORN
Middellaan 15
   € 575.000,- k.k.
Details
Toermalijnstraat Verkocht
APELDOORN
Toermalijnstraat 1
   € 575.000,- k.k.
Details
De Boomgaard
Apeldoorn
De Boomgaard 33
   € 585.000,- k.k.
Details

Wat is jouw huis waard?

Gratis rapport iQ Makelaars Leadtool