Apeldoorn, Tienwoningenweg 18
 
  • TypeVrijstaand
  • Woonoppervlakte91 m²
  • Perceelgrootte445 m²
  • Slaapkamers4
  • GarageJa
  • Aangeboden sinds13-12-2025
  • Beschikbaarheid In overleg
Bezichtiging aanvragen

Omschrijving Tienwoningenweg 18

TIENWONINGENWEG 18 APELDOORN

Op een mooie en gewilde locatie gelegen, karakteristieke vrijstaande jaren dertig woning met garage en ruime tuin!
U woont hier aan een rustige straat met de privacy van een diepe achtertuin, terwijl u om de hoek de levendige Asselsestraat binnen handbereik heeft. Hier vindt u supermarkten, speciaalzaken en gezellige eetgelegenheden, terwijl u met enkele minuten fietsen al in het centrum en bij het station van Apeldoorn bent.
Daarnaast ligt deze locatie centraal ten opzichte van scholen, zorgaanbieders, sportfaciliteiten, de Veluwse bossen en de uitvalswegen richting de snelwegen. Het is dan ook niet verwonderlijk dat de wijk Driehuizen zo’n geliefde plek is om te wonen.
Achter de keurig onderhouden buitenzijde schuilt een woning die van binnen uitnodigt tot een frisse, eigentijdse herinrichting—en dankzij de prima uitbouwmogelijkheden biedt zij volop ruimte om uw droomwoning volledig naar eigen inzicht vorm te geven.
Indeling:
Begane grond: entree/hal, ruime kelder, toilet en de trap naar de eerste verdieping. Ruime woonkamer met erker en voorzien van een massief houten vloer, een praktische kantoor/werkkamer met toegang tot de eerste badkamer met wasmachine aansluiting. Keuken met diverse apparatuur en aansluitend de bijkeuken met vloerverwarming en de deur naar de royale tuin.
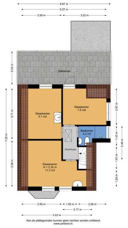
1e verdieping: overloop met toegang naar de drie slaapkamers en de tweede badkamer met tweede toilet. Aan de voorzijde ligt de ruime hoofdslaapkamer met wastafel en aan de achterzijde de twee andere slaapkamers, waarvan één met wastafel. De andere heeft een dakkapel en biedt toegang tot het plat dak.
2e verdieping: via een vlizotrap bereikbare vliering met de c.v. opstelling en veel bergruimte.
De royale achtertuin heeft, omdat er geen achtergelegen woningen zijn, volop privacy. Naast de stenen garage (met elektrische garagedeur) zijn er nog extra bergingen en een rietgedekt prieel. In de tuin zijn meerdere fruitbomen te vinden, waaronder diverse appelsoorten, peer, perzik, pruim, kers, druif en diverse bessenstruiken.

Overige kenmerken:
• Karakteristieke jaren dertig woning met fraaie glas in lood ramen
• Zeer degelijk gebouwd met mooi siermetselwerk in de gevels
• Woonoppervlakte: 92 m2
• Perceeloppervlakte: 445 m2
• Bouwjaar: 1929
• Energielabel: D
• 8 zonnepanelen
• Muurisolatie
• Beneden grotendeels dubbel glas en triple glas
• Op de eerste verdieping geheel enkel glas
• Royale stenen garage met vliering en smeerput

Aanvaarding in overleg




Meer
Neem contact op

Loolaan 31 A
7314 AB Apeldoorn

T  055 - 760 1777
E  Apeldoorn@iQMakelaars.nl

Specificaties

Bouw

  • Soort Woningen
  • Type Vrijstaand
  • Bouwjaar 1929

Algemeen

  • Beschikbaarheid In overleg

Energie

  • Energielabel D
  • CV-ketel eigendom Ja
  • CV-ketel brandstof Gas
  • CV-ketel bouwjaar 2019

Indeling

  • Slaapkamers 4
  • Garage Ja
  • Tuin Ja
  • Tuin ligging South_west

Afmetingen

  • Woonoppervlakte 91 m²
  • Perceeloppervlakte 445 m²
  • Woninginhoud 380 m³
  • Tuin oppervlakte 252 m²
Meer

Schrijf je in voor onze woningmail, actueel aanbod!

Bezichtiging aanvragen Tienwoningenweg 18

Wat is jouw huis waard?

Gratis rapport iQ Makelaars Leadtool