Apeldoorn, Het Verlaat 73
 
  • TypeTussenwoning
  • Woonoppervlakte84 m²
  • Perceelgrootte126 m²
  • Slaapkamers3
  • Aangeboden sinds15-11-2025
  • Beschikbaarheid In overleg
Bezichtiging aanvragen

Omschrijving Het Verlaat 73

HET VERLAAT 73 - APELDOORN

Moderne tussenwoning met energielabel A in kindvriendelijke wijk Osseveld.

In de populaire en kindvriendelijke wijk Osseveld ligt deze verzorgde tussenwoning met energielabel A. De woning is keurig onderhouden, beschikt over drie slaapkamers, een lichte woonkamer met halfopen keuken, een diepe achtertuin met overkapping én een gunstige ligging nabij scholen, winkels en station Apeldoorn-Osseveld.


Indeling:
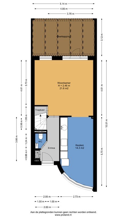
Via de hal, met meterkast, trapopgang naar de eerste verdieping en toilet, bereikt u de woonkamer. De lichte en ruime woonkamer biedt voldoende ruimte voor een comfortabele zithoek en heeft via de achterzijde toegang tot de tuin met overkapping.

De halfopen keuken bevindt zich aan de voorzijde van de woning en is voorzien van een vaatwasser, combi-oven/magnetron en elektrische kookplaat. Er is daarnaast voldoende ruimte voor een eettafel.

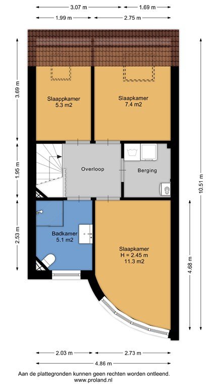
Op de eerste verdieping bevinden zich drie slaapkamers: twee ruime kamers en één kleinere. De badkamer is uitgerust met een ruime douche, wastafel en zwevend toilet. Op deze verdieping is tevens een opbergkast aanwezig met aansluiting voor de wasmachine en de cv-ketel (bouwjaar 2023).

De achtertuin is diep en onderhoudsvriendelijk aangelegd, met direct aan de woonkamer een overkapping waar u beschut kunt zitten. Achterin de tuin bevindt zich een achterom en de houten schuur.

Bewoners worden tevens eigenaar van mandelig achterterrein in Beheer van Vereniging van Eigenaren De Waterkamer waarvoor een maandelijkse bijdrage wordt betaald van € 15,34,- per maand. Uit deze pot wordt tevens het onderhoud van het witte stucwerk betaald.


De wijk Osseveld:

Osseveld is een moderne en groene woonwijk aan de oostkant van Apeldoorn. De wijk staat bekend om haar kindvriendelijke karakter, met diverse basisscholen, speeltuintjes en parkjes op loop- of fietsafstand. Het winkelcentrum ’t Fort met supermarkten en diverse speciaalzaken ligt op korte afstand, evenals station Apeldoorn-Osseveld en meerdere bushaltes. Ook de uitvalswegen richting de A1 en A50 zijn snel bereikbaar, wat de ligging zeer praktisch maakt.


Bijzonderhden;

-Energielabel A

-Bouwjaar 2001

-3 slaapkamers

-CV-ketel uit 2023

-Diepe achtertuin met overkapping en achterom

-Kindvriendelijke ligging in Osseveld

-Nabij scholen, winkels en station Apeldoorn-Osseveld


Vraagprijs €395.000,- k.k.
Aanvaarding: In overleg

Interesse?
Bel 055 – 760 1777 of mail

Wij plannen graag een bezichtiging voor u in!

Meer
Neem contact op

Loolaan 31 A
7314 AB Apeldoorn

T  055 - 760 1777
E  Apeldoorn@iQMakelaars.nl

Specificaties

Bouw

  • Soort Woningen
  • Type Tussenwoning
  • Bouwjaar 2001

Algemeen

  • Beschikbaarheid In overleg

Energie

  • Energielabel A
  • CV-ketel eigendom Ja
  • CV-ketel brandstof Gas
  • CV-ketel bouwjaar 2023

Indeling

  • Slaapkamers 3
  • Tuin Ja
  • Tuin ligging North_west

Afmetingen

  • Woonoppervlakte 84 m²
  • Perceeloppervlakte 126 m²
  • Woninginhoud 288 m³
  • Tuin oppervlakte 65 m²
Meer

Schrijf je in voor onze woningmail, actueel aanbod!

Bezichtiging aanvragen Het Verlaat 73

Vergelijkbaar aanbod Apeldoorn

Boterbloem Verkocht
Apeldoorn
Boterbloem 23
   € 400.000,- k.k.
Details
Parelvissersstraat Verkocht
Apeldoorn
Parelvissersstraat 689
   € 400.000,- k.k.
Details
Schiestraat Verkocht
APELDOORN
Schiestraat 7
   € 400.000,- k.k.
Details

Wat is jouw huis waard?

Gratis rapport iQ Makelaars Leadtool