Amsterdam, Bos en Lommerweg 18 2
 
  In optie
  • TypeAppartement
  • Woonoppervlakte49 m²
  • Slaapkamers2
  • Aangeboden sinds28-03-2026
  • Beschikbaarheid In overleg
Bezichtiging aanvragen

Omschrijving Bos en Lommerweg 18 2

English below:

Woningzoekers opgelet! Wonen in een heerlijk instapklare woning op een unieke, centrale locatie waar het stadsleven volop tot zijn recht komt? Dit is uw kans! Dit karakteristieke, keurig onderhouden en onlangs gerenoveerd appartement is goed ingedeeld, zeer licht door de grote ramen en meet 49m² groot.

Enthousiast geworden voor deze woning? Bel ons voor het maken van een afspraak!

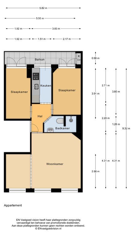
Indeling:
Vanuit een nette entree bereikt u via een verzorgd trappenhuis het appartement op de tweede verdieping. U komt binnen in de centrale hal, die toegang biedt tot verschillende vertrekken. Aan de voorzijde ligt de ruime woonkamer met veel lichtinval en uitzicht op de Bos en Lommerweg. Deze kamer biedt voldoende ruimte voor het creëren van een gezellige zithoek met grote eettafel.
De keurige badkamer is voorzien van een hangcloset, wastafel en ruime inloop douche met een ingebouwd zitje en….s‘ morgens warme voeten door de elektrische vloerverwarming!

Aan de achterzijde bevinden zich de twee slaapkamers, met de strakke keuken in het midden gesitueerd. De keuken is voorzien diverse inbouwapparatuur zoals een koelkast, vaatwasmachine ( Bosch), inductie kookplaat ( 2025) en afzuigkap. Ook de wasmachine/droger (2025) is ingebouwd en netjes weggewerkt.
Alle vertrekken aan de achterzijde bieden toegang tot het balkon, gelegen op het zonnige zuidwesten. Tot slot beschikt het appartement nog over een eigen berging van 7m² op de begane grond.

Omgeving: Gelegen in het levendige stadsdeel Bos en Lommer, biedt deze locatie een ideale combinatie van stadsleven en gemak. De Bos en Lommerweg is een van de belangrijkste verkeersaders van de wijk, met een goede mix van woon-, werk- en commerciële voorzieningen in de directe omgeving. In de buurt vindt u diverse winkels, gezellige cafés, restaurants en sportfaciliteiten, wat de wijk een dynamisch karakter geeft. Op korte afstand liggen diverse parken, zoals het Westerpark, waar u kunt genieten van groen en rust. Dit biedt de perfecte balans tussen stedelijke drukte en natuur. In de directe omgeving vindt u tevens ambachtelijke bakkers, supermarkten en culturele hotspots zoals het Mozaïek Theater en de Westergasfabriek. Dankzij de nabijheid van Station Sloterdijk, met meerdere tram- en busverbindingen en de Ring A10, is de bereikbaarheid uitstekend.

Erfpacht: De woning is gelegen op afgekochte erfpacht t/m 16-09-2056. De Algemene Bepalingen van voortdurende erfpacht 1994 zijn van toepassing. Grondeigenaar is de gemeente Amsterdam.

Bijzonderheden:
- Turn-key
- Gerenoveerd in 2022 t/m 2025
- 2 goede slaapkamers
- Ruim zonnig balkon
- Moderne nieuwe keuken en badkamer
- Nieuwe design radiatoren
- Nieuwe CV ketel (2026)
- Energielabel D
- Berging op de begane grond
- Woonoppervlakte (NEN2580) 49m²
- Veel parkeerplekken voor de deur
- Professioneel VvE-beheer via VvE Solebaystraat (€ 216,00 per maand)
- Erfpacht afgekocht t/m 16-09-2056.
- Eigenaar heeft gebruik gemaakt van de gunstige overstap regeling.
Canon zal na 2056, € 356,40 bedragen.

Kortom:
Een gezellig, instap klaar gerenoveerd appartement met twee uitstekende slaapkamers, nieuwe badkamer en keuken. Het balkon op het zuidwesten maakt deze woning af en nodigt u uit voor een bezichtiging.
Mis deze unieke kans niet om te wonen in een karakteristieke bovenwoning op de 2e etage in een van de meest gezellige buurten van Amsterdam.

Neem vandaag nog contact met ons op voor een bezichtiging en laat je verrassen door alles wat deze woning te bieden heeft!
Enthousiast? Wij leiden je graag rond tijdens een persoonlijke bezichtiging! Plan een afspraak via Funda of neem contact op met iQ Makelaar Jarl Brouwer 020-7220808 of per Whatsapp (0654702543).

Deze informatie is door ons met de nodige zorgvuldigheid samengesteld. Onzerzijds wordt echter geen enkele aansprakelijkheid aanvaard voor enige onvolledigheid, onjuistheid of anderszins, dan wel de gevolgen daarvan. Alle opgegeven maten en oppervlakten zijn indicatief. Indien u specifieke wensen heeft omtrent de woning, adviseren wij u deze tijdig kenbaar te maken aan uw makelaar en hiernaar zelfstandig onderzoek te (laten) doen. Indien u geen deskundige vertegenwoordiger inschakelt, acht u zich volgens de wet deskundige genoeg om alle zaken die van belang zijn te kunnen overzien.
---------------------------------------------------------------------------------------------------------------------------------------------------------------------------------------------------------------------------------------------

English:

Attention home seekers! Living in a wonderfully move-in ready home in a unique, central location where city life is in full swing? This is your chance! This characteristic, well-maintained, and recently renovated apartment is well laid out, very bright due to the large windows, and measures 49m². Excited about this home? Call us to make an appointment! Layout: From a neat entrance, you can reach the apartment on the second floor via a well-kept staircase. You enter the central hall, which provides access to various rooms. At the front is the spacious living room with plenty of light and a view of the Bos en Lommerweg. This room offers ample space to create a cozy seating area with a large dining table. The neat bathroom is equipped with a wall-mounted toilet, sink, and spacious walk-in shower with a built-in seat and… warm feet in the morning thanks to the electric underfloor heating!

At the rear are the two bedrooms, with the sleek kitchen situated in the middle. The kitchen is equipped with various built-in appliances such as a refrigerator, dishwasher (Bosch), induction hob (2025), and extractor hood. The washer/dryer (2025) is also built-in and neatly concealed. All rooms at the rear provide access to the balcony, located on the sunny southwest. Finally, the apartment also has its own storage room of 7m² on the ground floor. Location: Located in the lively Bos en Lommer district, this location offers an ideal combination of city life and convenience. The Bos en Lommerweg is one of the main roads in the neighborhood, with a good mix of residential, work, and commercial facilities in the immediate vicinity. Nearby you will find various shops, cozy cafés, restaurants, and sports facilities, giving the neighborhood a dynamic character.

Within a short distance are various parks, such as Westerpark, where you can enjoy greenery and tranquility. This offers the perfect balance between urban hustle and nature. In the immediate vicinity, you will also find artisanal bakeries, supermarkets, and cultural hotspots such as the Mozaïek Theater and the Westergasfabriek. Thanks to the proximity to Sloterdijk Station, with multiple tram and bus connections and the A10 ring road, accessibility is excellent.
Leasehold: The property is located on a redeemed leasehold until 16-09-2056. The General Provisions of Continuous Leasehold 1994 apply. Landowner is the municipality of Amsterdam.
Details:
- Turn-key
- Renovated from 2022 to 2025
- 2 good bedrooms
- Spacious sunny balcony
- Modern new kitchen and bathroom
- New designer radiators
- New central heating boiler (2026)
- Energy label D
- Storage on the ground floor
- Living area (NEN2580) 49m²
- Plenty of parking spaces in front of the door.
- Professional HOA management via VvE Solebaystraat (€ 216.00 per month)
- Leasehold redeemed until 16-09-2056.
- Owner has made use of the favorable transition scheme.
Canon will be € 356.40 after 2056.

In short:
A cozy, move-in ready renovated apartment with two excellent bedrooms, a new bathroom, and kitchen. The southwest-facing balcony completes this home and invites you for a viewing.
Don't miss this unique opportunity to live in a characteristic upper apartment on the 2nd floor in one of the most pleasant neighborhoods of Amsterdam.

Contact us today for a viewing and be amazed by everything this home has to offer!
Excited? We would be happy to show you around during a personal viewing! Schedule an appointment via Funda or contact iQ Makelaar Jarl Brouwer at 020-7220808 or via WhatsApp (0654702543).

This information has been compiled by us with the necessary care. However, we accept no liability for any incompleteness, inaccuracy, or otherwise, or the consequences thereof. All stated dimensions and areas are indicative. If you have specific wishes regarding the property, we advise you to communicate them to your realtor in a timely manner and to conduct (or have conducted) independent research on them. If you do not engage a professional representative, you consider yourself, according to the law, sufficiently knowledgeable to be able to oversee all matters of importance.


Meer
Neem contact op

iQ Makelaars Amsterdam
Waalstraat 15
1078 BP Amsterdam

T  020 - 722 0808
E  jarlb@iqmakelaars.nl

Specificaties

Bouw

  • Soort Woningen
  • Type Appartement
  • Bouwjaar 1934

Algemeen

  • Beschikbaarheid In overleg

Energie

  • Energielabel D
  • CV-ketel eigendom Ja
  • CV-ketel brandstof Gas
  • CV-ketel bouwjaar 2026

Indeling

  • Slaapkamers 2

Afmetingen

  • Woonoppervlakte 49 m²
  • Woninginhoud 160 m³
Meer

Schrijf je in voor onze woningmail, actueel aanbod!

Afbeeldingen

  Bos en Lommerweg 18 2 Amsterdam
  Bos en Lommerweg 18 2 Amsterdam
  Bos en Lommerweg 18 2 Amsterdam
  Bos en Lommerweg 18 2 Amsterdam
  Bos en Lommerweg 18 2 Amsterdam
  Bos en Lommerweg 18 2 Amsterdam
  Bos en Lommerweg 18 2 Amsterdam
  Bos en Lommerweg 18 2 Amsterdam
  Bos en Lommerweg 18 2 Amsterdam
  Bos en Lommerweg 18 2 Amsterdam
  Bos en Lommerweg 18 2 Amsterdam
  Bos en Lommerweg 18 2 Amsterdam
  Bos en Lommerweg 18 2 Amsterdam
  Bos en Lommerweg 18 2 Amsterdam
  Bos en Lommerweg 18 2 Amsterdam
  Bos en Lommerweg 18 2 Amsterdam
  Bos en Lommerweg 18 2 Amsterdam
  Bos en Lommerweg 18 2 Amsterdam
  Bos en Lommerweg 18 2 Amsterdam
  Bos en Lommerweg 18 2 Amsterdam
  Bos en Lommerweg 18 2 Amsterdam
  Bos en Lommerweg 18 2 Amsterdam
  Bos en Lommerweg 18 2 Amsterdam
  Bos en Lommerweg 18 2 Amsterdam

Bezichtiging aanvragen Bos en Lommerweg 18 2

Vergelijkbaar aanbod Amsterdam

L.J.M. Beelstraat Verkocht
AMSTERDAM
L.J.M. Beelstraat 21
   € 425.000,- k.k.
Details
Loenermark In optie
Amsterdam
Loenermark 147
   € 425.000,- k.k.
Details

Wat is jouw huis waard?

Gratis rapport iQ Makelaars Leadtool