ALMERE, Tenerifestraat 28
 
  • TypeVrijstaand
  • Woonoppervlakte162 m²
  • Perceelgrootte330 m²
  • Slaapkamers4
  • GarageJa
  • Aangeboden sinds23-12-2022
  • Beschikbaarheid In overleg
Bezichtiging aanvragen

Omschrijving Tenerifestraat 28

Wat een bijzondere vrijstaande ruime watervilla van 162m2 en door de extra serre nog eens 35m2 extra!
• 162 m2 plus 35m2 serre.
• Zeer grote garage met oprit voor 2 auto’s.
• 4 slaapkamers, waarvan een met walk in closet.
• Luxe badkamer uit 2016
• Plafondhoogte in de woonkamer van 3.45, met zicht op het water.
• Woning om zo te betrekken!

Wij mogen deze bijzondere vrijstaande watervilla aanbieden met een scherpe vraagprijs
van € 600.000,-

Kom aan en parkeer fijn je auto op de brede oprit.

Deze woning betreed je via de enorme serre, hierdoor kan je bijna het gehele jaar heerlijk huiselijk buiten zitten. Wat een ruimte biedt deze serre, maar liefst 35m2.
Kom binnen in de hal, hierin bevindt zich de meterkast en vernieuwd toilet uit 2020.

De keuken is uit 2016, maar in 2020 zijn alle kastdeuren nog vernieuwd. Deze is voorzien van alle gemakken, zoals 5 pits gasstel met wok brander. Voldoende werk en opbergruimte.
Er is voldoende ruimte voor een grote eettafel.
De woonkamer is zeer ruim en licht en door het enorme hoge plafond van 3.45 dit allen met een mooi zicht op het water.
De woonkamer is op een lager niveau. De gehele begane vloer heeft een hoogwaardig laminaat.
En dan heeft deze woning nog een enorme serre toegevoegd in 2019 van maar liefst 35m2
Hierdoor kan je bijna het hele jaar nog buiten zitten. Achter deze serre is nog een fijne achtertuin welke direct grenst aan het water. Er is hierdoor voldoende privacy.

De eerste verdieping is licht door het extra patrijsraam welke op de overloop zit.
Hier bevindt zich een enorme slaapkamer met extra zijruimte waar een zitje is gecreëerd en dan als op klap op de vuurpijl een enorme walk in closet. Allen met hetzelfde hoogwaardige laminaat als begane grond.

Loop door naar de prachtige luxe badkamer uit 2016, met dubbele wastafel een enorm los ligbad en een fijne aparte douche met zitje dit allemaal met zeer luxe tegels. Tevens is op deze etage een separaat nieuw toilet uit 2020

Door naar de 2e etage, hier treft je ook weer een enorme slaapkamer aan, de andere slaapkamer dient nu al logeerkamer/sport ruimte de laatste 5e slaapkamer is een fijne werkkamer.
Allen met hetzelfde hoogwaardige laminaat als begane grond.

Er is een fijne grote voortuin met voldoende groen, hier staan ook 2 bergingen en de grote garage met oprit voor 2 auto’s

Wil je een echt groot/ruim vrijstaand huis dat zo te betrekken is, plan dan hier een bezichtiging in, wij nemen ruim de tijd hiervoor.

De woning is ideaal gelegen ten opzichte van de uitvalswegen naar de A6/A27, supermarkt, scholen, winkelcentrum Almere Buiten, NS-/busstation Oostvaarders en natuur- en recreatiegebieden.

Meer
Neem contact op

iQ Makelaars Hoofdkantoor
Michael van Riemsdijk
Roessinghsbleekweg 21,
7522 AH Enschede

T  088 - 700 99 99
E  info@iQMakelaars.nl

Specificaties

Bouw

  • Soort Woningen
  • Type Vrijstaand
  • Bouwjaar 2004

Algemeen

  • Beschikbaarheid In overleg

Energie

  • Energielabel B
  • CV-ketel Combi
  • CV-ketel eigendom Ja
  • CV-ketel brandstof Gas
  • CV-ketel bouwjaar 2016
  • CV-ketel warmwater Ja
  • Aanwezige isolatie Dakisolatie, muurisolatie, vloerisolatie

Indeling

  • Slaapkamers 4
  • Garage Ja
  • Tuin Ja
  • Tuin ligging Zuidoost

Voorziening

  • Parkeerplaats Ja

Afmetingen

  • Woonoppervlakte 162 m²
  • Perceeloppervlakte 330 m²
  • Woninginhoud 561 m³
  • Tuin oppervlakte 173 m²
Meer

Schrijf je in voor onze woningmail, actueel aanbod!

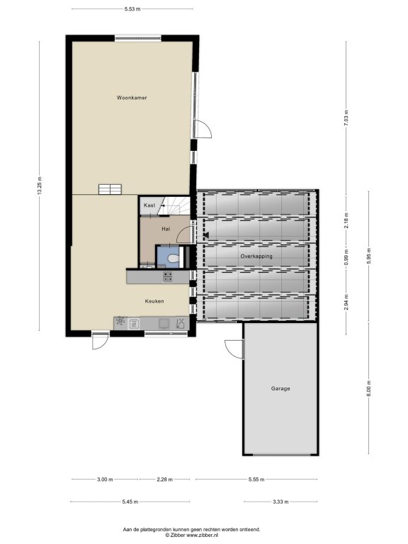
Plattegrond

  Plattegrond Tenerifestraat 28 ALMERE
  Plattegrond Tenerifestraat 28 ALMERE
  Plattegrond Tenerifestraat 28 ALMERE
  Plattegrond Tenerifestraat 28 ALMERE
  Plattegrond Tenerifestraat 28 ALMERE
  Plattegrond Tenerifestraat 28 ALMERE
  Plattegrond Tenerifestraat 28 ALMERE
  Plattegrond Tenerifestraat 28 ALMERE
  Plattegrond Tenerifestraat 28 ALMERE
  Plattegrond Tenerifestraat 28 ALMERE

Bezichtiging aanvragen Tenerifestraat 28

Vergelijkbaar aanbod ALMERE

Charlotte van Pallandtlaa Verkocht
ALMERE
Charlotte van Pallandtlaa 58
   € 595.000,- k.k.
Details
Aletta Jacobsstraat Verkocht
ALMERE
Aletta Jacobsstraat 72
   € 595.000,- k.k.
Details

Wat is jouw huis waard?

Gratis rapport iQ Makelaars Leadtool