ALMERE, Kwartaalstraat 26
 
  • TypeVrijstaand
  • Woonoppervlakte206 m²
  • Perceelgrootte567 m²
  • Slaapkamers4
  • GarageJa
  • Aangeboden sinds19-08-2022
  • Beschikbaarheid In overleg
Bezichtiging aanvragen

Omschrijving Kwartaalstraat 26

Wat een ruimte. Een woonoppervlak van 179 M2 op een ruim perceel van 567m2.

- Energielabel B
- De gehele begane grond is voorzien van een granieten vloer en vloerverwarming.
- Voorzien van een zeer zuinige CV ketel Intergas HR Eco van April 2021.
- Alle 14 radiatoren zijn voorzien van hoogwaardige thermostaatkranen uit 2021.
- 4 slaapkamers, allen voorzien van internet bekabeling.
- De ouderslaapkamer is voorzien van een energiezuinige airco.
- Een ruime zolder met vaste trap, voorzien van een wastafel met thermostaatkraan.
- Zeer groene tuin met hoge bomen en mooie struiken en hagen . Privacy gegarandeerd.
- Rondom voorzien van rolluiken en horren.
- HR Houtkachel.
- Luxe sfeervolle overkapping.
- Zeer rustige buurt. Gelegen aan een brede straat met uitsluitend vrijstaande woningen.

Kortom een hoog wooncomfort en veel ruimte.

Deze woning bieden wij u aan met een bieden vanaf prijs van € 700.000, -

Kom binnen in deze sfeervolle woning.

Hal
Hier bevindt zich de doorgang naar de garage, het toilet, de hardhouten trap naar boven en de toegang tot de woonkamer.

Woonkamer
De woonkamer is ruim, met verschillende zitjes en voorzien van een sfeervolle houtkachel. Er zijn rondom ramen die zorgen voor een panoramisch uitzicht op de tuin. De woning is vanbinnen in 2018 geheel professioneel geschilderd. Dat is goed te zien aan de mooie roetgrijze binnendeuren.

Keuken
De keuken heeft meer dan voldoende werk- en opbergruimte. Voorzien van een AEG inductie kookplaat uit 2019, een combimagnetron, heteluchtoven, afzuigkap en een AEG vaatwasser uit 2019. Uiteraard voorzien van een koel/vries combinatie.

Garage
Inpandige garage te bereiken vanuit de hal. Deze is geheel voorzien van plavuizen. Er is een ruime bijkeuken aanwezig met meer dan voldoende opbergruimte. Voorzien van warm en koud stromend water en een afzuigkap. Totaal ruim 27m2.

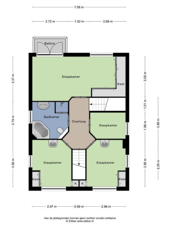
1e Etage
Ruime overloop, kleine slaapkamer die nu in gebruik is als kantoor, 2 mooie middelgrote slaapkamers met eigen wastafel met koud en warm water, tevens voorzien van ruime inbouwkasten. De ouderslaapkamer is ruim en voorzien van een grote inbouwkast. De kamer is voorzien van een energiezuinige airco van Mitsubishi Heavy Industries die geplaatst is in 2020. De badkamer is ruim en zeer netjes onderhouden. Voorzien van een ligbad, hangend toilet, een aparte douche en dubbele wastafel. De gehele etage is voorzien van hoogwaardig Balterio laminaat van het type Quattro Vintage Sandstorm Oak en is gelegd in 2018.

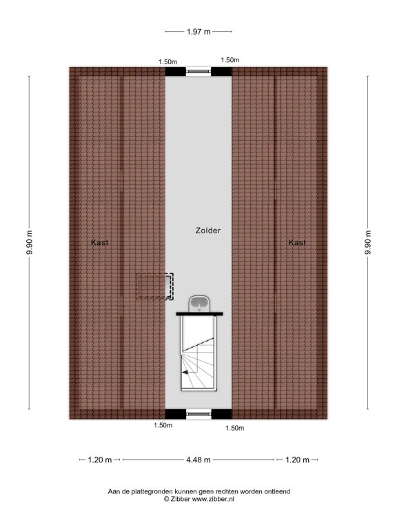
Zolder
Via een vaste trap is de zolder te betreden. Deze is zeer ruim (19m²) . De zolder is voorzien van 2 vaste ramen en een dakraam voor voldoende licht. Tevens voorzien van een wastafel met thermostaatkraan. Er is voldoende slaap mogelijkheid. Achter de knieschotten bevindt zich zeer veel opbergruimte.

Tuin & oprit

De oprit biedt voldoende plaats voor 2 auto’s. Meer parkeermogelijkheid aan de straatkant. In de tuin bevindt zich een ruime schuur. Een fantastische groene tuin met ruimte voor diverse zitjes en veel vaste groene struiken en bomen. Hierdoor is privacy gegarandeerd. Rondom zijn er voldoende zon- en schaduwplekken. Er is tevens een zonnescherm met wind- en zonautomaat aanwezig. De sfeervolle overkapping biedt ruime zitmogelijkheden en is voorzien van bergruimte en een grote houtopslag voor de sfeervolle houtkachel. De woning is gesitueerd in het groenste gedeelte van Almere Buiten, de Seizoenenbuurt, met diverse parken op enkele minuten lopen. De supermarkt is lopend te bereiken in 3 minuten en het openbaar vervoer en de basisschool in 2 minuten. Winkelcentrum Almere-Buiten en het NS-station bevinden zich op 5 minuten fietsen. Tevens zijn de Oostvaardersplassen op loopafstand.

Een zeer goed onderhouden woning van binnen en buiten, nieuwsgierig geworden? Plan dan een bezichtiging bij ons in.

Wij nemen ruim de tijd voor de bezichtiging, zodat u een goed beeld kan krijgen.

Meer
Neem contact op

iQ Makelaars Hoofdkantoor
Michael van Riemsdijk
Roessinghsbleekweg 21,
7522 AH Enschede

T  088 - 700 99 99
E  info@iQMakelaars.nl

Specificaties

Bouw

  • Soort Woningen
  • Type Vrijstaand
  • Bouwjaar 1999

Algemeen

  • Beschikbaarheid In overleg

Energie

  • Energielabel B
  • CV-ketel Combi
  • CV-ketel eigendom Ja
  • CV-ketel brandstof Gas
  • CV-ketel bouwjaar 2021
  • CV-ketel warmwater Ja
  • Aanwezige isolatie Dakisolatie, muurisolatie, glasisolatie

Indeling

  • Slaapkamers 4
  • Garage Ja
  • Tuin Ja
  • Balkon Ja

Voorziening

  • Parkeerplaats Ja
  • Airco Ja

Afmetingen

  • Woonoppervlakte 206 m²
  • Perceeloppervlakte 567 m²
  • Woninginhoud 683 m³
  • Tuin oppervlakte 250 m²
  • Balkon oppervlakte 1 m²
Meer
  • Wijk en buurt
    Seizoenenbuurt
  • Bevolking
    Gem. grootte huishouden
    2.5 personen
  • Detailhandel
    Grote supermarkt
    0.5km
  • Inkomen
    Gem. inkomen
    €0.000 p/j
  • Vervoer
    Station
    6.7km
  • Wonen
    Gem. woningwaarde
    €251.000
    Koopwoningen
    73%

Schrijf je in voor onze woningmail, actueel aanbod!

Plattegrond

  Plattegrond Kwartaalstraat 26 ALMERE
  Plattegrond Kwartaalstraat 26 ALMERE
  Plattegrond Kwartaalstraat 26 ALMERE
  Plattegrond Kwartaalstraat 26 ALMERE
  Plattegrond Kwartaalstraat 26 ALMERE
  Plattegrond Kwartaalstraat 26 ALMERE
  Plattegrond Kwartaalstraat 26 ALMERE
  Plattegrond Kwartaalstraat 26 ALMERE
  Plattegrond Kwartaalstraat 26 ALMERE
  Plattegrond Kwartaalstraat 26 ALMERE

Bezichtiging aanvragen Kwartaalstraat 26

Wat is jouw huis waard?

Gratis rapport iQ Makelaars Leadtool