ALMERE, Jacob van Ruysdaelstraat 148
 
  Verkocht
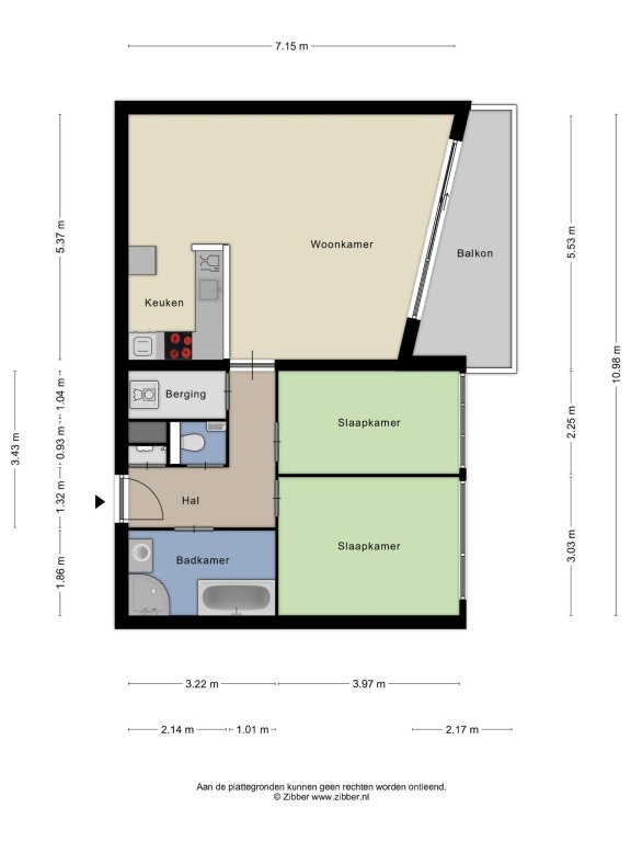
  • TypeFlat (galerij/portiek)
  • Woonoppervlakte75 m²
  • Slaapkamers2
  • Aangeboden sinds06-01-2023
  • Beschikbaarheid In overleg
Bezichtiging aanvragen

Omschrijving Jacob van Ruysdaelstraat 148

• Bovenste etage, geen bovenburen!
• Groot balkon van 9m2 op het zuiden met een geweldig uitzicht!
• 2 slaapkamers, waarvan één met airco.
• Nieuw toilet 2019
• Ruime inpandige berging voor de wasmachine.
• 40 zonnepanelen voor de algemene ruimtes.
• Zaterdag 14 januari te bezichtigen, graag even aanmelden! DEZE DAG IS VOLGEBOEKT! Dinsdag 17 jan. nog enkele plekjes vrij!
LABEL A WONING! KEURING VAN 10 JAN. 2023

Wij mogen je dit keurige ruime appartement aanbieden in het rustige en nette appartementencomplex aan de Jacob van Ruysdaelstraat in Tussen de Vaarten, met een scherpe vraagprijs van € 292.500,-
* Deze woning heeft een nieuw Energielabel A!

Stap uit de lift en direct sta je voor de deur van nummer 148, hoe prettig is dat!
Hal met voldoende ruimte, direct links de meterkast en daarna bevindt zich een net vernieuwd toilet uit 2019.
Rechts is de badkamer met ligbad, een aparte douche, een wastafel met meubel en een spiegel met geïntegreerde verlichting.
De ruime ouderslaapkamer is voorzien van Airco en biedt voldoende ruimte.
De kleinere kamer is een ideale werkkamer en biedt ook nog eens ruimte voor een grote kledingkast.
Deze kamers zijn voorzien van een nette laminaatvloer en zijn beiden erg licht, vanwege de grote raampartijen.

In de hal bevindt zich richting de woonkamer nog een fijn ruime inpandige berging met wasmachine aansluiting en voldoende opbergruimte erg prettig.

Loop door richting de ruime lichte woonkamer met open keuken.
Deze is zeer ruim en door de schuifpui is er voldoende licht. De keuken is voorzien van vaatwasser, oven, koelkast en kookplaat. De hal, woonkamer en keuken zijn voorzien van een grindvloer. In de keuken is deze geseald om vlekken te voorkomen.
Bij de woonkamer hoort een heerlijk breed balkon op het zuiden. Doordat het appartement zich op de 5e etage bevindt, heb je een prachtig uitzicht over de wijk, kunt u genieten van de mooie luchten en heeft het balkon door de opstelling veel privacy.

In de buurt zijn voldoende voorzieningen, zoals supermarkten, horeca en scholen. Ook is er ruim voldoende parkeergelegenheid, openbaar vervoer in de buurt en fiets je zo de stad in. Bovendien zit je zo op de ring richting de A6-A27. Vlakbij het appartementencomplex is er de mogelijkheid voor een kleine wandeling alleen of met bijvoorbeeld de hond.

Nieuwsgierig geworden naar dit fijne appartement, mail ons voor een bezichtiging, wij nemen hier ruim de tijd voor.
Deze woning is ook zaterdag 14 januari te bezichtigen tussen 11:00-13:00 uur, graag even aanmelden hiervoor.

Meer
Neem contact op

iQ Makelaars Hoofdkantoor
Michael van Riemsdijk
Roessinghsbleekweg 21,
7522 AH Enschede

T  088 - 700 99 99
E  info@iQMakelaars.nl

Specificaties

Bouw

  • Soort Woningen
  • Type Flat (galerij/portiek)
  • Bouwjaar 1999

Algemeen

  • Beschikbaarheid In overleg

Energie

  • Energielabel A
  • Stadsverwarming Ja
  • Aanwezige isolatie Dakisolatie, muurisolatie

Indeling

  • Slaapkamers 2

Voorziening

  • Airco Ja

Afmetingen

  • Woonoppervlakte 75 m²
  • Woninginhoud 228 m³
Meer
  • Wijk en buurt
    Tussen de Vaarten noord
  • Bevolking
    Gem. grootte huishouden
    2.5 personen
  • Detailhandel
    Grote supermarkt
    0.6km
  • Inkomen
    Gem. inkomen
    €0.000 p/j
  • Vervoer
    Station
    3.3km
  • Wonen
    Gem. woningwaarde
    €234.000
    Koopwoningen
    62%

Schrijf je in voor onze woningmail, actueel aanbod!

Afbeeldingen

  Jacob van Ruysdaelstraat 148 ALMERE
  Jacob van Ruysdaelstraat 148 ALMERE
  Jacob van Ruysdaelstraat 148 ALMERE
  Jacob van Ruysdaelstraat 148 ALMERE
  Jacob van Ruysdaelstraat 148 ALMERE
  Jacob van Ruysdaelstraat 148 ALMERE
  Jacob van Ruysdaelstraat 148 ALMERE
  Jacob van Ruysdaelstraat 148 ALMERE
  Jacob van Ruysdaelstraat 148 ALMERE
  Jacob van Ruysdaelstraat 148 ALMERE
  Jacob van Ruysdaelstraat 148 ALMERE
  Jacob van Ruysdaelstraat 148 ALMERE
  Jacob van Ruysdaelstraat 148 ALMERE
  Jacob van Ruysdaelstraat 148 ALMERE
  Jacob van Ruysdaelstraat 148 ALMERE
  Jacob van Ruysdaelstraat 148 ALMERE
  Jacob van Ruysdaelstraat 148 ALMERE
  Jacob van Ruysdaelstraat 148 ALMERE
  Jacob van Ruysdaelstraat 148 ALMERE
  Jacob van Ruysdaelstraat 148 ALMERE
  Jacob van Ruysdaelstraat 148 ALMERE
  Jacob van Ruysdaelstraat 148 ALMERE
  Jacob van Ruysdaelstraat 148 ALMERE
  Jacob van Ruysdaelstraat 148 ALMERE
  Jacob van Ruysdaelstraat 148 ALMERE
  Jacob van Ruysdaelstraat 148 ALMERE
  Jacob van Ruysdaelstraat 148 ALMERE
  Jacob van Ruysdaelstraat 148 ALMERE
  Jacob van Ruysdaelstraat 148 ALMERE

Plattegrond

  Plattegrond Jacob van Ruysdaelstraat 148 ALMERE
  Plattegrond Jacob van Ruysdaelstraat 148 ALMERE
  Plattegrond Jacob van Ruysdaelstraat 148 ALMERE
  Plattegrond Jacob van Ruysdaelstraat 148 ALMERE

Bezichtiging aanvragen Jacob van Ruysdaelstraat 148

Vergelijkbaar aanbod ALMERE

C. Outshoornstraat Verkocht
ALMERE
C. Outshoornstraat 47
   € 290.000,- k.k.
Details
Frans Pietstraat Verkocht
ALMERE
Frans Pietstraat 12
   € 297.500,- k.k.
Details
Spanjehof Verkocht
ALMERE
Spanjehof 14
   € 285.000,- k.k.
Details

Wat is jouw huis waard?

Gratis rapport iQ Makelaars Leadtool