ALMERE, Albrecht Durerweg 85
 
  Verkocht
  • TypeTussenwoning
  • Woonoppervlakte130 m²
  • Perceelgrootte179 m²
  • Slaapkamers2
  • Aangeboden sinds14-07-2022
  • Beschikbaarheid Per direct
Bezichtiging aanvragen

Omschrijving Albrecht Durerweg 85

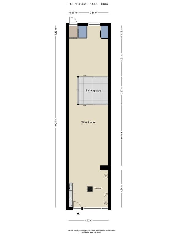
In de populaire wijk Tussen de Vaarten ligt deze ruime en unieke patiowoning van maar liefst 20,5 meter diep!
Deze levensloopbestendige woning bieden wij aan met een bieden vanaf prijs van € 392.500,-

- Slaapkamer met badkamer of geschikt als praktijkruimte op de begane grond.
- Patio en achtertuin
- 130m2 woonoppervlakte, waarvan 80m2 op de begane grond
- Parkeren op eigen terrein
- Vrije ligging
- Energielabel A+
- Gehele begane grond van de woning is begin juli professioneel gespoten! (plafonds en wanden)
- 2 slaapkamers op de verdieping (3 mogelijk)


Indeling
Begane grond:
Entree: Je stapt hier direct de woonkeuken binnen, er is een mooie ruime kast gemaakt voor o.a. je jassen en de meterkast is hier ook in weggewerkt,
De woonkeuken en woonkamer grenst aan de patio welke beschikt over een brede schuifpui.
De patio is gelegen tussen de woonkamer en de slaapkamer en is voorzien van houten vlonder.
De keuken is van alle gemakken voorzien: een vaatwasser, koelkast, vriezer, magnetron, afzuigkap, 4-pits inductie kookplaat op het speelse eiland waaraan je gezellig kunt zitten.
Aangrenzend bevindt zich de zitkamer, welke aansluit aan de patio met een doorloop naar de slaapkamer die weer aansluit op de achtertuin. Deze is tevens voorzien van een kleine frisse badkamer met douche.
De gehele begane grond is voorzien van een siergriend vloer.

Eerste verdieping:
Overloop met lichtkoepel en toegang tot de 2 riante slaapkamers, badkamer met ligbad en aparte douche.
In de technische ruimte zitten de aansluitingen voor de wasmachine-/droger.
Er is zeer ruime slaapkamer aan de voorzijde, deze is ruim 16m2
De slaapkamer aan de achterzijde is nog iets ruimer, te weten 18m2. Deze beschikt over een kastenwand. De gehele verdieping is voorzien van laminaat en de overloop/trappengat is ook recent wit gespoten.


Achtertuin:
De achtertuin is onderhoudsvrij aangelegd met sierbestrating, schuttingen, vrijstaande zeer ruime houten berging en poortdeur met daarachter de eigen parkeerplaats (voor 1 tot 2 auto’s)

Ligging:
Heerlijk centraal gelegen: zowel Almere Buiten als Almere Stad zijn op enkele minuten afstand te bereiken. Ook diverse voorzieningen zoals scholen, supermarkt, gezondheidscentrum en openbaar vervoer bevinden zich in de nabije omgeving. Gunstig gelegen t.o.v. de uitvalswegen A6 en A27.

Bijzonderheden:
- Woning is op de begane grond 20,5 meter lang!
- Parkeren op eigen terrein
- Vrij uitzicht aan de voorzijde en ook achter veel ruimte
- Woning met meerdere mogelijkheden, nu als slaapkamer met badkamer, maar ook zeer geschikt om een praktijkruimte aan huis is te realiseren.
- Energielabel A+
- Schilderwerk uit 2020
- Instapklare woning

De woning is per direct te betrekken.
Wij nodig u graag uit om deze unieke woning te bezichtigingen en laat u verrassen!

Meer
Neem contact op

iQ Makelaars Hoofdkantoor
Michael van Riemsdijk
Roessinghsbleekweg 21,
7522 AH Enschede

T  088 - 700 99 99
E  info@iQMakelaars.nl

Specificaties

Bouw

  • Soort Woningen
  • Type Tussenwoning
  • Bouwjaar 2003

Algemeen

  • Beschikbaarheid Per direct

Energie

  • Energielabel A+
  • Aanwezige isolatie Dakisolatie, muurisolatie, vloerisolatie, glasisolatie

Indeling

  • Slaapkamers 2
  • Tuin Ja
  • Tuin ligging Zuidoost

Voorziening

  • Parkeerplaats Ja
  • Openhaard Ja

Afmetingen

  • Woonoppervlakte 130 m²
  • Perceeloppervlakte 179 m²
  • Woninginhoud 449 m³
  • Tuin oppervlakte 102 m²
Meer
  • Wijk en buurt
    Tussen de Vaarten zuid
  • Bevolking
    Gem. grootte huishouden
    2.5 personen
  • Detailhandel
    Grote supermarkt
    0.7km
  • Inkomen
    Gem. inkomen
    €31.700 p/j
  • Vervoer
    Station
    4.2km
  • Wonen
    Gem. woningwaarde
    €264.000
    Koopwoningen
    74%

Schrijf je in voor onze woningmail, actueel aanbod!

Afbeeldingen

  Albrecht Durerweg 85 ALMERE
  Albrecht Durerweg 85 ALMERE
  Albrecht Durerweg 85 ALMERE
  Albrecht Durerweg 85 ALMERE
  Albrecht Durerweg 85 ALMERE
  Albrecht Durerweg 85 ALMERE
  Albrecht Durerweg 85 ALMERE
  Albrecht Durerweg 85 ALMERE
  Albrecht Durerweg 85 ALMERE
  Albrecht Durerweg 85 ALMERE
  Albrecht Durerweg 85 ALMERE
  Albrecht Durerweg 85 ALMERE
  Albrecht Durerweg 85 ALMERE
  Albrecht Durerweg 85 ALMERE
  Albrecht Durerweg 85 ALMERE
  Albrecht Durerweg 85 ALMERE
  Albrecht Durerweg 85 ALMERE
  Albrecht Durerweg 85 ALMERE
  Albrecht Durerweg 85 ALMERE
  Albrecht Durerweg 85 ALMERE
  Albrecht Durerweg 85 ALMERE
  Albrecht Durerweg 85 ALMERE
  Albrecht Durerweg 85 ALMERE
  Albrecht Durerweg 85 ALMERE
  Albrecht Durerweg 85 ALMERE
  Albrecht Durerweg 85 ALMERE
  Albrecht Durerweg 85 ALMERE
  Albrecht Durerweg 85 ALMERE
  Albrecht Durerweg 85 ALMERE
  Albrecht Durerweg 85 ALMERE

Plattegrond

  Plattegrond Albrecht Durerweg 85 ALMERE
  Plattegrond Albrecht Durerweg 85 ALMERE
  Plattegrond Albrecht Durerweg 85 ALMERE
  Plattegrond Albrecht Durerweg 85 ALMERE
  Plattegrond Albrecht Durerweg 85 ALMERE
  Plattegrond Albrecht Durerweg 85 ALMERE

Bezichtiging aanvragen Albrecht Durerweg 85

Vergelijkbaar aanbod ALMERE

Floris Versterstraat Verkocht
ALMERE
Floris Versterstraat 82
   € 400.000,- k.k.
Details
Morrastraat Verkocht
ALMERE
Morrastraat 2
   € 400.000,- k.k.
Details
Schumannstraat Verkocht
ALMERE
Schumannstraat 15
   € 399.000,- k.k.
Details

Wat is jouw huis waard?

Gratis rapport iQ Makelaars Leadtool