ALMELO, Slangemuur 54
 
  • TypeTussenwoning
  • Woonoppervlakte135 m²
  • Perceelgrootte197 m²
  • Slaapkamers4
  • Aangeboden sinds28-06-2023
  • Beschikbaarheid In overleg
Bezichtiging aanvragen

Omschrijving Slangemuur 54

Wonen op een perfecte plek in het Nijrees. Deze woning is instapklaar èn vrij liggend aan het water! Naast de 3 royale slaapkamers (optie tot 4e)is deze fraaie, instapklare woning beneden aan de achterzijde uitgebouwd. De ligging aan het water maakt dit object compleet.

Indeling:
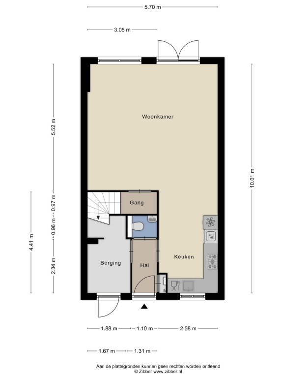
Entree/hal, met toegang tot de inpandige (fietsen)berging, modern toilet met fonteintje. Vanuit de hal kom je in de open keuken met natuurstenen werkblad voorzien van een combi-oven inductie kookplaat, afzuigkap, koelkast en vaatwasser. Vanuit de open keuken loopt u zo de uitgebouwde woonkamer met veel lichtinval in en biedt toegang tot de verzorgde en heerlijk vrij gelegen tuin aan het water.

Eerste verdieping:
De overloop biedt toegang tot drie ruime slaapkamers voorzien van rolluiken en een badkamer met douche, toilet, wastafel en bad met airjets

Tweede verdieping:
De zolder is middels vaste trap te bereiken en beschikt over een wasmachine-/drogeraansluiting en CV-opstelplaats. Het realiseren van een 4e slaapkamer is hier heel goed mogelijk.

Bijzonderheden:
-Bouwjaar 2005;
-Woonoppervlakte 135m²
-Kaveloppervlakte 191 m²;
-Slaapkamers voorzien van rolluiken;
-Kindvriendelijke en rustige woonomgeving;
-Uitstekend geïsoleerd met energielabel A;
-Leuk en modern ingericht;
-Tuin op het zuidoosten met vrij uitzicht aan de achterzijde;
-Gunstige ligging t.o.v. Almelose uitvalswegen, het streekziekenhuis en het Nijreesbos!

Meer
Neem contact op

iQ Makelaars Kantoor Almelo
Danny Mulder
Twentepoort Oost 34
7609 RG Almelo

T  0546 - 305 301
E  Almelo@iQMakelaars.nl

Specificaties

Bouw

  • Soort Woningen
  • Type Tussenwoning
  • Bouwjaar 2005

Algemeen

  • Beschikbaarheid In overleg

Energie

  • Energielabel A
  • CV-ketel Combi
  • CV-ketel eigendom Ja
  • CV-ketel brandstof Gas
  • CV-ketel bouwjaar 2016
  • CV-ketel warmwater Ja
  • Aanwezige isolatie Dakisolatie, spouwisolatie, muurisolatie, vloerisolatie, glasisolatie

Indeling

  • Slaapkamers 4
  • Tuin Ja
  • Tuin ligging Zuidoost

Voorziening

  • Parkeerplaats Ja

Afmetingen

  • Woonoppervlakte 135 m²
  • Perceeloppervlakte 197 m²
  • Woninginhoud 483 m³
  • Tuin oppervlakte 70 m²
Meer

Schrijf je in voor onze woningmail, actueel aanbod!

Afbeeldingen

  Slangemuur 54 ALMELO
  Slangemuur 54 ALMELO
  Slangemuur 54 ALMELO
  Slangemuur 54 ALMELO
  Slangemuur 54 ALMELO
  Slangemuur 54 ALMELO
  Slangemuur 54 ALMELO
  Slangemuur 54 ALMELO
  Slangemuur 54 ALMELO
  Slangemuur 54 ALMELO
  Slangemuur 54 ALMELO
  Slangemuur 54 ALMELO
  Slangemuur 54 ALMELO
  Slangemuur 54 ALMELO
  Slangemuur 54 ALMELO
  Slangemuur 54 ALMELO
  Slangemuur 54 ALMELO
  Slangemuur 54 ALMELO
  Slangemuur 54 ALMELO
  Slangemuur 54 ALMELO
  Slangemuur 54 ALMELO
  Slangemuur 54 ALMELO
  Slangemuur 54 ALMELO
  Slangemuur 54 ALMELO
  Slangemuur 54 ALMELO
  Slangemuur 54 ALMELO
  Slangemuur 54 ALMELO
  Slangemuur 54 ALMELO
  Slangemuur 54 ALMELO
  Slangemuur 54 ALMELO
  Slangemuur 54 ALMELO
  Slangemuur 54 ALMELO
  Slangemuur 54 ALMELO
  Slangemuur 54 ALMELO
  Slangemuur 54 ALMELO
  Slangemuur 54 ALMELO

Plattegrond

  Plattegrond Slangemuur 54 ALMELO
  Plattegrond Slangemuur 54 ALMELO
  Plattegrond Slangemuur 54 ALMELO
  Plattegrond Slangemuur 54 ALMELO
  Plattegrond Slangemuur 54 ALMELO
  Plattegrond Slangemuur 54 ALMELO
  Plattegrond Slangemuur 54 ALMELO
  Plattegrond Slangemuur 54 ALMELO

Bezichtiging aanvragen Slangemuur 54

Vergelijkbaar aanbod ALMELO

Brecklenkamp Verkocht
ALMELO
Brecklenkamp 18
   € 339.500,- k.k.
Details
Aldengoor Verkocht
ALMELO
Aldengoor 13
   € 325.000,- k.k.
Details
Burcht Verkocht
ALMELO
Burcht 62
   € 335.000,- k.k.
Details

Wat is jouw huis waard?

Gratis rapport iQ Makelaars Leadtool