ALMELO, Nieuwstraat 123
 
  • TypeHoekwoning
  • Woonoppervlakte73 m²
  • Perceelgrootte253 m²
  • Slaapkamers3
  • Aangeboden sinds24-03-2026
  • Beschikbaarheid In overleg
Bezichtiging aanvragen

Omschrijving Nieuwstraat 123

Ben jij op zoek naar een knusse starterswoning met een rijke historie en kenmerkende dertiger jaren-charme? Dan moet je zeker een kijkje nemen op Nieuwstraat 123 in ALMELO! Deze hoekwoning uit 1931, gelegen op een rustige weg in een gezellige buurt biedt volop kansen en voordelen voor de nieuwe eigenaar. Met haar 4 kamers, waarvan 3 slaapkamers, voorzien van 4 zonnepanelen, voorzien van airco's, een gezellige leefruimte en een fijn onderhouden tuin. Energielabel is nu nog E maar de verwachting is dat deze hoger uit komt gezien de recente verduurzamingen.

Dit charmante hoekhuis is gebouwd in 1931 en is goed onderhouden. De woning beschikt over 73m2 aan leefruimte en heeft een totale inhoud van 257m3. Uniek aan deze woning is dat het een type "herenhuis" betreft, gepositioneerd op een hoek waardoor je geniet van extra licht en ruimte. De woning is bovendien uitgerust met centrale verwarming op gas en gedeeltelijk dubbel glas.

Wanneer je de woning betreedt, stap je de gezellige woonkamer binnen voorzien van veel ruimte en een airco. De gesloten keuken is voorzien van de nodige apparatuur en biedt genoeg ruimte om een heerlijke maaltijd te bereiden.

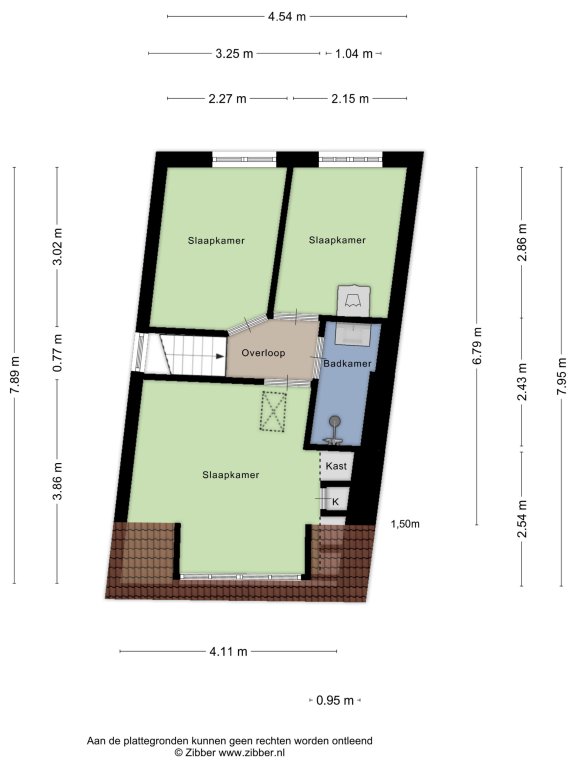
Via de trap kom je op de eerste verdieping met drie slaapkamers. Deze kamers zijn ideaal te gebruiken als slaapkamers, een studiekamer of zelfs een extra opslag. De badkamer is uitgerust met een douche en een wastafelmeubel.

Achter het huis bevindt zich een tuin met een noordelijke oriëntatie. De tuin biedt voldoende ruimte voor een zithoek en zijn er mogelijkheden om te genieten van de warme zomerdagen. Tuin dient gedeeltelijk aangepakt te worden.

Bijzonderheden:
- Woning is voorzien van cv ketel
- Woning is grotendeels voorzien van kunststof kozijnen
- De woning heeft gedeeltelijk dubbel glas
- Voorzien van airco
- Het jaar van bouw is 1931

Heb je zin gekregen om Nieuwstraat 123 met eigen ogen te bekijken? Grijp je kans en plan snel een bezichtiging in! De charme en historie van deze dertiger jaren-woning gecombineerd met de ideale locatie in ALMELO vormen een unieke kans die je niet wilt missen. Wie weet, misschien ben jij wel de nieuwe trotse eigenaar van deze charmante hoekwoning. Neem snel contact met ons op voordat deze kans voorbij gaat.

Meer
Neem contact op

iQ Makelaars Kantoor Almelo
Danny Mulder
Twentepoort Oost 34
7609 RG Almelo

T  0546 - 305 301
E  Almelo@iQMakelaars.nl

Specificaties

Bouw

  • Soort Woningen
  • Type Hoekwoning
  • Bouwjaar 1931

Algemeen

  • Beschikbaarheid In overleg

Energie

  • Energielabel E
  • CV-ketel Combi
  • CV-ketel eigendom Ja
  • CV-ketel brandstof Gas
  • CV-ketel warmwater Ja
  • Aanwezige isolatie Glasisolatie

Indeling

  • Slaapkamers 3
  • Tuin Ja
  • Tuin ligging Noord

Afmetingen

  • Woonoppervlakte 73 m²
  • Perceeloppervlakte 253 m²
  • Woninginhoud 257 m³
  • Tuin oppervlakte 150 m²
Meer

Schrijf je in voor onze woningmail, actueel aanbod!

Afbeeldingen

  Nieuwstraat 123 ALMELO
  Nieuwstraat 123 ALMELO
  Nieuwstraat 123 ALMELO
  Nieuwstraat 123 ALMELO
  Nieuwstraat 123 ALMELO
  Nieuwstraat 123 ALMELO
  Nieuwstraat 123 ALMELO
  Nieuwstraat 123 ALMELO
  Nieuwstraat 123 ALMELO
  Nieuwstraat 123 ALMELO
  Nieuwstraat 123 ALMELO
  Nieuwstraat 123 ALMELO
  Nieuwstraat 123 ALMELO
  Nieuwstraat 123 ALMELO
  Nieuwstraat 123 ALMELO
  Nieuwstraat 123 ALMELO
  Nieuwstraat 123 ALMELO
  Nieuwstraat 123 ALMELO
  Nieuwstraat 123 ALMELO
  Nieuwstraat 123 ALMELO
  Nieuwstraat 123 ALMELO
  Nieuwstraat 123 ALMELO
  Nieuwstraat 123 ALMELO
  Nieuwstraat 123 ALMELO

Plattegrond

  Plattegrond Nieuwstraat 123 ALMELO
  Plattegrond Nieuwstraat 123 ALMELO
  Plattegrond Nieuwstraat 123 ALMELO
  Plattegrond Nieuwstraat 123 ALMELO
  Plattegrond Nieuwstraat 123 ALMELO
  Plattegrond Nieuwstraat 123 ALMELO
  Plattegrond Nieuwstraat 123 ALMELO

Bezichtiging aanvragen Nieuwstraat 123

Vergelijkbaar aanbod ALMELO

De Gent Verkocht
ALMELO
De Gent 26
   € 245.000,- k.k.
Details
De Fazant Verkocht
ALMELO
De Fazant 16 a
   € 239.500,- k.k.
Details
Adastraat Verkocht
ALMELO
Adastraat 39
   € 239.000,- k.k.
Details

Wat is jouw huis waard?

Gratis rapport iQ Makelaars Leadtool