ALMELO, De Nachtpauw 2 a
 
  Verkocht
  • Type2-onder-1-kap
  • Woonoppervlakte97 m²
  • Perceelgrootte318 m²
  • Slaapkamers2
  • GarageJa
  • Aangeboden sinds01-04-2022
  • Beschikbaarheid In overleg
Bezichtiging aanvragen

Omschrijving De Nachtpauw 2 a

Wat een fijne woning is dit! Heerlijk rustig gelegen in de kindvriendelijke woonwijk de Windmolenbroek, Ruime ruime twee onder een kap woning met veel grond en mogelijkheid tot het realiseren van slapen en baden op begane grond. De ruimte naast de woning is ideaal voor een caravan/camper of dergelijke.

Fraai gelegen op een mooie plek aan de rand van de wijk, vrij en met veel groen aan de achterzijde, op een paar minuten van de uitvalswegen A1/A35, diverse basisscholen en het winkelcentrum.

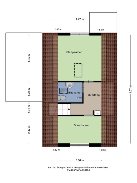
Indeling:
Begane grond:
Entree met hal, meterkast, toilet en trapopgang. Doorgang naar ruime woonkamer en open keuken welke is voorzien van een inductiekookplaat, oven, koelkast en wasemkap. Deur met toegang tot de ruime tuin op het noordwesten welke heerlijke vrijheid aan de achterzijde biedt.

Eerste verdieping:
Overloop met twee ruime slaapkamers. Badkamer voorzien van een douche, toilet en wastafel. Middels vlizotrap te bereiken opbergzolder.

Bijzonderheden
- Bouwjaar 1993,
- Woonoppervlakte 97 m²,
- Inhoud 421 m³
- Perceeloppervlakte van 318 m²;
- Warm water en verwarming middels een Remeha Combiketel, bouwjaar 2009, eigendom;
- Ideaal gelegen met diverse voorzieningen in de buurt: Basisscholen, uitvalswegen, winkelcentrum en groen in het buitengebied;
- Aanvaarding in overleg:

Meer
Neem contact op

iQ Makelaars Kantoor Almelo
Danny Mulder
Twentepoort Oost 34
7609 RG Almelo

T  0546 - 305 301
E  Almelo@iQMakelaars.nl

Specificaties

Bouw

  • Soort Woningen
  • Type 2-onder-1-kap
  • Bouwjaar 1993

Algemeen

  • Beschikbaarheid In overleg

Energie

  • Energielabel C
  • CV-ketel Combi
  • CV-ketel eigendom Ja
  • CV-ketel brandstof Gas
  • CV-ketel bouwjaar 2009
  • CV-ketel warmwater Ja
  • Aanwezige isolatie Glasisolatie

Indeling

  • Slaapkamers 2
  • Garage Ja
  • Tuin Ja
  • Tuin ligging Noordwest

Voorziening

  • Parkeerplaats Ja

Afmetingen

  • Woonoppervlakte 97 m²
  • Perceeloppervlakte 318 m²
  • Woninginhoud 421 m³
  • Tuin oppervlakte 240 m²
Meer
  • Wijk en buurt
    Zeven Bosjes
  • Bevolking
    Gem. grootte huishouden
    2.7 personen
  • Detailhandel
    Grote supermarkt
    1.1km
  • Inkomen
    Gem. inkomen
    €24.600 p/j
  • Vervoer
    Station
    4km
  • Wonen
    Gem. woningwaarde
    €237.000
    Koopwoningen
    99%

Schrijf je in voor onze woningmail, actueel aanbod!

Afbeeldingen

  De Nachtpauw 2 a ALMELO
  De Nachtpauw 2 a ALMELO
  De Nachtpauw 2 a ALMELO
  De Nachtpauw 2 a ALMELO
  De Nachtpauw 2 a ALMELO
  De Nachtpauw 2 a ALMELO
  De Nachtpauw 2 a ALMELO
  De Nachtpauw 2 a ALMELO
  De Nachtpauw 2 a ALMELO
  De Nachtpauw 2 a ALMELO
  De Nachtpauw 2 a ALMELO
  De Nachtpauw 2 a ALMELO
  De Nachtpauw 2 a ALMELO
  De Nachtpauw 2 a ALMELO
  De Nachtpauw 2 a ALMELO
  De Nachtpauw 2 a ALMELO
  De Nachtpauw 2 a ALMELO
  De Nachtpauw 2 a ALMELO
  De Nachtpauw 2 a ALMELO
  De Nachtpauw 2 a ALMELO
  De Nachtpauw 2 a ALMELO
  De Nachtpauw 2 a ALMELO
  De Nachtpauw 2 a ALMELO

Plattegrond

  Plattegrond De Nachtpauw 2 a ALMELO
  Plattegrond De Nachtpauw 2 a ALMELO
  Plattegrond De Nachtpauw 2 a ALMELO
  Plattegrond De Nachtpauw 2 a ALMELO
  Plattegrond De Nachtpauw 2 a ALMELO
  Plattegrond De Nachtpauw 2 a ALMELO

Bezichtiging aanvragen De Nachtpauw 2 a

Vergelijkbaar aanbod ALMELO

Goossenmaatsweg Verkocht
ALMELO
Goossenmaatsweg 74
   € 269.500,- k.k.
Details
Singraven Verkocht
ALMELO
Singraven 31
   € 269.500,- k.k.
Details

Wat is jouw huis waard?

Gratis rapport iQ Makelaars Leadtool